Trong bài viết này, chúng tôi sẽ chia sẻ đến quý vị mẫu biệt thự 2 tầng kiểu châu Âu của gia đình anh Tâm tại Đồng Tháp – Ngôi nhà sang trọng và đáng ngưỡng mộ.
1. Thông tin công trình Biệt thự tân cổ điển đẹp BT23120
- Tầng 1: Phòng Khách 34.4m2, Phòng bếp ăn 24.8m2, Phòng ngủ khép kín 20.7m2, WC chung
- Tầng 2: Phòng thờ, 3 Phòng ngủ khép kín 17m2, 17.5m2 và 17.6m2
- Tầng tum: Phòng karaoke, Sân chơi, Sân phơi, Sân thể dục, Phòng thể dục
2. Ngoại thất biệt thự đẹp 3 tầng phong cách tân cổ điển BT23120
Ngôi nhà đẹp được rất nhiều gia đình ưa chuộng bởi sự kết hợp tinh tế giữa kiến trúc cổ điển và hiện đại.
Thiết kế của căn biệt thự 3 tầng hay còn gọi là biệt thự 2 tầng 1 tum không chỉ mang lại vẻ đẹp trang nhã, sang trọng mà còn tạo cảm giác ấm cúng, gần gũi cho người sống trong đó.
Điểm nhấn đắt giá của ngôi biệt thự là những họa tiết hoa văn cầu kỳ trên các bức chương, các trụ cột,… điêu khắc đẹp mắt, mang đến cho người nhìn một cảm giác hoài cổ về nền kiến trúc phương Tây.
Hệ trụ cột vuông tròn đan xen vững chãi góp phần tạo nên sự đẳng cấp cho tổng thể khối kiến trúc của biệt thự.
Sảnh chính tầng 1 của ngôi nhà đẹp 3 tầng sử dụng hệ cột kép, bao gồm hai cột vuông và hai cột tròn. Các cột vuông không chỉ được sử dụng làm trụ chính ở các sảnh, mà còn được dùng như một hệ cột giả ốp sát tường, chạy thẳng từ chân móng đến mái. Các cột vuông được trang trí bằng những đường chỉ mảnh và các cánh hoa nhấn nhá ở đầu cột.
Ngược lại, các cột tròn ở sảnh chính tầng 1 và ban công lại được thiết kế mềm mại, giúp ngôi nhà 2 tầng 1 tum trở nên cuốn hút hơn bao giờ hết.
Hệ mái Mansard màu xanh đen kết hợp với tone màu trắng tinh khiết của sơn tường, mang lại bức tranh ấn tượng và đầy cuốn hút.
Hơn thế nữa, điểm nhất đắt giá của căn nhà là chi tiết mũ vương miện và mái vòm hình chóp trên mái nhà. Bên cạnh đó, trên các mảng tường ngăn tầng được trang trí bằng phù điêu trang nhã, hệ thống hoa văn, phào chỉ được thiết kế hài hòa, đối xứng mà không gây cảm giác rối mắt cho người nhìn.
Hệ thống cửa chính sử dụng chủ yếu là gỗ tự nhiên cao cấp, hệ thống cửa sổ được sử dụng chất liệu kính cường lực để tăng cường độ sáng cho các căn phòng.
Với diện tích đất còn lại, các kiến trúc sư đã trang trí không gian xanh xung quanh ngôi nhà để tạo sự hài hòa với phong cách kiến trúc tân cổ điển. Các cây xanh, loài hoa được trồng xen kẽ nhau tạo nên không gian ngoại thất sinh động, hấp dẫn hơn rất nhiều.
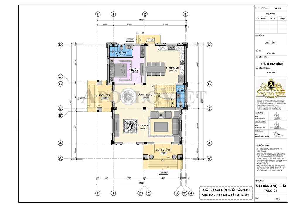
3. Mặt bằng nội thất biệt thự 2 tầng 1 tum đẹp khoa học và tiện nghi
Tiếp theo, xin mời quý vị cùng tham khảo Mặt bằng công năng khoa học và chuẩn phong thủy:
- Tầng 1: Phòng Khách 34.4m2, Phòng bếp ăn 24.8m2, Phòng ngủ khép kín 20.7m2, WC chung
- Tầng 2: Phòng thờ, 3 phòng ngủ khép kín 17m2, 17.5m2, 17.6m2
- Tầng tum: Phòng karaoke, Sân chơi, Sân phơi, Sân thể dục, Phòng thể dục
Mẫu biệt thự tân cổ điển 2 tầng 1 tum được thiết kế với cách bố trí mặt bằng thông minh và tiện nghi. Quan sát mặt bằng tầng 1, bước lên 5 bậc tam cấp từ sảnh chính đi vào là không gian phòng khách 34.4m2, kết nối với không gian sảnh thang để đi ra sảnh phụ, không gian rộng thoáng và sang trọng.
Đi qua sảnh thang, 1 bên là phòng bếp ăn, 1 bên là phòng ngủ khép kín dành cho gia chủ. Công năng bố trí khoa học và phù hợp với nhu cầu sử dụng của chủ đầu tư.
Kiến trúc sư bố trí thêm 1 nhà vệ sinh phía sau bếp tạo sự tiện lợi và sạch sẽ.
Ngôi nhà đẹp được tính toán tỉ mỉ, khoa học bằng chuyên môn và kinh nghiệm của đội ngũ Kiến trúc sư và Kĩ sư Apollo Việt.
Apollo Việt cung cấp giải pháp Thiết kế thi công trọn gói nhằm mang đến không gian hoàn mỹ, sang trọng cho mọi gia đình Việt.
Nếu bạn đang quan tâm và muốn được tư vấn cụ thể hơn về dòng biệt thự tân cổ điển, hãy liên hệ Apollo Việt - đơn vị chuyên thiết kế, thi công trọn gói uy tín và chất lượng cao để được tư vấn. Hotline: 03345 111 35 hoặc 0962 368 892.
		
                                














                               
                               
                               
                               
                               
                        
                        
                        