1. Thông tin công trình
Biệt thự của cô Vân tại Hà Nội có diện tích xây dựng 6m x 8,24m, với mặt tiền 6m, được thiết kế theo phong cách biệt thự phố tân cổ điển 3 tầng 1 tum màu trắng, mang đến vẻ đẹp tinh tế, sang trọng và đẳng cấp. Mặc dù diện tích vừa phải, công trình vẫn nổi bật nhờ sự kết hợp hài hòa giữa vẻ đẹp cổ điển và tính thanh thoát hiện đại, đặc trưng của các mẫu biệt thự tân cổ điển 3 tầng 1 tum.
2. Kiến trúc mặt tiền biệt thự phố tân cổ điển
Ngay từ cái nhìn đầu tiên, công trình gây ấn tượng với mặt tiền sang trọng, được trang trí tinh xảo bằng phào chỉ tân cổ điển, tạo sự cân đối, hài hòa và thanh lịch. Các chi tiết phào chỉ không quá dày đặc nhưng đủ để nhấn mạnh các cửa sổ và cửa ra vào, giúp ngôi nhà vừa giữ được vẻ đẹp cổ điển vừa không nặng nề.
Cột tròn thông tầng từ tầng 2 đến tầng 3 được bố trí tinh tế, vừa tạo sự uyển chuyển, mềm mại, vừa tăng cảm giác bề thế cho mặt tiền – một điểm nhấn đặc trưng của biệt thự phố tân cổ điển 3 tầng 1 tum.
Hệ mái Mansard màu xám tinh tế, với thiết kế vẩy cá tỉ mỉ, vừa tăng tính thẩm mỹ, vừa tối ưu không gian sử dụng ở tầng áp mái. Kiểu mái Mansard này rất phổ biến trong các mẫu biệt thự tân cổ điển 3 tầng, giúp bảo vệ công trình khỏi thời tiết, đồng thời mang lại vẻ sang trọng, cổ điển nhưng vẫn hiện đại.
Hệ cửa kính lớn được bố trí xuyên suốt các tầng, mở rộng không gian bên trong, đưa ánh sáng tự nhiên vào mọi phòng, tạo sự thoáng đãng, sáng sủa – yếu tố quan trọng trong biệt thự phố tân cổ điển 3 tầng mặt tiền 6m.
3. Vật liệu – màu sắc tinh tế
Biệt thự sử dụng phào chỉ, lan can sắt mỹ thuật, lam gỗ nhựa giả gỗ và các vật liệu cao cấp khác, kết hợp màu trắng chủ đạo, tạo nên tổng thể hài hòa và sang trọng. Màu trắng là màu đặc trưng trong các mẫu biệt thự phố tân cổ điển 3 tầng 1 tum, giúp ngôi nhà thanh thoát, tinh tế và nổi bật giữa không gian đô thị.
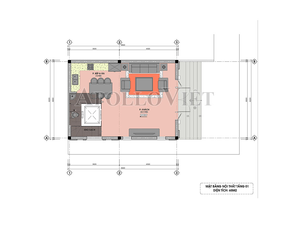
4. Bố trí công năng khoa học – tối ưu không gian
Công trình được bố trí hợp lý theo từng tầng, tối ưu cho sinh hoạt gia đình:
Tầng 1: Phòng khách 26,5m², phòng bếp & ăn 12m², kho, WC
Tầng 2: 2 phòng ngủ 12,5m² và 12m², WC 4,8m²
Tầng 3: 2 phòng ngủ 12,5m² và 12m², WC 6m²
Tầng áp mái (1 tum): Phòng giặt phơi 12,5m², WC 2,5m²
Phòng khách tầng 1 rộng rãi, là nơi quây quần gia đình và đón tiếp khách. Khu vực bếp – ăn được thiết kế mở, tạo sự ấm cúng và tiện nghi cho mọi bữa ăn.
Các phòng ngủ tại tầng 2 và tầng 3 đều có cửa sổ lớn, đón ánh sáng tự nhiên, giúp không gian luôn thoáng mát. Tầng áp mái bố trí phòng giặt phơi, thuận tiện và gọn gàng, tận dụng tối đa không gian sử dụng.
5. Sự kết hợp hoàn hảo giữa kiến trúc và tiện nghi
Với sự kết hợp giữa kiến trúc tân cổ điển sang trọng và bố trí công năng khoa học, biệt thự phố 3 tầng 1 tum màu trắng này không chỉ đẹp về mặt thẩm mỹ mà còn tiện nghi, đáp ứng đầy đủ nhu cầu sinh hoạt của gia đình.
Mỗi tầng đều được thiết kế tỉ mỉ, mang lại sự thoải mái và tiện lợi tối đa, tạo nên một mẫu biệt thự phố tân cổ điển 3 tầng 1 tum lý tưởng tại Hà Nội.
















