Thả hồn với mẫu Biệt thự 2 tầng Tân cổ điển mái Nhật BT20138
Chủ đầu tư: Ông Đới Văn Mậu
Địa chỉ: Nghĩa Hưng - Nam Định
Mặt tiền: 10,12m
Diện tích xây dựng: 10,12m x 17m
Trong hành trình kiến tạo nên tổ ấm, việc lựa chọn phong cách và quy mô công trình luôn là yếu tố quan trọng nhất, đòi hỏi sự cân nhắc kỹ lưỡng giữa thẩm mỹ và khả năng tài chính.
Các mẫu biệt thự tân cổ điển 2 tầng đã được các Kiến trúc sư của Apollo Việt nhận định là Lựa chọn "Vàng" tại thị trường Việt Nam hiện nay đáp ứng cả 3 yếu tố mà mọi gia chủ đều tìm kiếm: thẩm mỹ sang trọng vượt thời gian, công năng tiện nghi phù hợp với gia đình Việt (2-3 thế hệ), và một ngân sách đầu tư hợp lý.
Thả hồn với mẫu Biệt thự 2 tầng Tân cổ điển mái Nhật BT20138
Chủ đầu tư: Ông Đới Văn Mậu
Địa chỉ: Nghĩa Hưng - Nam Định
Mặt tiền: 10,12m
Diện tích xây dựng: 10,12m x 17m
Cận cảnh mẫu Biệt thự 2 tầng Tân cổ điển mặt tiền 8m BT21212
Chủ đầu tư: Ông Trương Văn Thể
Địa chỉ: Tiền Hải - Thái Bình
Mặt tiền: 7,97m
Diện tích xây dựng: 7,97m x 16,68m
Khám phá thiết kế Biệt thự Tân cổ điển 2 tầng 1 tum BT21166
Chủ đầu tư: Ông Nguyễn Văn Sơn
Địa chỉ: Hải Phòng
Mặt tiền: 10,47m
Diện tích xây dựng: 10,47m x 17m
Cực phẩm Mẫu Biệt thự 2 tầng Tân cổ điển 4 phòng ngủ BT20157
Chủ đầu tư: Anh Nguyễn Văn Hanh
Địa chỉ: Sìn Hồ - Lai Châu
Mặt tiền: 9,02m
Diện tích xây dựng: 9,02m x 15,12m
Mẫu biệt thự Tân cổ điển 2 tầng sang trọng ở Cao Bằng BT20064
Chủ đầu tư: Ông Lý Trung Hiếu
Địa chỉ: Trùng Khánh - Cao Bằng
Mặt tiền: 13,7m
Diện tích xây dựng: 13,7m x 15,4m
Lộ diện mẫu Biệt thự 2 tầng tân cổ điển tối ưu công năng BT20051
Chủ đầu tư: Chị Khuyên
Địa chỉ: Thuận Thành - Bắc Ninh
Mặt tiền: 12m
Diện tích xây dựng: 12m x 9,3m
Cận cảnh biệt thự 2 tầng kiểu Pháp tỏa sáng tại Hà Nội BT20031
Chủ đầu tư: Ông Nguyễn Tiến Dũng
Địa chỉ: Thường Tín - Hà Nội
Mặt tiền: 10m x 14,6m
Diện tích xây dựng: 10m x 14,6m
Mẫu biệt thự 2 tầng kiểu Pháp lịch lãm và sang trọng BT20030
Chủ đầu tư: Ông Trường
Địa chỉ: Nam Định
Mặt tiền: 15m x 15m
Diện tích xây dựng: 15m x 15m
Mẫu biệt thự tân cổ điển tại Bắc Ninh - Tinh hoa kết trúc hội tụ BT24132
Chủ đầu tư: Anh Lĩnh
Địa chỉ: Bắc Ninh
Mặt tiền: 11.2m
Diện tích xây dựng: 11.2m x 16.42m
Thiết Kế & Thi Công Trọn Gói Biệt Thự Tân Cổ Điển 2 Tầng 1 Tum Chuyên Nghiệp Tại Hà Nam BT24123
Chủ đầu tư: Anh Duân – Chị Tuyết
Địa chỉ: Hà Nam
Mặt tiền: 20.7 x 11,5m2
Diện tích xây dựng: 20.7 x 11,5m2
Chiêm Ngưỡng Mẫu Biệt Thự 2 Tầng 1 Tum Tân Cổ Điển Đẹp Tại Hải Phòng BT25102
Chủ đầu tư: Anh Hoàng
Địa chỉ: Hải Phòng
Mặt tiền: 9.97
Diện tích xây dựng: 9.97m x 17.57m
Biệt thự tân cổ điển tại Quảng Ninh – Dấu ấn sang trọng và đẳng cấp BT25130
Chủ đầu tư: Anh Hoàn
Địa chỉ: Quảng Ninh
Mặt tiền: 9,5m
Diện tích xây dựng: 9.5m x 13m
Thiết kế Biệt thự tân cổ điển 3 tầng châu Âu sang trọng BT23120
Chủ đầu tư: Anh Tâm
Địa chỉ: Đồng Tháp
Mặt tiền: 11m
Diện tích xây dựng: 11m x 18,6m
Chiêm ngưỡng Biệt thự Tân cổ điển 2 tầng 1 tum sang trọng BT23117
Chủ đầu tư: Anh Khuyến
Địa chỉ: Hải Dương
Mặt tiền: 10.2M
Diện tích xây dựng: 10.2 X 13.6M
Biệt thự Châu Âu Phong cách Tân Cổ Điển đẳng cấp BT23124
Chủ đầu tư: Anh Sơn
Địa chỉ: TP Thái Nguyên
Mặt tiền: 22.1m
Diện tích xây dựng: 22.1m x 14m
Mê Đắm Biệt Thự 2 Tầng Phong Cách Tân Cổ Điển BT23115
Chủ đầu tư: Anh Nguyễn Văn Việt
Địa chỉ: Hà Nội
Mặt tiền: 11m x 18m
Diện tích xây dựng: 160m2
Hãy bắt đầu khám phá Vẻ đẹp vượt thời gian của phong cách biệt thự tân cổ điển và biến ước mơ về tổ ấm hoàn hảo thành hiện thực ngay hôm nay.
Các mẫu biệt thự 2 tầng phong cách tân cổ điển sở hữu những ưu điểm kiến trúc vượt trội mà các mô hình khác khó có thể thay thế. Cụ thể:
- Tỷ lệ kiến trúc hài hòa và bề thế: Quy mô 2 tầng là lý tưởng để áp dụng các nguyên tắc về tỷ lệ vàng và tính đối xứng. Việc phân chia khối đế (tầng 1) và phần thân (tầng 2) tạo cảm giác vững chãi, trong khi hệ mái và cột mang lại sự thanh thoát, sang trọng.
- Tối ưu không gian và công năng sử dụng: Phân chia không gian chức năng một cách khoa học:
+Tầng 1 (Không gian chung): Thường bố trí Phòng khách, Bếp, Phòng ăn, và có thể thêm 1 phòng ngủ cho ông bà/khách.
+ Tầng 2 (Không gian riêng tư): Là nơi đặt các phòng ngủ chính, phòng thờ và phòng sinh hoạt chung. Điều này đảm bảo sự riêng tư cần thiết nhưng vẫn giữ được sự kết nối giữa các thế hệ.
- Phù hợp với đa dạng diện tích đất: Biệt thự tân cổ điển 2 tầng có thể triển khai linh hoạt trên nhiều diện tích, từ đất phố (mặt tiền 7-8m) đến đất vườn rộng, phổ biến nhất là các lô đất từ 120m2 trở lên.
- Ngân sách đầu tư hợp lý: So với các công trình 3 tầng trở lên, việc xây dựng 2 tầng giúp tiết kiệm đáng kể chi phí cho phần móng và kết cấu, cho phép gia chủ tập trung ngân sách vào việc hoàn thiện nội thất cao cấp.
- Công trình biệt thự tân cổ điển yêu cầu tay nghề thi công cao: Đặc trưng của phong cách này là hệ thống phào chỉ, hoa văn phức tạp. Việc thi công đòi hỏi đội ngũ thợ có tay nghề cao, tỉ mỉ để đảm bảo độ sắc nét.
Giải pháp: Lựa chọn nhà thầu uy tín, có kinh nghiệm thực tế trong thi công biệt thự tân cổ điển. Tham khảo các công trình thực tế họ đã thực hiện.
- Dễ trở nên rườm rà nếu lạm dụng chi tiết: Một số thiết kế tham lam chi tiết khiến tổng thể ngôi nhà trở nên nặng nề, lỗi thời.
Giải pháp: Ưu tiên phong cách tân cổ điển nhẹ nhàng (Modern Classic), tập trung vào hình khối, tỷ lệ và sử dụng phào chỉ một cách tiết chế, tinh tế.
Một thiết kế biệt thự đẹp là điều kiện cần, nhưng công năng tối ưu mới chính là điều kiện đủ tạo nên một không gian sống hoàn hảo, nơi mọi thành viên đều cảm thấy thoải mái và tiện nghi. Tại Apollo Việt, chúng tôi hiểu rằng không có một “công thức” chung cho tất cả, mà chỉ có những giải pháp được tinh chỉnh dựa trên yêu cầu của chủ nhà, tuổi phong thủy, quy mô gia đình, thói quen sinh hoạt và diện tích đất thực tế.
Để giúp bạn hình dung trực quan nhất, chúng tôi phân tích 3 phương án bố trí công năng điển hình được áp dụng phổ biến nhất cho biệt thự 2 tầng tân cổ điển:
Đây là lựa chọn lý tưởng cho các gia đình 2-3 thế hệ (vợ chồng và 1-2 con nhỏ) hoặc những gia chủ mong muốn tối ưu hóa chi phí đầu tư ban đầu.
- Ưu điểm: Diện tích phòng khách, bếp và sân vườn được ưu tiên rộng rãi hơn. Đặc biệt, có thể dành một phòng làm việc/thư viện ngay tại tầng 1. Tầng 2 bố trí 3 phòng ngủ tiện nghi khoa học.
- Đối tượng: Phù hợp với các lô đất có diện tích nhỏ hơn 100m² hoặc gia đình có 1-2 thế hệ.
Đây là phương án được đa số gia chủ lựa chọn, bởi nó giải quyết trọn vẹn nhu cầu sinh hoạt của gia đình 2-3 thế hệ.
- Đặc điểm cốt lõi: Luôn bố trí ít nhất một phòng ngủ tại Tầng Trệt (tầng 1). Phòng này đóng vai trò cực kỳ quan trọng, là nơi nghỉ ngơi tiện lợi cho Ông/Bà (tránh leo cầu thang) hoặc sử dụng làm phòng khách/ngủ dự phòng khi gia đình có khách ghé thăm.
Tầng 2 sẽ bố trí 3 phòng ngủ còn lại cùng phòng thờ/sinh hoạt chung.
- Giá trị: Đảm bảo tính kế thừa, quây quần cho gia đình Việt.
Nếu bạn hướng đến một không gian sống thực sự đẳng cấp, sang trọng, Phương án 3 sẽ là lựa chọn không thể bỏ qua.
- Đặc điểm nổi bật: Thường có khu vực Thông Tầng tại phòng khách hoặc sảnh thang, tạo độ cao trần ấn tượng, cảm giác bề thế và thoáng đãng như một dinh thự thu nhỏ.
- Không gian Master: Phòng ngủ Master được thiết kế diện tích vượt trội, tích hợp phòng thay đồ (Walk-in Closet), khu vực làm việc riêng và phòng tắm tiện nghi như một căn Suite khách sạn 5 sao.
Câu hỏi dành cho bạn: Hiện tại, gia đình bạn đang có bao nhiêu thành viên và ưu tiên của bạn là tối ưu chi phí hay tối đa tiện nghi? Việc xác định rõ sẽ giúp Kiến trúc sư Apollo Việt đưa ra phương án mặt bằng chính xác nhất.
Nếu công năng là linh hồn, thì kiến trúc ngoại thất chính là vóc dáng và thần thái của ngôi nhà. Để một biệt thự tân cổ điển 2 tầng thực sự đạt đến độ hoàn mỹ, đòi hỏi sự tuân thủ nghiêm ngặt các nguyên tắc thiết kế. Đây là những "kim chỉ nam" mà đội ngũ Kiến trúc sư của chúng tôi luôn đặt lên hàng đầu:
Nguyên tắc đầu tiên và quan trọng nhất là Tỷ lệ và Tính đối xứng. Ngôi nhà 2 tầng sẽ trông vững chãi và bề thế khi Kiến trúc sư biết cách phân chia khối đế một cách mạnh mẽ, tạo cảm giác nâng đỡ chắc chắn cho khối tầng trên. Thường thì phần khối đế sẽ được xử lý bằng đá tự nhiên hoặc vật liệu ốp sẫm màu hơn, tạo sự phân biệt rõ ràng.
Tính đối xứng, với điểm nhấn là sảnh chính và thức cột cân bằng hai bên, là chìa khóa tạo nên sự uy nghi, trang nghiêm của phong cách này.
Sự tinh tế của tân cổ điển nằm ở chi tiết, đặc biệt là Phào chỉ. Lưu ý quan trọng là: "Tinh tế, không Rườm rà". Phào chỉ cần được tiết chế, chỉ sử dụng ở những vị trí quan trọng như cửa sổ, diềm mái, để tạo điểm nhấn nhẹ nhàng.
Về Hệ cột, bạn cần phân biệt rõ:
- Cột Vuông: Thường dùng cho kiến trúc hiện đại hoặc tân cổ điển nhẹ nhàng, mang lại cảm giác khỏe khoắn, mạnh mẽ.
- Cột Tròn (Thức cột Ionic, Corinthian): Dùng để tăng tính cổ điển, tạo sự mềm mại, duyên dáng và kiều diễm cho sảnh chính. Lựa chọn này tùy thuộc vào mức độ "cổ điển" mà gia chủ mong muốn.
Hệ mái không chỉ là lớp bảo vệ mà còn là điểm nhấn quyết định phong cách:
- Mái Thái/Mái Nhật: Phổ biến, dễ thi công, chi phí hợp lý, phù hợp với kiến trúc tân cổ điển nhẹ nhàng.
- Mái Mansard: Mang lại vẻ ngoài đồ sộ, hoành tráng nhất, giúp tăng thêm diện tích sử dụng cho tầng áp mái (nếu có), nhưng chi phí đầu tư cao hơn.
- Màu sắc chủ đạo: Các gam màu trung tính, sang trọng như Trắng sứ, Vàng kem, Beige là lựa chọn hàng đầu. Những màu sắc này làm nổi bật các chi tiết phào chỉ và tạo cảm giác không gian rộng rãi, bền vững với thời gian.
Vật liệu hoàn thiện:
Xây nhà là một quyết định tài chính lớn, và việc nắm rõ dự toán chi phí ngay từ đầu là yếu tố then chốt để đảm bảo công trình diễn ra suôn sẻ, đúng tiến độ. Tại Kiến trúc Apollo Việt, chúng tôi luôn cung cấp thông tin minh bạch, giúp bạn kiểm soát ngân sách một cách chủ động.
Đơn giá xây dựng/m² chỉ là con số tham khảo ban đầu. Chi phí cuối cùng của biệt thự 2 tầng tân cổ điển bị chi phối bởi bốn yếu tố chính:
Bảng dự toán tham khảo (Đơn giá/m2) - Cập nhật 2025:
Lưu ý: Đơn giá trên chưa bao gồm chi phí nội thất rời (bàn ghế, giường tủ), cảnh quan sân vườn và chi phí gia cố móng đặc biệt (nếu có).
Ví dụ minh họa: Một biệt thự 2 tầng có tổng diện tích xây dựng 300m2, hoàn thiện ở mức Khá (đơn giá 8.000.000 VNĐ/m2). Tổng chi phí dự kiến là: 300m2 * 8.000.000 VNĐ/m2 = 2.400.000.000 VNĐ. (Bằng chữ: Hai tỷ bốn trăm triệu đồng chẵn./.)
Dựa trên kinh nghiệm thi công hàng trăm công trình, chúng tôi phân chia dự án thành ba phân khúc ngân sách điển hình:
- Ngân sách 1.5 - 2.5 tỷ VNĐ: Đối với các mẫu biệt thự phân khúc này phù hợp với các căn biệt thự mái Nhật và mái Thái với quy mô nằm trong khoảng 100 - 150m2 sàn, với quy mô vừa phải, công trình vừa thể hiện được sự sang trọng vừa ở mức đầu tư không quá nhiều, đặc biệt phù hợp với gia đình trẻ hoặc xây cho bố mẹ ở quê nhà.

- Ngân sách 3 - 4 Tỷ VND: Đây là phân khúc phổ thông. Gia chủ cần chấp nhận lựa chọn phong cách Tân cổ điển nhẹ nhàng (Modern Classic), tinh giản tối đa chi tiết ngoại thất và sử dụng vật liệu hoàn thiện mức Khá/Trung bình Khá. Tuy nhiên, vẫn đảm bảo công năng thông minh và vẻ ngoài thanh lịch.
- Ngân sách 5 - 7 Tỷ VND: Phân khúc phổ biến nhất. Ở mức này, bạn có thể đầu tư vào các chi tiết trang trí tinh xảo hơn, sử dụng đá tự nhiên ốp lát khối đế, hệ cửa gỗ hoặc nhôm kính cao cấp, và nâng cấp chất lượng nội thất. Công năng có thể bao gồm cả garage ô tô và sân vườn tiểu cảnh.
- Ngân sách trên 8 Tỷ VND: Phân khúc cao cấp/xa xỉ. Ngân sách này cho phép bạn xây dựng công trình quy mô lớn hơn, phức tạp hơn (ví dụ: có hầm hoặc thông tầng), sử dụng vật liệu nhập khẩu, và tập trung vào các chi tiết nội thất tinh xảo, thiết bị thông minh. Đây là lúc chất lượng thi công, sự tỉ mỉ của thợ lành nghề lên ngôi.
Để nhận được Bảng dự toán chi tiết theo đơn giá vật tư và nhân công cụ thể tại khu vực của bạn (bao gồm chi phí thiết kế, xây thô, và hoàn thiện), hãy liên hệ với chúng tôi ngay hôm nay!
Căn biệt thự của gia đình chú Hùng tại Bắc Giang sở hữu diện tích xây dựng hơn 130m2/sàn, mức đầu tư > 2 tỷ, công trình khoe được trọn vẹn vẻ đẹp và sự bề thế. Khối đế của ngôi nhà sử dụng sơn màu vàng vân đá cao cấp, tạo nên sự bề thế, vững chãi.
Mẫu biệt thự 2 tầng mái Thái này ghi dấu ấn với vẻ đẹp thanh lịch và sang trọng, phù hợp cho các gia đình yêu thích phong cách tân cổ điển nhẹ nhàng.
Hệ mái Thái dốc cao giúp ngôi nhà luôn thông thoáng, mát mẻ, đồng thời tôn lên sự bề thế của tổng thể kiến trúc.
Các đường phào chỉ tinh tế và mặt tiền cân đối tạo nên hình ảnh một không gian sống đẳng cấp, hài hòa giữa thẩm mỹ và công năng – lựa chọn lý tưởng cho những gia chủ mong muốn một ngôi nhà vừa đẹp, vừa bền vững với thời gian.
Biệt thự sở hữu mặt tiền 10 m và chiều sâu 15m, công trình toát lên vẻ đẹp sang trọng và quý phái. Đặc biệt công năng luôn được kiến trúc sư Apollo Việt tính toán tỉ mỉ, khoa học, gồm có:
- Tầng 1: Phòng khách, Phòng bếp ăn, 1 Phòng ngủ khép kín, 1 Phòng ngủ đơn, 1 WC chung gầm thang.
- Tầng 2: Phòng thờ, 1 Phòng ngủ khép kín, 1 Phòng ngủ đơn, Phòng Sinh hoạt chung, 1 WC chung.
Mẫu biệt thự 2 tầng mái Thái sở hữu vẻ đẹp đậm chất tân cổ điển kiểu Pháp tạo nên vẻ đẹp trang nhã với hình khối cân đối, có hệ mái dốc duyên dáng, tạo nên diện mạo sang trọng ngay từ cái nhìn đầu tiên.
Những đường phào chỉ mềm mại kết hợp cùng ban công uốn cong tinh xảo và giàn hoa nhỏ phía trước giúp không gian thêm phần lãng mạn và giàu sức sống.
Biệt thự sở hữu mặt tiền thông thoáng, bố cục rõ ràng và ánh sáng tự nhiên tràn ngập giúp ngôi nhà trở thành lựa chọn lý tưởng cho những gia chủ yêu thích phong cách tân cổ điển tinh tế, nhẹ nhàng nhưng vẫn nổi bật và bền vững theo thời gian.
Ngôi nhà thu hút mọi ánh nhìn, mặc dù diện tích chỉ gần 90m2 nhưng công trình thoát nên trọn vẹn vẻ đẹp sang trọng và đẳng cấp. Công năng được tính toán vô cùng tỉ mỉ với mặt tiền 8,1 m và chiều sâu 11,4 m. Ngân sách đầu tư chỉ hơn 1 tỷ thôi nhưng chắc chắn gia chủ nào cũng ao ước sở hữu được căn biệt thự tuyệt vời này.
- Tầng 1 có: Phòng khách, Phòng bếp ăn, 2 Phòng ngủ đơn, 1 WC chung
- Tầng 2 có: 1 Phòng ngủ master kết hợp phòng thay đồ, 2 Phòng ngủ đơn, WC chung, Phòng sinh hoạt chung.
Biệt thự sử dụng tông trắng tinh khôi, tôn lên sự thanh lịch và sự khoáng đạt, nổi bật giữa không gian xanh.
Các chi tiết phào chỉ, gờ tường được tính toán tỉ mỉ, kết hợp cùng hệ thống cột trụ vững chãi và ban công sắt nghệ thuật hoa văn uốn lượn, tạo nên sự giao thoa hài hòa giữa nét cổ kính và hơi thở thời đại.
- Tầng 1: Phòng khách 30m2, phòng ngủ Master 21m2, phòng ngủ 18,5m2, phòng ăn 16m2
- Tầng 2: Phòng thờ 18,5m2, 03 phòng ngủ 16-21m2, Phòng SHC 16m2
Mẫu biệt thự 2 tầng tân cổ điển mái thái – nơi giao thoa giữa vẻ đẹp truyền thống và hơi thở đương đại. Đây không chỉ là một ngôi nhà, mà là biểu tượng của sự thịnh vượng và gu thẩm mỹ tinh tế của gia chủ.
Kiến trúc sư đã khéo léo lồng ghép những chi tiết tân cổ điển như các đường gờ phào chỉ tinh xảo, hệ thống trụ cột vững chãi và ban công hoa văn sắt mỹ thuật, tạo nên một tổng thể hài hòa, không quá cầu kỳ nhưng vẫn đầy lôi cuốn. Đặc biệt, mái vòm tại sảnh chính hay các khung cửa sổ cong mềm mại là điểm nhấn kiến tạo sự sang trọng vượt thời gian.
Ngôi biệt thự sở hữu diện tích xây dựng mỗi sàn khoảng 80m2 nhưng như quý vị có thể quan sát, công trình rất ấn tượng thu hút và bề thế. Với ngân sách đầu tư khoảng 1,5 tỷ thì đây là mẫu biệt thự lý tưởng mà quý vị có thể lựa chọn cho ngôi nhà tương lai của mình.
Ngôi nhà đẹp sở hữu 2 mặt tiền 7m và 9,8m, công năng 2 tầng được tính toán cực khoa học, cụi thể:
- Tầng 1: Phòng khách kết hợp phòng thờ rộng 19m2, Phòng ăn 11m2, Phòng bếp 9,5m2, Phòng ngủ 9,5m2, wc
- Tầng 2: 2 phòng ngủ khép kín rộng 17m2 - 22m2, Phòng SHC
Công trình này là sự giao thoa mãn nhãn giữa vẻ đẹp hoài cổ, đẳng cấp của Châu Âu và sự tối giản, hài hòa của tinh thần kiến trúc Á Đông.
Hệ Mái Nhật có độ dốc vừa phải, mở rộng ra các hướng, tạo cảm giác bề thế, vững chãi, và đặc biệt là sự cân đối, hài hòa cho toàn bộ hình khối kiến trúc. Màu mái xanh đen làm nổi bật lên thân nhà màu trắng, tạo độ tương phản cuốn hút.
Thiết kế kết hợp sân vườn thoáng đãng với chòi trà tạo điểm nhấn ngoại thất, mang đến không gian nghỉ dưỡng lý tưởng ngay tại nhà.
Ngôi biệt thự sở hữu 2 mặt tiền 8.4m và 11.3m ấn tượng. Đặc biệt căn biệt thự được tính toán kĩ lưỡng bởi chuyên gia phong thủy và kiến trúc sư chủ trì của Apollo Việt mang lại không gian sống tiện nghi và hợp phong thủy mang lại may mắn và tài lộc cho gia chủ:
- Tầng 1: phòng khách 35m2, phòng bếp ăn 20m2, phòng ngủ 11.3m2, WC 4m2
- Tầng 2: phòng ngủ Master 17.3m2, phòng thờ 13.5m2, 2 phòng ngủ 14.6m2, 12.7m2, WC 4.4m2, khu vực ban công
Ngôi nhà được đầu tư tỉ mỉ, kĩ lưỡng vật liệu hoàn thiện cao cấp với mức đầu tư lên tới hơn 3 tỷ đồng, mang lại không gian sống sang trọng và cao cấp cho gia chủ.
Siêu phẩm kiến trúc biệt thự 2 tầng tân cổ điển mái nhật – một công trình không chỉ dừng lại ở sự sang trọng, mà còn là sự khẳng định vị thế và đẳng cấp vượt trội của gia chủ.
Sự kết hợp hài hòa giữa hình khối kiến trúc vững chắc và cảnh quan sân vườn thơ mộng tạo nên một dinh thự hoàn hảo.
Mặt tiền cổ điển tuyệt mỹ: Sử dụng hệ thống cột trụ La Mã khổng lồ, tạo cảm giác kiên cố, bề thế. Điểm nhấn là ba ô cửa vòm lớn tại tầng 2, được bo viền tinh xảo, sử dụng ban công sắt nghệ thuật, tối đa hóa ánh sáng và tầm nhìn, đồng thời kiến tạo vẻ đẹp cổ điển kinh điển cho ngôi nhà.
Căn biệt thự sở hữu khuôn đất vuông vắn với tổng diện tích đất khoảng gần 250m2, kiến trúc sư Apollo Việt đã thiết kế căn biệt thự rộng 12m và chiều sâu 9,3m tạo nên công năng khoa học và vừa đủ cho cả gia đình chị Khuyên tại Bắc Ninh, cụ thể:
- Tầng 1: Phòng khách 26m2, Phòng thờ 9m2, Phòng ăn 13,5m2, Phòng ngủ khép kín 13,5m2
- Tầng 2: Phòng ngủ Master 15,5m2, 3 Phòng ngủ nhỏ 13,5m2, Phòng SHC 17m2, WC
Một thiết kế biệt thự đột phá – nơi nghệ thuật kiến trúc chạm đến đỉnh cao của sự tinh tế và khác biệt. Mẫu biệt thự 2 tầng tân cổ điển mái nhật này là sự minh chứng hoàn hảo cho phong cách sống thượng lưu và gu thẩm mỹ không thỏa hiệp.
Khác biệt với các mẫu biệt thự truyền thống, công trình này tạo dấu ấn mạnh mẽ nhờ sự kết hợp vật liệu và màu sắc đầy chủ ý:
- Tầng trệt ấn tượng với tông màu vàng kem ấm áp, kết hợp với các chi tiết phào chỉ màu trắng, tạo sự phân tầng rõ rệt và cảm giác vững chãi, ấm cúng.
- Tầng lầu sử dụng màu trắng tinh khôi hoàn toàn, tạo sự đối lập nhẹ nhàng, giúp tôn lên vẻ đẹp thanh lịch và kiêu sa của kiến trúc tân cổ điển.
Ngôi nhà được xây dựng với ngân sách gần 3 tỷ bao gồm cả công trình biệt thự và công trình phụ (căn bếp) toát lên vẻ đẹp sang trọng ấn tượng.
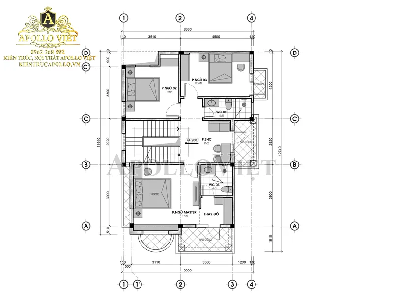
Tham khảo mặt bằng công năng căn biệt thự mái Nhật 2 tầng với mặt tiền 8.8m và chiều sâu nhà 15m khoa học:
- Tầng 1: Phòng khách 35,5m2, Phòng bếp ăn 28m2, Phòng ngủ 01 15,5m2, Phòng ngủ 02 11,5m2
Khu bếp phụ tầng 1: Bếp phụ 12,7 m2, Phòng Wc 01 3 m2, Phòng Wc 02 3,5 m2.
- Tầng 2: Phòng ngủ 03 36,5m2, Phòng ngủ 04 11,5 m2, Phòng ngủ 05 20,5m2, Phòng sinh hoạt chung 24m2, Sân phơi 18m2, Phòng Wc 03 6,5 m2, Phòng Wc 04 3 m2, Phòng Wc 05 3,5 m2.
Mặt tiền được thiết kế theo phong cách đối xứng hoàng gia, với ba trục cửa sổ vòm lớn trên tầng hai, tạo sự trang nghiêm, sang trọng tuyệt đối.
Hệ mái Nhật màu xanh đen với các chóp mái trang trí không chỉ gia tăng chiều cao và sự bề thế mà còn thể hiện sự tinh tế trong lựa chọn kiến trúc, đảm bảo sự thoát mát và chống nóng, thoát nước mưa hiệu quả.
Phía trước sảnh chính được bố trí đài phun nước không chỉ làm đẹp cảnh quan mà còn mang ý nghĩa phong thủy, nơi thu hút vượng khí, tài lộc cho gia chủ.
Cảnh quan được quy hoạch khoa học, tạo nên một không gian xanh mát, thư thái, biến ngôi nhà thành một resort thu nhỏ ngay tại thành phố Thái Nguyên.
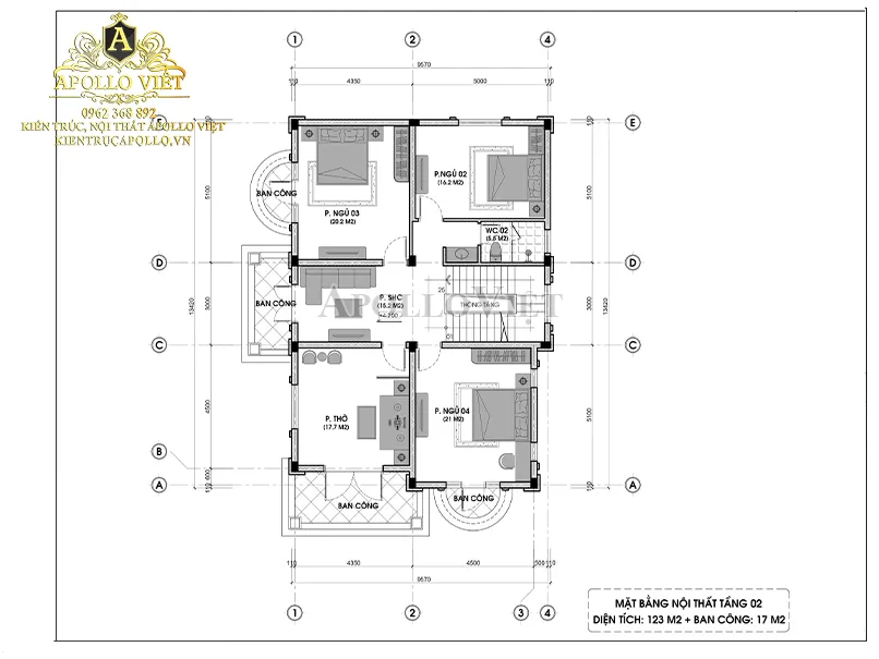
Hơn thế nữa, không gian sống nội thất được kiến trúc sư Apollo Việt thiết kế khoa học, tiện ích cho cả đại gia đình 3 thế hệ sinh sống. Cụ thể
- Tầng 1: phòng khách 38m2, phòng ngủ master 20.5m2, phòng ngủ master kết hợp thay đồ 28m2, bếp ăn 32m2, kho rượu 3m2, WC 3.5m2
- Tầng 2: 2 phòng ngủ master kết hợp thay đồ 23m2 và 26.7m2, 1 phòng ngủ khép kín 18m2, phòng SHC 22m2, phòng thờ 18m2
Biệt thự phố 2 tầng kiểu Pháp tái hiện hoàn hảo kiến trúc cổ điển lãng mạn, tinh xảo, đưa gia chủ lạc vào không gian sống kiêu sa như đang ở giữa lòng Paris hoa lệ.
Sự khác biệt và đẳng cấp của mẫu biệt thự này đến từ những chi tiết kiến trúc độc đáo:
Mái vòm baroque đặc trưng: Điểm nhấn uy quyền nhất là chi tiết mái vòm, thường thấy trong các cung điện và dinh thự quý tộc Pháp, tạo nên sự độc bản và vẻ ngoài bề thế hiếm có.
Chi tiết phù điêu tinh xảo: Các đường phù điêu, gờ chỉ được chạm trổ cầu kỳ, chạy uốn lượn tại sảnh chính và các ô cửa sổ vòm lớn, thể hiện sự am hiểu sâu sắc và kỹ thuật thi công đỉnh cao của đội ngũ Apollo Việt.
Mặt tiền kiều diễm: Thiết kế mặt đứng cao ráo, thanh thoát, kết hợp với các ban công sắt nghệ thuật mạ vàng đồng lộng lẫy, tạo nên sự hài hòa tuyệt đối giữa vẻ đẹp cổ kính và chất liệu hiện đại.
Diện tích xây dựng mỗi sàn khoảng 120m2 với mặt tiền 8,1m toát nên sự sang trọng và thu hút. Công năng căn biệt thự được tính toán khoa học và hợp phong thủy:
- Tầng 1: Khu vực phòng thờ; phòng khách, phòng bếp ăn, phòng ngủ khép kín, sân gia công, wc chung
- Tầng 2: Phòng SHC, 1 phòng ngủ khép kín + phòng thay đồ, 2 phòng ngủ thường, wc chung
- Tầng tum: Phòng ngủ thường, phòng thể dục, sân chơi, sân phơi, wc chung
b. Biệt thự 2 tầng 1 tum phong cách pháp mansard quyền quý BT22109
Biệt thự 2 tầng 1 tum cổ điển pháp mái mansard. Công trình được thiết kế dành riêng cho Anh Vũ Văn Thành, là biểu tượng của sự sang trọng, bề thế và sự đầu tư hoàn hảo vào chất lượng sống.
Hệ mái Mansard dốc, màu đen thâm trầm là biểu tượng của kiến trúc châu Âu thời thượng. Mái Mansard không chỉ tạo khối hình đồ sộ, hoành tráng mà còn mở rộng không gian sử dụng tối ưu tại tầng áp mái với các ô cửa sổ vòm tinh tế.
Mặt tiền được trang trí bằng các đường phào chỉ, gờ tường và phù điêu đắp nổi nghệ thuật, tạo nên sự cầu kỳ, lộng lẫy và chiều sâu 3D ấn tượng.
Công năng các tầng của căn biệt thự tân cổ điển mái mansard gồm có:
- Tầng 1: Phòng khách, Phòng bếp ăn, Phòng ngủ khép kín, WC chung
- Tầng 2: Phòng ngủ master, 2 Phòng ngủ khép kín, Phòng sinh hoạt chung
- Tum: Phòng thờ, Phòng ngủ khách, WC chung, sân phơi, Phòng Gym
Công trình là sự kết hợp nhuần nhuyễn giữa kiến trúc tân cổ điển châu Âu lãng mạn, hệ thống mái Mansard bề thế và sự tiện nghi tuyệt đối, tạo nên một không gian sống độc tôn giữa lòng đô thị.
Điểm nhấn mạnh mẽ nhất là chi tiết mái vòm tại khối tháp phụ, được mạ vàng đồng lấp lánh, tạo cảm giác hoàng gia, kiêu sa và là dấu ấn riêng biệt không thể nhầm lẫn.
Hệ mái Mansard đen truyền thống không chỉ gia tăng chiều cao, tạo cảm giác bề thế, mở rộng không gian sử dụng, tối ưu diện tích xây dựng trên đất phố.
Toàn bộ công trình toát lên vẻ quyền quý nhờ tông trắng tinh khôi và hệ thống cổng rào, lan can bằng nhôm đúc tinh xảo, thể hiện sự đầu tư không giới hạn vào vẻ đẹp ngoại thất.
- Tầng 1: Phòng khách, Phòng bếp và ăn, Phòng ngủ khép kín, WC chung, Gara ô tô
- Tầng 2: Phòng thờ, Phòng SHC, Phòng ngủ Master, Phòng ngủ khép kín
- Tầng tum: Phòng thể dục, Khu chức năng, Sân chơi
Công trình không chỉ là ngôi nhà để ở mà còn mang lại cho gia chủ một không gian sống uy nghi và sang trọng.
Mặt tiền được thiết kế với sự cân bằng đối xứng, tạo cảm giác trang trọng, uy quyền. Trục giữa được nhấn mạnh bằng hệ thống cột trụ lớn, ban công uốn lượn và cửa sổ vòm kiêu sa.
Từ các phù điêu đắp nổi tại sảnh chính đến các chóp nhọn trang trí trên đỉnh mái, mỗi chi tiết đều được chạm khắc tỉ mỉ, khẳng định sự đầu tư nghệ thuật và vật chất không giới hạn của gia chủ.
Ngôi nhà biệt thự sở hữu mặt tiền 14m và chiều sâu nhà 11,3m, công trình hiện lên vô cùng bề thế và hoành tráng.
Công năng biệt thự luôn được kiến trúc sư chủ trì Apollo Việt tính toán kĩ lưỡng , khoa học và hợp phong thủy:
+ Tầng 1: Phòng khách, phòng bếp + ăn, 1 phòng ngủ khép kín, 1 phòng ngủ thường, wc chung.
+ Tầng 2: Phòng SHC, 2 phòng ngủ thường, 1 phòng ngủ khép kín, wc chung.
+ Tầng tum: Phòng thờ, phòng chức năng.
Mẫu biệt thự 2 tầng tân cổ điển mái thái chữ L với phối cảnh màu sắc đầy sức sống, một lựa chọn hoàn hảo cho những gia chủ yêu thích sự nổi bật, ấm áp và hướng đến sự may mắn, thịnh vượng theo quan niệm Á Đông.
Ngôi nhà sở hữu khuôn đất vuông vắn với diện tích 13.4 m x 11.4m, KTS đã thiết kế mẫu biệt thự tân cổ điển chữ L với hệ mái thái đỏ ấn tượng, phần còn lại để bố trí sân vườn gọn gàng, xinh đẹp.
Hệ mái Thái dốc, giật cấp với màu đỏ cam tươi tắn (hoặc cam đất) tạo sự tương phản mạnh mẽ, mang lại nguồn năng lượng tích cực và sự may mắn, rất phù hợp với gu thẩm mỹ và văn hóa của người Việt.
Với thiết kế dạng chữ L với nhiều mặt tiếp giáp tự nhiên, giúp cho các phòng ốc trong nhà đều có thể mở nhiều cửa sổ và ban công, tạo sự kết nối tuyệt vời giữa không gian bên trong và cảnh quan sân vườn bên ngoài.
Diện tích xây dựng mỗi tầng gần 60m2 với mức đầu tư hơn 1 tỷ, ngôi nhà khoe được trọn vẹn vẻ đẹp bề thế. Ngoài ra, bên trong nội thất cũng được bố trí đầy đủ, tiện nghi và khoa học:
- Tầng 1: Phòng khách kết hợp phòng thờ, Phòng bếp ăn, Phòng ngủ đơn
- Tầng 2: 3 Phòng ngủ khép kín
Mẫu biệt thự 2 tầng tân cổ điển chữ L này là một thiết kế thông minh, tối ưu hóa cả không gian kiến trúc và cảnh quan sân vườn. Đây là lựa chọn hoàn hảo cho những gia chủ đề cao sự tiện nghi, thoáng đãng và mong muốn một cuộc sống gần gũi với thiên nhiên ngay tại tổ ấm của mình.
Mặc dù khuôn đất vuông vắn, nhưng thiết kế đã khéo léo tạo ra các góc sân vườn, hiên nhà và ban công để phá vỡ sự đơn điệu, tạo nên tầm nhìn đa chiều từ mọi không gian chức năng.
Tận Dụng Ánh Sáng Tối Đa: Với hệ thống cửa sổ lớn và cửa vòm được bố trí ở nhiều mặt tiền, ngôi nhà luôn nhận được ánh sáng tự nhiên, giúp không gian nội thất luôn bừng sáng, tiết kiệm năng lượng.
Hệ mái Nhật dốc không chỉ là điểm nhấn thẩm mỹ thanh thoát mà còn giải quyết triệt để vấn đề chống nóng, thoát nước, đảm bảo sự bền vững của công trình theo thời gian.
Bản vẽ mặt bằng công năng các tầng cho thấy sự phân chia chức năng hợp lý, phù hợp với nếp sinh hoạt gia đình Việt, cụ thể:
- Tầng 1: Phòng Khách, phòng bếp & ăn, phòng ngủ, WC
- Tầng 2 : Phòng ngủ master, 2 phòng ngủ phụ, phòng thờ, khu vực SHC.
Một bản vẽ 3D đẹp mắt là cần thiết, nhưng năng lực thực sự của một đơn vị thiết kế thi công được thể hiện qua các công trình thực tế. Tại [Tên Công ty], chúng tôi tự hào về khả năng hiện thực hóa những ý tưởng thiết kế phức tạp nhất thành những công trình hoàn mỹ.
Cam kết Chất lượng: Chúng tôi cam kết công trình hoàn thiện thực tế giống ít nhất 95% so với bản vẽ phối cảnh 3D, đảm bảo sự sắc nét trong từng chi tiết phào chỉ và chất lượng vật liệu đầu vào.
Phối cảnh 3D thể hiện một thiết kế tinh xảo, tối ưu cho mặt tiền chỉ hơn 7m, với điểm nhấn là hệ mái Thái dốc và các chi tiết vòm cong mềm mại, ban công sắt mỹ thuật. Mức đầu tư của công trình khoảng 7 triệu/m2 sàn.
Công trình thực tế đang trong giai đoạn hoàn thiện phần thô, các chi tiết kiến trúc phức tạp đã được định hình rõ nét. Đây là một thiết kế khó với mặt tiền tương đối hẹp nhưng chiều cao lớn nhằm tạo cảm giác thanh thoát, bề thế. Hình ảnh thực tế chứng minh công trình đã thể hiện đúng tỷ lệ vàng giữa chiều ngang và chiều cao như bản vẽ. Sự cân đối tổng thể từ khối đế đến phần mái được đảm bảo tuyệt đối.
Hệ thống phào chỉ phân tầng, gờ trang trí quanh cửa sổ và diềm mái. Dù mới chỉ là lớp vữa trát thô nhưng đã thể hiện được sự sắc nét, thẳng hàng và đúng tiết diện như thiết kế. Các thức cột vuông kép tại sảnh chính tầng 1 được đắp vẽ vuông vắn, bề mặt phẳng mịn, tạo nên sự vững chãi cho khối đế công trình.
Việc đảm bảo độ chính xác tuyệt đối ngay từ phần thô là cam kết mạnh mẽ nhất của chúng tôi. Đây là nền tảng vững chắc để tiến hành các bước hoàn thiện tiếp theo, đảm bảo công trình khi bàn giao sẽ đạt đến độ tinh xảo và hoàn mỹ đúng như kỳ vọng của gia chủ.
Khác với sự uy nghi, đối xứng tuyệt đối của kiến trúc cổ điển thuần túy, mẫu biệt thự 2 tầng mái Thái này mang hơi hướng Modern Classic rõ nét.
Thiết kế sử dụng bố cục bất đối xứng đầy phóng khoáng và hiện đại, nhưng vẫn giữ được nét sang trọng nhờ việc sử dụng các chi tiết tân cổ điển một cách tinh tế.
Công trình thực tế đã tái hiện gần như hoàn hảo vẻ đẹp thanh lịch và tinh tế của bản vẽ 3D, thể hiện năng lực thi công xuất sắc.
Việc thi công một công trình bất đối xứng đòi hỏi sự tỉ mỉ cao độ để đảm bảo các khối lồi, khối lõm (khối âm- dương), tỷ lệ giữa các mảng kiến trúc được cân bằng và hài hòa.
Hình ảnh thực tế cho thấy hình khối tổng thể, từ vị trí các ban công, sảnh chính cho đến cấu trúc mái phức hợp, đều được thực hiện chính xác tuyệt đối so với thiết kế, tạo nên vẻ đẹp thanh thoát, cao ráo.
Các đường phào chỉ được thi công thanh mảnh, thẳng tắp và cực kỳ sắc nét. Điều này giúp công trình trông thanh thoát, hiện đại mà không bị nặng nề.
Phối cảnh 3D thể hiện ý tưởng về một công trình bề thế với hình khối vuông vắn, hệ mái Nhật màu xanh đen thanh lịch và các chi tiết ngoại thất tinh tế. Công trình không chỉ là nơi để ở mà là nơi cả gia đình hưởng thụ cuộc sống, chính vì thế ngôi biệt thự được đầu tư các vật liệu hoàn thiện ở mức khá và cao cấp, với khoảng 10 triệu/m2 sàn.
Khi đối chiếu giữa ảnh thực tế và bản vẽ 3D, chúng ta có thể khẳng định mức độ hoàn thiện xuất sắc và sự nhất quán của công trình: Độ chính xác tuyệt đối về Hình khối và Tỷ lệ: Toàn bộ cấu trúc, tỷ lệ kiến trúc tổng thể, sự phân chia giữa các tầng, và các khối đua ra ở sảnh chính, sảnh phụ đều được thực hiện chính xác tuyệt đối so với thiết kế.
Công trình thực tế còn ấn tượng hơn bản vẽ khi được đặt trong bối cảnh tự nhiên. Sự kết hợp giữa kiến trúc vững chãi và sự mềm mại của cây xanh bao quanh đã tạo nên một không gian sống nghỉ dưỡng lý tưởng.
Sự kết hợp giữa kiến trúc Tân cổ điển bề thế và hệ Mái Nhật thanh lịch tạo ra một tổng thể vừa sang trọng lại vừa tinh tế. Kiến trúc tân cổ điển đặc biệt khắt khe về tính đối xứng, lấy sảnh chính làm trung tâm, các hệ cột, cửa sổ, ban công hai bên đều được thi công với tỷ lệ chuẩn xác tuyệt đối, tạo nên vẻ đẹp uy nghi, vững chãi và hài hòa.
Các ô cửa vòm lớn ở tầng 2 là điểm nhấn tạo sự mềm mại, duyên dáng cho công trình. Việc thi công đảm bảo đường cong mượt mà, sắc nét, kết hợp hoàn hảo với hệ thống phào chỉ bao quanh và hệ nhôm kính cao cấp.
Khu vực sảnh chính được hoàn thiện bề thế với hệ cột đôi vuông vắn, vững chãi. Khối đế, bậc tam cấp và khu vực sảnh được ốp đá tự nhiên sang trọng, đúng như thiết kế, giúp công trình trở nên kiên cố và đẳng cấp.
Trong các trường phái kiến trúc tân cổ điển, phong cách Pháp với hệ mái Mansard và các chi tiết trang trí dày đặc là thách thức lớn nhất đối với bất kỳ đơn vị thi công nào.
Khi chiêm ngưỡng công trình thực tế, chúng ta không chỉ thấy sự hoàn hảo từ giai đoạn thiết kế, mà còn cảm nhận được cái "hồn" của kiến trúc tân cổ điển được thổi vào từng chi tiết. Chỉ với mức đầu tư khoảng hơn 3 tỷ, gia đình chú Hoàn đã sở hữu căn biệt thự tân cổ điển mái mansard vạn người mê.
Các bức phù điêu lớn tại khu vực sảnh chính và trên đỉnh mái. Các chi tiết hoa lá tây (floral motifs), dải lụa được đắp nổi vô cùng sắc nét, kênh bong (có chiều sâu) và mềm mại. Độ tinh xảo này chỉ có thể đạt được bởi những nghệ nhân lành nghề nhất, khác biệt hoàn toàn với việc sử dụng hoa văn đúc sẵn kém chất lượng trên thị trường.
Thi công Hệ Mái Mansard là một kết cấu phức tạp đòi hỏi kỹ thuật cao về kết cấu và chống thấm. Công trình thực tế đã thể hiện hoàn hảo khối mái hình thang úp ngược đồ sộ này.
Tỷ lệ Kiến trúc và Sự Bề thế: Mặc dù có rất nhiều chi tiết trang trí, công trình thực tế vẫn giữ được tỷ lệ hài hòa, cân đối tuyệt đối so với bản vẽ 3D. Sự kết hợp giữa hệ cột thông tầng vững chãi, khối đế kiên cố và phần mái cao vút tạo nên vẻ đẹp nguy nga, trường tồn.
Nước sơn trắng sứ sắc nét, mịn màng làm nổi bật tối đa các chi tiết phù điêu. Khu vực sảnh với bậc thang và sàn lát đá tự nhiên càng làm tăng thêm vẻ sang trọng cho lối vào.
Quy trình làm việc chuẩn hóa:
Dưới đây là tổng hợp những câu hỏi thường gặp nhất trong quá trình thiết kế và thi công biệt thự tân cổ điển 2 tầng.
1. Thời gian thiết kế và thi công hoàn thiện mất bao lâu? Thời gian trung bình cho một dự án biệt thự 2 tầng là:
2. Đất mặt tiền hẹp (6-7m) có làm được tân cổ điển 2 tầng không?
3. Nên chọn mái Thái hay mái Nhật cho nhà 2 tầng? Việc lựa chọn phụ thuộc vào sở thích thẩm mỹ và ngân sách của bạn:
4. Làm sao để kiểm soát chi phí không phát sinh? Để kiểm soát chi phí, bạn cần:
Biệt thự tân cổ điển 2 tầng là sự lựa chọn hoàn hảo cho những gia chủ đang tìm kiếm một không gian sống sang trọng, tiện nghi, thể hiện đẳng cấp nhưng vẫn nằm trong một ngân sách đầu tư hợp lý. Sự cân bằng giữa thẩm mỹ vượt thời gian và công năng tối ưu khiến mô hình này luôn giữ vững vị thế hàng đầu tại Việt Nam.
Tuy nhiên, để kiến tạo nên một công trình hoàn mỹ, việc lựa chọn một đơn vị thiết kế và thi công chuyên nghiệp, giàu kinh nghiệm là yếu tố quyết định.
Bạn đã sẵn sàng kiến tạo không gian sống mơ ước?
Hãy liên hệ ngay với APOLLO VIỆT Ngay để nhận Tư Vấn Chuyên Sâu và Báo Giá Chi Tiết từ đội ngũ Kiến trúc sư hàng đầu của chúng tôi.