Ngôi biệt thự đẹp 2 tầng 1 tum được thiết kế theo phong cách kiến trúc tân cổ điển châu Âu sang trọng và hoàng gia.
Trong bài viết này, Apollo Việt chia sẻ đến quý vị mẫu biệt thự 2 tầng 1 tum của gia đình anh Vĩnh tại Quỳnh Lưu, Nghệ An – Ngôi nhà vô cùng hoành tráng và nổi bật.
1. Phối cảnh Biệt thự 2 tầng 1 tum đẹp
Ngôi nhà chính là một phần thể hiện đẳng cấp cũng như vị thế của gia chủ. Do vậy, mẫu thiết kế biệt thự tân cổ điển 2 tầng 1 tum lộng lẫy, xa hoa là một trong những mẫu được nhiều gia chủ giới thượng lưu lựa chọn.
Sở hữu khuôn đất đắc địa với mặt tiền 9m, chiều sâu đất lên tới 33m. KTS Apollo Việt đã tư vấn anh Vĩnh xây dựng trên diện tích là 9m x 18.5m, riêng tầng 1 thì đua ra khối phía sau để xây công trình phụ và Phòng bếp ăn.
Diện tích còn lại dành cho không gian sân vườn và chỗ để xe ô tô.
Công trình xây trên lô đất liền kề với 1 mặt thoáng duy nhất nên KTS tập trung thiết kế cho mặt tiền chính diện để tạo sự hoành tráng, bề thế. Ngoài ra, chúng tôi đã thiết kế thêm hệ mái chóp 2 tầng hoành tráng cao lớn lên tới 6,6m, nhằm tạo sự nổi bật và sức hút đặc biệt khi bất cứ ai ngắm nhìn.
Khối sảnh chính, KTS ốp đá màu vàng đậm rất rực rỡ và nổi bật. Thêm vào đó là 2 cặp trụ cột vuông tròn kết hợp, vừa nhẹ nhàng e ấp, vừa vững chãi, chắn chắn để nâng đỡ bức chương sảnh cầu kỳ.
Các diện tường cũng sử dụng các cặp trụ cột khép kết hợp cột vuông và cột tròn thể theo thức cột Corinth thức cột hoa mỹ nhất với những cánh hoa cánh lá tỏa ra nhiều hướng, công trình trở nên sinh động, lộng lẫy vô cùng.
KTS cũng khéo léo pha chút phong cách hiện đại thông qua các hệ cửa nhôm kính xingfa, không gian nội thất luôn tràn ngập ánh sáng, thu nạp năng lượng tích cực, không khí lưu thông mát mẻ. Ngoài ra, hệ cửa kính còn giúp công trình trở nên nhẹ nhàng, lịch lãm và không kém phần sang trọng.
Video chi tiết về Mẫu Biệt thự đẹp Tân cổ điển:
Thưa quý vị, tổng thể công trình lấy tone màu vàng làm chủ đạo, với các sắc thái khác nhau, vàng chanh, vàng thư và vàng đậm, tạo nên sự cổ kính đậm chất hoàng gia, vô cùng thu hút.
Hệ mái mansard sử dụng tone màu xanh đen của đá slate Lai Châu càng nổi bật lên vẻ đẹp Tân cổ điển châu Âu, cùng hệ mái chóp 2 tầng rất cầu kỳ và hoành tráng, tổng thể tạo nên bức tranh hoa mỹ và đậm chất quý tộc.
Không thể thiếu là những bồn cây, hoa lá, thảm cỏ tạo không gian xanh tô điểm cho ngoại thất kiến trúc, đồng thời giúp trung hòa không khí, thư giãn và bình yên, giúp cho cả gia đình có 1 không gian sống vô cùng đẳng cấp.
2. Thông tin phong thủy Biệt thự tân cổ điển
Chủ nhà sinh năm 1975 (Tuổi Ất Mão), thuộc Tây tứ mệnh, Ngũ hành: Đại khe thủy (Tức Nước khe lớn).
Hướng tốt: Tây Bắc (Sinh khí: Phúc lộc vẹn toàn), Tây Nam (Thiên y: Gặp thiên thời, được che chở), Đông Bắc (Diên niên: Mọi sự ổn định), Tây (Phục vị: Được sự giúp đỡ)
Hướng xấu: Bắc (Họa hại: Nhà có hung khí), Đông Nam (Lục sát: Nhà có sát khí), Nam (Ngũ quỉ: Gặp tai họa), Đông (Tuyệt mệnh: Chết chóc)
Đối với nhà ở hướng xấu chúng tôi có đội ngũ chuyên môn là các thầy phong thủy hàng đầu Việt Nam sẽ tư vấn và đưa ra các phương án để hóa giải, giúp cho ngôi nhà giảm bớt được cái xấu và tăng những điểm tốt.
3. Bố trí công năng biệt thự 2 tầng tân cổ điển
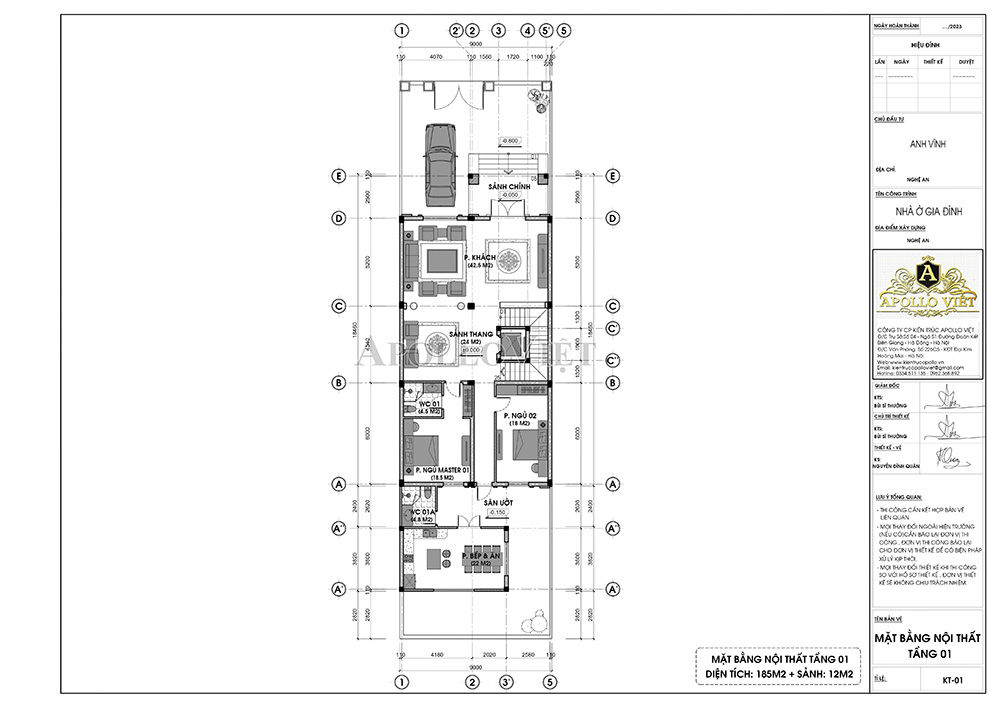
Tiếp theo xin mời quý vị cùng khám phá mặt bằng công năng chi tiết: Công trình sở hữu mặt tiền 9m, chiều sâu nhà 16m, diện tích xây dựng mỗi sàn gần 150m2, cụ thể:
Tầng 1: Phòng khách 42.5m2, Sảnh thang 24m2, Phòng ngủ master 23m2, Phòng ngủ đơn 18m2, WC chung, Phòng bếp ăn 22m2
Tầng 2: Phòng ngủ Master kết hợp thay đồ 43.5m2, Phòng SHC 24m2, Phòng ngủ master 23m2, Phòng ngủ đơn 18m2,
Tum: Sân chơi 20m2, Phòng thờ 22m2, Phòng tập thể dục 24m2, Sân phơi 50m2.
Từ sảnh chính bước vào là Phòng khách rộng 42.5m2, phòng khách rất vuông vắn và hoành tráng, tiếp đến là khu vực sảnh thang 24m2, nơi đây để gia đình quây quần, thư giãn. 2 Không gian kết nối mở giúp cho phòng khách càng trông rộng và thoáng hơn.
Đi sâu vào bên trong là phòng ngủ master có diện tích 23m2 rất tiện nghi và rộng rãi. Đối diện là 1 phòng ngủ đơn 18m2.
Đi dọc theo hàng lang qua chiếc cửa sẽ là nhà vệ sinh chung được bố trí bên ngoài nhà chính, nhằm tạo sự riêng tư và sạch sẽ. Đồng thời, Nhà vệ sinh này sẽ để phục vụ nhu cầu sinh hoạt khi ở phòng ăn, Phòng ngủ đơn và khách đến chơi nhà.
Phòng bếp ăn được đặt bên ngoài nhà chính, rất rộng rãi với diện tích 22m2. Vì phòng ăn đặt ở phía sau nhà nên ngoài cửa chính KTS bố trí thêm 2 cửa số lớn để lấy ánh sáng, gió thoáng mát, giúp thoát mùi nhanh chóng, không gian bếp luôn sáng sủa và sạnh sẽ.
Thưa quý vị, Ngân Hà vừa chia sẻ đến quý vị 1 mẫu nhà biêt thự 2 tầng 1 tum với kiến trúc vô cùng tráng lệ và sang trọng, không gian nội thất được cân đối hài hòa và tối ưu nhất cho chủ đầu tư.
Nếu quý vị mong muốn sở hữu một mẫu nhà đẹp như vậy, hãy liên hệ ngay theo số Hotline 0962 368 892 hoặc 0334 511 135 để được tư vấn và hỗ trợ tốt nhất.
Apollo Việt cung cấp giải pháp Thiết kế thi công trọn gói nhằm mang đến không gian hoàn mỹ, sang trọng cho mọi gia đình Việt.















