1. Kiến trúc nổi bật của biệt thự hiện đại 3 tầng
Công năng:
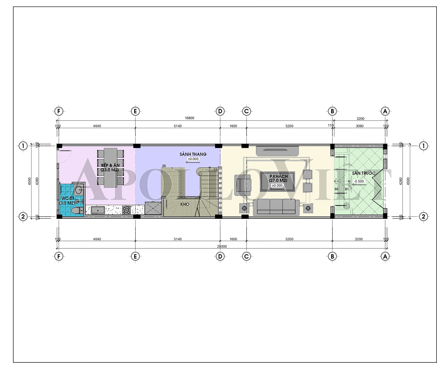
- Tầng 1: Phòng khách 27m2, Phòng bếp & ăn 23m2, WC 3m2, Kho.
- Tầng 2: Phòng ngủ Master 42m2, Phòng ngủ khép kín 26m2.
- Tầng 3: Phòng thờ 12.8m2, Phòng ngủ 15m2 & 16m2, WC 3m2, Sân phơi 9m2.
Tổng thể ngôi nhà gây ấn tượng mạnh với hình khối vuông vắn, chắc khỏe, mang đúng tinh thần của các mẫu biệt thự 3 tầng phong cách hiện đại. Những mảng tường giật cấp, ban công đua nhẹ và hệ cửa kính lớn giúp mặt tiền trở nên sống động, trẻ trung và sang trọng hơn.
Ban công tầng 2 và tầng 3 được thiết kế lệch nhịp, kết hợp lan can sắt họa tiết hiện đại – vừa tăng tính thẩm mỹ, vừa tạo chiều sâu kiến trúc, một đặc trưng thường thấy trong các biệt thự hiện đại 3 tầng mặt tiền hẹp.
2. Màu sắc – vật liệu tạo nên tính hiện đại
Tầng 1 được ốp đá granite nâu đen kết hợp trắng xám, mang lại cảm giác vững chãi, bền bỉ và hạn chế nấm mốc – giải pháp thường dùng trong nhiều mẫu biệt thự hiện đại 3 tầng đẹp.
Lên đến tầng 2 và tầng 3 là sự hòa quyện tinh tế giữa trắng tinh khôi và xám hiện đại cùng điểm nhấn nâu gỗ ấm
Bố cục này tạo nên vẻ đẹp thanh thoát nhưng vẫn sang trọng. Những mảng lam gỗ nhựa giả gỗ ở tầng 2 giúp mềm mại hình khối bê tông, đồng thời tăng sự kết nối giữa biệt thự và thiên nhiên – yếu tố được yêu thích trong các biệt thự hiện đại 3 tầng có ban công.
3. Ánh sáng – yếu tố không thể thiếu trong thiết kế biệt thự hiện đại
Toàn bộ hệ cửa kính khung nhôm cao cấp được bố trí chạy xuyên suốt các tầng, giúp không gian bên trong luôn ngập tràn ánh sáng tự nhiên. Đây cũng là điểm nhấn quan trọng của các mẫu biệt thự 3 tầng hiện đại 2025, mang lại cảm giác thông thoáng, mở rộng tầm nhìn và tiết kiệm năng lượng.
Đèn ngoại thất âm trần, phào chỉ nhẹ và ban công bố trí cây xanh nhỏ góp phần tạo nên mặt tiền trẻ trung, thanh lịch nhưng không phô trương. Tất cả thể hiện gu thẩm mỹ tinh tế của gia chủ và năng lực sáng tạo của đội ngũ kiến trúc sư Apollo Việt.
4. Mặt bằng công năng biệt thự hiện đại 3 tầng khoa học – tối ưu
Không chỉ đẹp về kiến trúc, công trình còn ghi điểm nhờ cách bố trí mặt bằng hợp lý – ưu tiên sự tiện nghi và riêng tư cho từng thành viên.
Tầng 1:
Phòng khách: 27m²
Phòng bếp & ăn: 23m²
WC chung: 3m²
Kho
Bước vào từ sảnh chính là không gian sinh hoạt chung của gia đình. Phòng khách rộng 27m² được bố trí ngay phía trước, nơi đón tiếp khách và quây quần của các thành viên, mang lại cảm giác sang trọng và thoải mái. Liền kề là khu bếp và phòng ăn rộng 23m², thiết kế liên thông giúp tối ưu không gian sử dụng và thuận tiện cho những bữa cơm sum vầy.
Công trình biệt thự của gia đình chị Hương không chỉ thể hiện gu thẩm mỹ tinh tế, mà còn minh chứng cho sự tính toán hợp lý trong thiết kế và thi công của đội ngũ Apollo Việt – từ khối kiến trúc đến công năng đều được hoàn thiện chỉn chu, tối ưu từng mét vuông sử dụng.















