Khi nghĩ đến một ngôi nhà sang trọng và đẳng cấp, chắc hẳn không ít người sẽ tưởng tượng đến căn nhà phố 3 tầng 1 tum phong cách tân cổ điển châu Âu.
Với kiến trúc đậm chất cổ điển nhưng vẫn mang nét đẹp hiện đại và tiện nghi, mẫu biệt thự không chỉ là nơi ở lý tưởng mà còn là biểu tượng của sự thành đạt và thịnh vượng.
Hãy cùng Kiến trúc Apollo khám phá chi tiết hơn hơn về thiết kế và các đặc điểm độc đáo của một biệt thự 3 tầng 1 tum phong cách tân cổ điển châu Âu.
1. Thông tin công trình Nhà phố tân cổ điển đẹp BT23113
Tầng trệt: Khu vực kinh doanh và bếp lớn
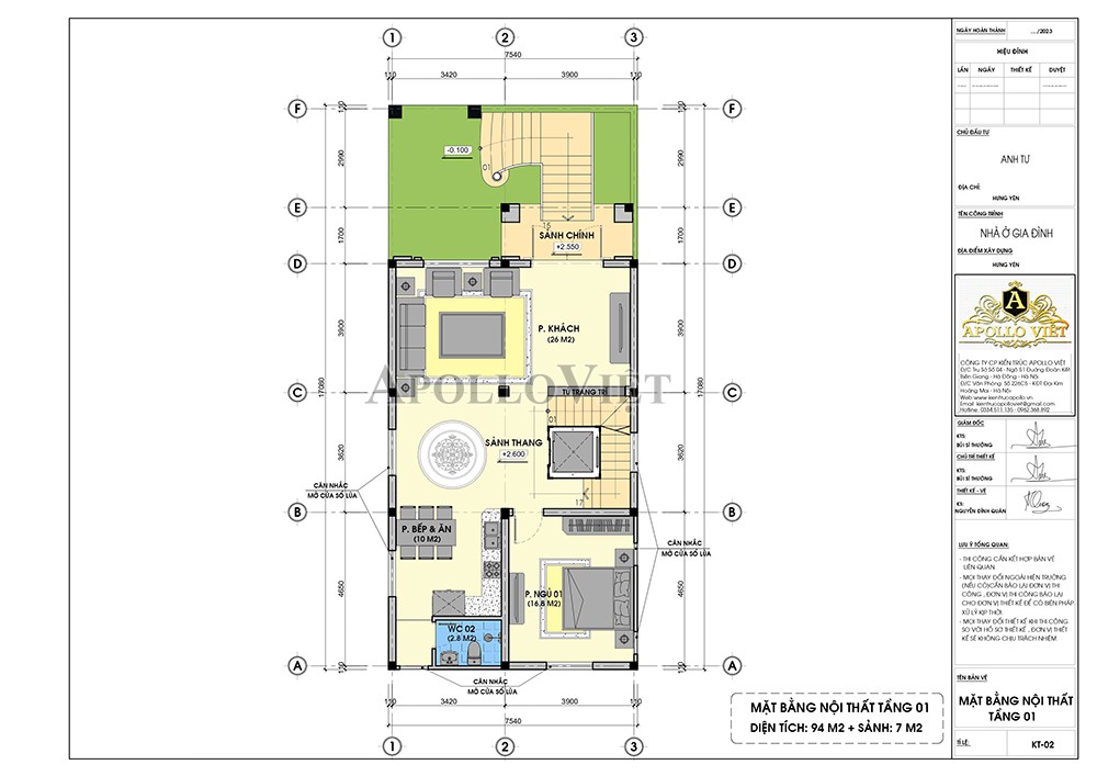
Tầng 1: Phòng khách, Phòng bếp ăn gia đình, Phòng ngủ thường, WC chung
Tầng 2: Phòng ngủ master, 2 Phòng ngủ thường, Phòng sinh hoạt chung
Tầng tum: Phòng thờ, Phòng chờ, Phòng ngủ khách, Sân phơi, WC chung.
2. Phối cảnh mẫu biệt thự 3 tầng 1 tum tân cổ điển
Màu sơn trắng bao phủ trên toàn bộ biệt thự tạo ra vẻ đẹp thanh lịch, trang nhã và đẳng cấp. Đèn chùm vàng được đặt ngay cửa chính tạo ra ánh sáng ấm áp và làm nổi bật kiến trúc tân cổ điển châu Âu.
Các chi tiết trong ngôi biệt thự được phối hợp và xây dựng trên nền tảng chất liệu đương đại, nhằm tạo ra một kiệt tác độc đáo, sáng tạo, phù hợp với xu thế và có thể tồn tại với thời gian.
Dáng vẻ của biệt thự rất bề thế và được trang trí bằng tông màu thanh nhã, hài hòa với hệ thống phào chỉ và hoa văn được tinh luyện một cách tinh tế, tạo nên nét đẹp hoàn mỹ cho từng chi tiết.
Bên cạnh đó, sắc trắng chủ đạo kết hợp với tông xanh đen của hệ mái mansard, tạo ra sự hài hòa và nhẹ nhàng cho ngôi nhà. Đây là một trong những đặc trưng của phong cách tân cổ điển châu Âu, giúp biệt thự trở nên sang trọng và đẳng cấp.
Tầng 2 của căn biệt thự được trang trí với bức trướng sảnh thiết kế bởi các kiến trúc sư Apollo. Với các họa tiết phù điêu và lá uốn nhẹ nhàng, bức trướng sảnh tạo nên một không gian trang trí độc đáo và tinh tế.
Trung tâm của bức trướng là chi tiết hình tròn với vương miện bên trên, phía dưới có 2 thiên thần và các họa tiết tỏa đều sang 2 bên. Bên cạnh chức năng thẩm mỹ, bức trướng sảnh còn được sử dụng làm lan can ban công cho tầng 2 của căn biệt thự.
Không chỉ tầng 1, tầng 2 và tầng 3 của căn biệt thự cũng được thiết kế tinh tế với các chi tiết sang trọng. Đặc biệt, 2 cột trụ tròn từ tầng 2 lên tầng 3 được thiết kế với các rãnh soi và họa tiết lá tỏa xung quanh, mang lại vẻ đẹp nhẹ nhàng, nổi bật cho căn nhà.
Các cột trụ vuông ở tầng 1 tạo thành khối vững chắc, trên thân các cột được thiết kế với các họa tiết hoa dây nhẹ nhàng.
Điểm nhấn quan trọng của bức trướng mái tạo nét tân cổ điển cho căn biệt thự chính là mặt ngọc được thiết kế với các phù điêu nhẹ nhàng. Tất cả các chi tiết được phối hợp một cách tinh tế, mang lại vẻ đẹp độc đáo và sang trọng cho căn biệt thự.
3. Công năng mẫu nhà phố tân cổ điển thiết kế khoa học
Căn biệt thự không chỉ sở hữu vẻ ngoài sang trọng và lịch lãm mà còn có công năng phù hợp với nhu cầu của các thành viên trong gia đình và hợp phong thủy để mang đến tài lộc cho gia chủ.
- Tầng trệt: Khu vực kinh doanh và bếp lớn
- Tầng 1: Phòng khách, Phòng bếp ăn gia đình, Phòng ngủ thường, WC chung
- Tầng 2: Phòng ngủ master, 2 Phòng ngủ thường, Phòng sinh hoạt chung
- Tầng tum: Phòng thờ, Phòng chờ, Phòng ngủ khách, Sân phơi, WC chung.
Tầng 1 được thiết kế với phòng khách thoáng rộng, có nhiều cửa sổ để tạo không gian thoáng mát, rộng rãi.
Bên cạnh đó, căn biệt thự còn sở hữu sảnh thang từ phòng khách đến phòng bếp, tạo không gian rộng rãi cho các buổi sum họp gia đình, bạn bè gia chủ.
Phòng bếp được thiết kế ấm cúng, mang lại không gian thoải mái cho gia đình trong những bữa ăn.
Phía cuối nhà bố trí 1 nhà vệ sinh nhỏ gọn, riêng tư. Ngoài ra, KTS bố trí Một phòng ngủ 17m2 được thiết kế cuối nhà, không gian yên tĩnh cho ông bà nghỉ ngơi.
Trên đây là những đặc trưng nổi bật của biệt thự 3 tầng 1 tum phong cách tân cổ điển Châu Âu. Với sự kết hợp hài hòa giữa các yếu tố kiến trúc tân cổ điển Châu Âu và phong cách nội thất hiện đại, căn biệt thự này đã thu hút sự chú ý của nhiều người với vẻ đẹp sang trọng, lịch sự và đầy tính thẩm mỹ.
Ngoài việc mang đến không gian sống tiện nghi và đầy đủ chức năng cho các thành viên trong gia đình, căn biệt thự này còn hợp phong thủy giúp mang đến tài lộc dồi dào cho gia chủ. Đây là một điểm cộng lớn, giúp gia chủ tận hưởng cuộc sống giàu có, thịnh vượng và hạnh phúc.
Với sự đầu tư công phu, tinh tế của các kiến trúc sư nhà Apollo Việt, căn biệt thự 3 tầng 1 tum phong cách tân cổ điển Châu Âu sẽ là một điểm nhấn nổi bật trong không gian sống của gia đình bạn, mang lại niềm hạnh phúc và tự hào cho cả gia đình. Đừng quên bấm nhận thông báo từ Kiến trúc Apollo Việt để không bỏ lỡ bất kỳ mẫu thiết kế độc đáo nào nhé!















