Giữa nhịp sống hiện đại, xu hướng nhà phố tân cổ điển đang chinh phục trái tim các gia chủ tinh tế - nơi sự tiện nghi gặp gỡ vẻ đẹp vượt thời gian. Đặc biệt tại các khu vực trung tâm với quỹ đất hạn chế, phong cách này không chỉ mang đến không gian sống sang trọng mà còn trở thành biểu tượng thịnh vượng, hài hòa với nguyên lý phong thủy, thu hút tài lộc cho gia chủ.
1. Thông tin dự án Nhà tân cổ điển 4 tầng
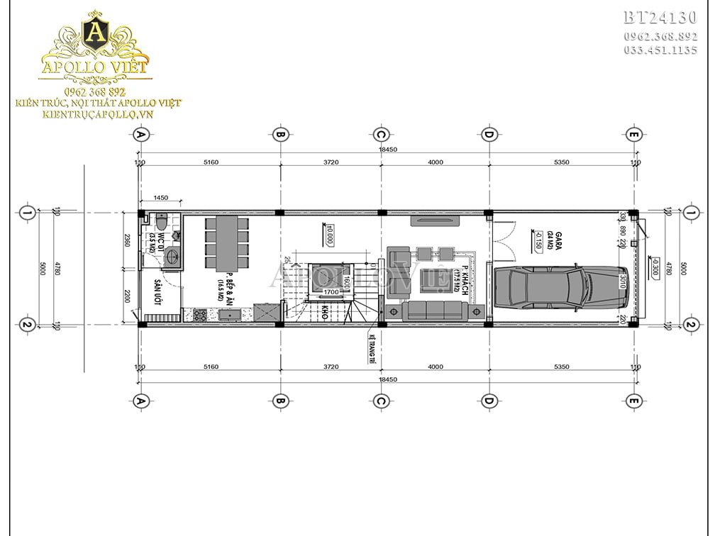
- Tầng 1: Gara, Phòng khách 17.5m2, Phòng bếp & ăn 16.5m2, WC 3.1m2, Sân ướt
- Tầng 2: Phòng ngủ Master 43.5m2, Phòng ngủ 22.7m2
- Tầng 3: Phòng thờ 20m2, Phòng giặt phơi 15m2, Phòng ngủ 22.7m2
- Tầng tum: Sân chơi
Kiến trúc apollo việt tự hào giới thiệu kiệt tác nhà phố tân cổ điển mặt tiền 5m độc đáo tọa lạc tại kđt xuân thành, trung tâm sầm uất của thành phố ninh bình. Công trình này là minh chứng sống động cho triết lý: "không gian hạn chế không giới hạn sự sáng tạo."
2. Ngoại thất Nhà phố tân cổ điển - Vẻ đẹp ngoại thất vượt thời gian
Với tổng diện tích ~400m² được thiết kế 4 tầng, ngôi nhà của gia đình anh chuyên không đơn thuần là nơi cư ngụ mà là tác phẩm nghệ thuật sống. Mỗi chi tiết trên mặt tiền đều được các kts chăm chút tỉ mỉ, tạo nên sự cân bằng hoàn hảo giữa sức mạnh kiến trúc và nét duyên dáng tinh tế.
Đối xứng và cân đối: thiết kế tuân thủ nguyên tắc đối xứng dọc, tạo cảm giác trang nghiêm và đẳng cấp.
Sắc trắng tinh khôi làm tông màu chủ đạo, tựa như bản nhạc giao hưởng thanh âm của kiến trúc châu âu giữa lòng phố thị việt nam. Ngôi nhà sử dụng hệ cột đối xứng, mái vòm, các chi tiết phù điêu và hoa văn trang trí cầu kỳ – nhưng được tiết chế để phù hợp với mặt tiền nhà phố.
Những đường nét kiến trúc sắc sảo kết hợp với họa tiết trang trí tinh xảo tạo nên một tổng thể vừa mạnh mẽ vừa thanh thoát, phản ánh đúng gu thẩm mỹ tinh tế của gia chủ.
Hệ trụ cột đối xứng với đầu cột corinthian đặc trưng, kết hợp gờ chỉ nổi tinh xảo, tạo chiều sâu thị giác.
Các đường cong ở hệ cửa vòm và lan can bán nguyệt giúp công trình “mềm hóa” khối hình chữ nhật thường thấy ở nhà phố.
Ban công nhà được thiết kế như một ốc đảo nhỏ, nơi gia đình có thể đón những tia nắng đầu tiên của bình minh hay thưởng thức không gian yên bình của hoàng hôn sau ngày dài bận rộn.
Đặc biệt, để khắc phục thách thức của mặt tiền 5m, đội ngũ apollo việt đã sáng tạo giải pháp kết hợp giữa cửa cuốn tự động và cửa sắt hoa văn tinh xảo - sự hòa quyện giữa tiện nghi hiện đại và nét đẹp truyền thống, tạo điểm nhấn độc đáo cho toàn bộ công trình.
Trắng kem phối cùng vàng ánh kim: tạo cảm giác tinh tế, nhẹ nhàng và sang trọng.
Đá ốp tầng trệt màu nâu đỏ vân tự nhiên: làm nổi bật tầng trệt, tạo sự vững chắc và đẳng cấp. Cửa chính màu đỏ đậm mang điểm nhấn quý phái và cá tính.
3. Công năng nội thất nhà phố hiện đại, khoa học
Không gian nội thất: khi công năng gặp gỡ nghệ thuật
Với diện tích 100m², mỗi phân khu chức năng đều được tối ưu một cách khoa học và tinh tế:
- Tầng 1: nơi giao hòa giữa gia đình và khách mời
Gara rộng rãi: không gian an toàn cho xế yêu
Phòng khách 17.5m²: tâm điểm giao lưu, tiếp đón với thiết kế sang trọng
Phòng bếp & ăn 16.5m²: nơi hương vị gia đình được thăng hoa
Wc 3.1m² và sân ướt: tối ưu tiện nghi
- Tầng 2: không gian riêng tư đẳng cấp
Phòng ngủ master 43.5m²: vương quốc riêng tư dành cho gia chủ
Phòng ngủ 22.7m²: nơi nghỉ ngơi tĩnh lặng
- Tầng 3: nơi tâm linh và tiện ích
Phòng thờ 20m²: không gian tâm linh trang nghiêm
Phòng giặt phơi 15m²: khu vực tiện ích được bố trí khoa học
Phòng ngủ 22.7m²: thêm không gian nghỉ ngơi cho gia đình
- Tầng tum: thiên đường giải trí
Sân chơi đa năng: nơi thư giãn, giải trí lý tưởng
Bước vào không gian sống này, bạn sẽ ngay lập tức cảm nhận được sự tinh tế trong từng chi tiết thiết kế. Sảnh chính kết hợp hài hòa với gara, tạo không gian di chuyển thuận tiện. Phòng khách rộng rãi là nơi anh chuyên và chị nhung thể hiện phong cách sống đẳng cấp, trong khi khu vực bếp - ăn là tâm điểm của những bữa cơm đầm ấm.
Mẫu nhà phố tân cổ điển 3 tầng 1 tum này không chỉ là không gian sống lý tưởng mà còn là minh chứng cho tài năng và sự tận tâm của đội ngũ kiến trúc apollo việt.
Bạn đang mơ về một không gian sống đẳng cấp tương tự?
Hãy liên hệ ngay với chúng tôi qua hotline: 0962.368.892 – 0865.799.688 – 0385.688.228 để được tư vấn và đồng hành kiến tạo tổ ấm trong mơ của gia đình bạn!
















