Thiết kế khách sạn 7 tầng hiện đang là xu hướng mới, được nhiều chủ đầu tư quan tâm và thi công xây dựng để kịp cho dịp du lịch hè này. Mẫu khách sạn này mang vẻ đẹp ấn tượng, sang trọng và đẳng cấp thu hút nhiều khách hàng tiềm năng.
Cùng Kientrucapollo.vn chia sẻ đến quý vị mẫu khách sạn 7 tầng hiện đại, sang trọng được nhiều chủ đầu tư yêu thích tại Móng Cái, Quảng Ninh.
Thưa quý vị, hiện nay các công trình kinh doanh đặc biệt là Khách sạn đang là xu hướng đầu tư mới, được nhiều chủ đầu tư quan tâm và thi công xây dựng để đáp ứng nhu cầu du lịch, nghỉ dưỡng gia tăng mạnh mẽ.
Mẫu khách sạn này mang vẻ đẹp ấn tượng, sang trọng và đẳng cấp thu hút nhiều khách hàng tiềm năng.
Công trình được thiết kế với mặt tiền 12m và chiều sâu 20m2, diện tích xây dựng mỗi sàn là 240m2 với 7 tầng, đầy đủ công năng tiện nghi, phục vụ số lượng khách hàng lớn hàng ngày.
Mặt tiền khách sạn được thiết kế chỉnh chu, cầu kỳ phô diễn ra được nét quý phái, sang trọng và nâng cao giá trị thẩm mỹ cho tổng thể công trình. Bên cạnh những đường nét kiến trúc hiện đại cùng cách phối màu hài hòa mà mẫu khách sạn này đã thu hút và là lựa chọn hàng đầu của những du khách sành sỏi.
Thiết kế khách sạn 7 tầng có quy mô tầm trung, nhưng đây cũng là một điểm mạnh trong kinh doanh cũng như quản lý đối với các chủ đầu tư vừa và nhỏ.
Mục đích khách sạn xây dựng để phục vụ khách hàng quốc tế với nhu cầu sử dụng lâu dài. Thiết kế hướng tới sự đơn giản, hiện đại và tối ưu chi phí.
Để cân bằng các yếu tố này KTS nghiên cứu phương án để ứng dụng vật liệu phù hợp và tối ưu, cùng với đó là thiết kế vẫn phải mang cá tính, và sự ấn tượng khi bất cứ ai ngắm nhìn.
KTS sử dụng các vật liệu cơ bản như hệ cửa kính, gạch ốp, lan can sắt mỹ thuật, nhưng công trình hiện lên rất sang trọng và ấn tượng. Các đường nét kiến trúc khỏe khoắn, mạnh mẽ, cùng với sự kết hợp màu sắc hết sức tinh tế, tạo nên điểm thu hút đặc biệt cho Khách sạn Anh Thảo.
Toàn bộ hệ cửa được làm bằng kính khung nhôm xingfa chắc chắn, giúp đưa ánh sáng vào trong không gian nội thất, luân chuyển không khí trong lành. Đồng thời không gian cũng rất nhiều view đẹp cho du khách ngắm khung cảnh thiên nhiên bên ngoài. Hơn thế nữa màu ghi xám của hệ cửa kính rất hài hòa với tổng thể kiến trúc, tạo nên vẻ đẹp nhẹ nhàng, thanh lịch.
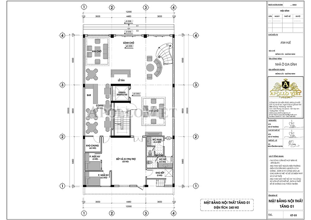
Tiếp theo xin mời quý vị cùng khám phá bố trí công năng của công trình:
Tầng 1 được thiết kế với khu vực sảnh chờ vô cùng rộng lớn, có thể tiếp đón đoàn khách lên tới 50-60 người. Kế bên là quầy bar và khu vực uống caffe thư giãn buổi sáng. Không gian tiếp đón được bố trí hoành tráng, càng giúp cho công trình trở nên ấn tượng và thu hút khách.
Nhà vệ sinh nam và nữa được phân chia riêng biệt, được đặt phía cuối của nhà, rất riêng tư, kín đáo và sạch sẽ.
Đi qua khu vực thanh máy và thang bộ chính là khu vực bếp và phụ trợ 35m2. Phía trong là 2 phòng ngủ dành cho nhân viên và Kho gọn gàng, tiện nghi và tối ưu không gian.
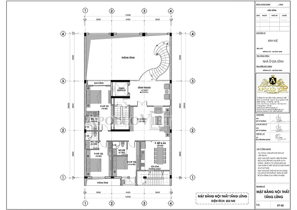
Tiếp đến là tầng lửng, tầng lửng được thiết kế thông tầng với tầng 1, đem lại view cực chất khi ngồi tại khu vực sảnh tiếp đón. Thêm vào đó là chiếc cầu thang bộ uốn lượn từ tầng 1 lên tầng lửng, sang trọng và quý phái vô cùng.
Không gian tầng lửng dành cho khách hàng Vip, với khu vực sảnh thang ngồi thư giãn tuyệt vời. Phía trong là 1 phòng khách lớn 25m2 phục vụ riêng cho 3 phòng ngủ ở tầng này. Phòng bếp ăn được bố trí độc lập. Không gian lý tưởng cho 1 đoàn khách, 1 gia đình lớn ,… để nghỉ ngơi rất hiện đại, tiện nghi.















