Trong những năm gần đây, biệt thự tân cổ điển mái Thái, đặc biệt là các thiết kế biệt thự nhà phố tân cổ điển, luôn là lựa chọn hàng đầu của nhiều chủ đầu tư bởi vẻ đẹp thanh lịch, tinh tế và phù hợp với lô đất mặt phố. Apollo Việt xin giới thiệu tới quý vị mẫu biệt thự tân cổ điển 3 tầng 1 tum mái Thái tại Hưng Yên, được thiết kế dành cho gia đình chị Chinh – một công trình hội tụ sự sang trọng, tiện nghi và tối ưu không gian sống lẫn kinh doanh.
1. Thông tin công trình biệt thự tân cổ điển mái Thái tại Hưng Yên
Công năng:
- Tầng trệt: Không gian kinh doanh 26.5m2, Phòng bếp & ăn 15.5m2, WC 3.7m2
- Tầng lửng: Khu vực thông tầng, Phòng khách 19.5m2
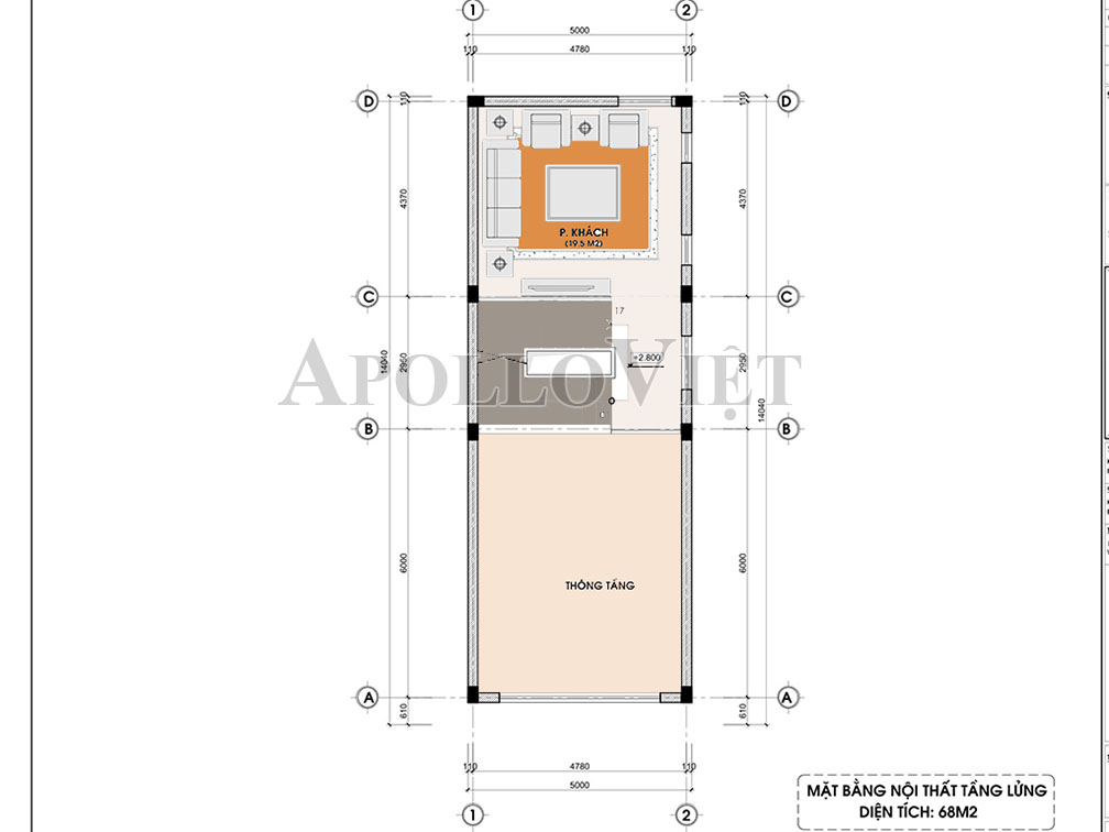
- Tầng 2: Phòng ngủ Master 19.5m2, 2 Phòng ngủ 9.5m2 và 7.5m2, WC 4.2m2
- Tầng 3: Phòng thờ 9.5m2, Phòng ngủ 11m2, Sân phơi 6.5m2, WC 3.9m2
Với lợi thế vị trí mặt phố tại Hưng Yên, mẫu biệt thự này vừa mang dáng dấp biệt thự tân cổ điển mặt phố sang trọng, vừa tối ưu không gian cho hoạt động kinh doanh.
2. Kiến trúc ngoại thất – Vẻ đẹp tinh tế của biệt thự tân cổ điển mái Thái
Ngay từ góc nhìn đầu tiên, mẫu biệt thự tân cổ điển mái Thái tại Hưng Yên đã tạo được ấn tượng mạnh nhờ hệ mái Thái thanh thoát – chi tiết kiến trúc đặc trưng của các biệt thự mái Thái mặt phố hiện đại. Kiểu mái này giúp tổng thể ngôi nhà trở nên cân đối, sang trọng và rất phù hợp với khu đô thị nhà phố tại Hưng Yên.
Mặc dù mặt tiền chỉ rộng 5m, các kiến trúc sư Apollo Việt đã khéo léo xử lý từng tỷ lệ để công trình vẫn nổi bật giữa dãy nhà phố. Những đường nét phào chỉ tân cổ điển được tiết chế gọn gàng, giúp mẫu nhà phố tân cổ điển mái Thái vừa giữ được vẻ đẹp kiêu sa, vừa phù hợp với mặt bằng hẹp – đúng tinh thần của các biệt thự tân cổ điển mặt phố.
Cửa chính sử dụng kính khung nhôm phong cách Rococo mang đến sự mềm mại đậm chất châu Âu – một ưu điểm thường thấy trong các mẫu biệt thự tân cổ điển Hưng Yên mà Apollo Việt đã thực hiện. Hệ cửa sổ kết hợp giữa kính vuông và kính Rococo giúp lấy sáng tự nhiên tối đa, mở rộng không gian theo chiều sâu thị giác, tăng sự thoáng đãng cho toàn bộ mặt tiền.
Ban công sắt nghệ thuật màu đen tuyền với họa tiết thanh thoát là chi tiết hoàn thiện quan trọng của biệt thự 3 tầng 1 tum mái Thái. Thiết kế lan can này vừa tôn lên vẻ sang trọng, vừa làm rõ phong cách tân cổ điển nhưng không bị nặng nề – rất phù hợp với kiểu nhà phố có chiều ngang hẹp.
Nhờ sự kết hợp hài hòa giữa vật liệu – màu sắc – hình khối, ngoại thất của ngôi nhà tạo nên một tổng thể tinh tế đúng chuẩn biệt thự tân cổ điển mái Thái mặt phố. Đây là mẫu thiết kế vừa đẹp, vừa thực tế, đáp ứng trọn vẹn xu hướng xây dựng biệt thự mái Thái tân cổ điển tại Hưng Yên trong những năm gần đây.
3. Công năng từng tầng – Tối ưu hóa cho gia đình + kinh doanh
Bên cạnh vẻ đẹp ngoại thất, công năng bên trong của căn biệt thự được bố trí cực kỳ khoa học, khai thác hiệu quả từng mét vuông diện tích nhà phố.
- Tầng trệt: Không gian kinh doanh 26.5m2, Phòng bếp & ăn 15.5m2, WC 3.7m2
- Tầng lửng: Khu vực thông tầng, Phòng khách 19.5m2
- Tầng 2: Phòng ngủ Master 19.5m2, 2 Phòng ngủ 9.5m2 và 7.5m2, WC 4.2m2
- Tầng 3: Phòng thờ 9.5m2, Phòng ngủ 11m2, Sân phơi 6.5m2, WC 3.9m2
Nhờ cách bố trí này, ngôi nhà không chỉ đáp ứng đầy đủ công năng sinh hoạt mà còn tối ưu cho mục đích kinh doanh – điều mà rất nhiều chủ đầu tư nhà phố mong muốn.
Mẫu biệt thự tân cổ điển mái Thái 3 tầng 1 tum mặt phố tại Hưng Yên là sự kết hợp hài hòa giữa vẻ đẹp sang trọng và công năng tiện nghi. Thiết kế ngoại thất tinh tế, hệ mái Thái bề thế cùng mặt tiền nhà phố nổi bật giúp công trình trở thành điểm nhấn tại khu vực. Công năng được bố trí khoa học, đáp ứng đồng thời nhu cầu ở và kinh doanh – đúng chất của một biệt thự tân cổ điển nhà phố hiện đại. Với kinh nghiệm thiết kế – thi công biệt thự tân cổ điển đẹp, Apollo Việt cam kết mang đến giải pháp tối ưu chi phí, phù hợp mọi lô đất tại Hưng Yên. Đây là lựa chọn lý tưởng cho gia chủ yêu thích phong cách tân cổ điển nhưng vẫn muốn sự hiện đại trong không gian sống.

















