Biệt thự tân cổ điển không còn xa lạ với người dân Việt Nam nói chung và các chủ đầu tư sinh sống tại tỉnh Bắc Giang nói riêng. Hôm nay mời Quý vị cùng Apollo Việt chiêm ngưỡng không gian sống của gia đình anh Tạ Đức Vạn trên mảnh đất Việt Yên mã BT18012.
Với mặt tiền chỉ 6,5m và diện tích xây dựng 64m2 thì đội ngũ kiến trúc sư của Apollo Việt đã sử lí tài tình ra sao để tạo nên 1 công trình cân đối về tỉ lệ, hài hòa về màu sắc và tổng thể công trình, hãy cùng chiêm ngưỡng và cảm nhận!
Biệt thự tân cổ điển được kiến tạo với hoa văn tinh xảo kết hợp hình khối tỷ lệ bắt mắt mang đến 1 công trình hoàn mỹ cho gia đình gia chủ. Kết hợp gam màu nâu làm nổi bật hệ sảnh chính với tổng thể công trình.
Toàn bộ không gian phòng khách được ốp trần gỗ đồng màu với hệ cửa và tủ của Biệt thự tân cổ điển 3 tầng mang đến vẻ đẹp sang trọng, cuốn hút. Điểm thêm nét đẹp cho công trình bởi bộ salon gam trắng tinh tế tạo điểm nhấn mang đến không gian tiếp khách đẳng cấp, khoa học .
Phòng bếp ngăn nắp được trang trí thêm đèn chùm mang đến không gian ấm cúng mỗi bữa cơm gia đình quây quần bên nhau.
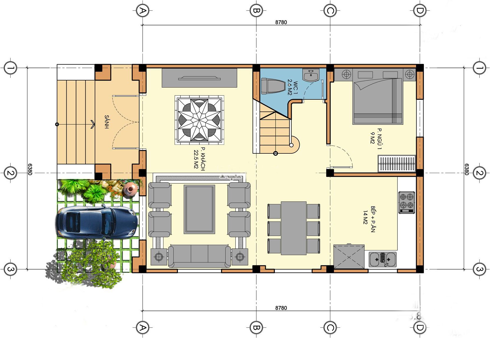
Thông tin công trình mẫu biệt thự BT18012
- Tầng 1: 1 phòng khách, 1 phòng bếp, phòng ngủ, 1wc chung kết hợp tại khu thang
- Tầng 2: 1 phòng ngủ lớn khép kín cho bố mẹ, 2 phòng ngủ nhỏ cho các con và 1 vệ sinh chung.
- Tầng 3: phòng sinh hoạt chung, phòng tắm có chức năng sục, xông hơi, sân phơi và khu tập thể dục.
- Mái trang trí và chống nóng bằng mái tôn.
Công năng bố trí khoa học, đảm bảo phong thủy được phân bổ đều cho 3 tầng kết hợp hệ cửa, ban công lấy sáng và gió cùng view ngắm cảnh tuyệt đối cho công trình.
Các chi tiết hoa văn, phào chỉ được trau chuốt một cách tinh tế Kết hợp hệ ban công sơn mạ vàng làm công trình càng thêm nổi bật và cuốn hút!
Tổng thể công trình được tính toán bố trí hài hòa, hệ mái kết hợp làm sân chơi thoáng đãng và đảm bảo an toàn.
Ngoài các ảnh phối cảnh, hồ sơ thi công bao gồm bản vẽ kỹ thuật mặt bằng, mặt đứng, mặt cắt các tầng , các bản vẽ chi tiết liên quan, các bản vẽ thiết kế kết cấu móng, dầm, sàn... và các bản vẽ thiết kế điện nước, chiếu sáng....
Công trình được thiết kế theo phong thủy của chủ đầu tư
Apollo Việt với đội ngũ kiến trúc sư giàu kinh nghiệm, năng động, cam kết tạo ra cho quý khách hàng những sản phẩm đẹp với chất lượng tốt nhất
Hãy liên hệ với chúng tôi để được nghe tư vấn trực tiếp bởi các kiến trúc sư !

















