Lâu đài Tân cổ điển vẫn luôn được biết đến là mẫu nhà quý tộc bởi sự nguy nga, đẳng cấp vô cùng sang trọng. Với diện tích đất ngày càng eo hẹp, đặc biệt tại các thành phố lớn thì rất khó để xây dựng những mẫu lâu đài 3 tầng 1 tum bề thế này.
Bằng kinh nghiệm dày dặn và sự sáng tạo, đổi mới không ngừng, Apollo Việt đã thiết kế một tòa lâu đài hoành tráng tại con đường huyết mạch đắt giá tại Hà Nội. Hãy cùng khám phá thiết kế ấn tượng này ngay dưới đây nhé!
1. Thông tin dự án Lâu đài tân cổ điển BT24127
- Tầng 1: Phòng khách 31.5m2, Phòng bếp & ăn 32.5m2, WC ngoài 4m2
- Tầng 2: Phòng SHC 21.5m2, Phòng ngủ Master 29.5m2, 2 Phòng ngủ 13.5m2 và 13m2, WC 4m2
- Tầng 3: Phòng SHC 20m2, 2 Phòng ngủ Master 29.5m2 và 31m2
- Tầng tum: Phòng giặt phơi 16.5m2, Phòng thờ 13m2, Phòng thể dục 21.5m2, Phòng làm việc 14m2, Phòng kho 11.5m2, WC 4m2
2. Apollo Việt - Sự lựa chọn hoàn hảo Thiết kế lâu đài tân cổ điển
Là một doanh nhân thành đạt, anh Nam sinh ra và lớn lên tại Hà Nội. Anh luôn muốn xây một ngôi nhà lớn tại thủ đô nên sau nhiều năm cố gắng, anh đã có thể thực hiện được mong muốn của mình.
Sau khi cân nhắc và tham khảo nhiều đơn vị khác nhau, anh Nam đã quyết định lựa chọn Apollo Việt để gửi gắm công trình tâm huyết này. Sau khi khảo sát thực trạng khuôn viên đất, đội ngũ KTS đã phải họp và cân nhắc rất nhiều yếu tố để có thể đáp ứng yêu cầu đẳng cấp, hoành tráng và tiện nghi. Cuối cùng, Apollo Việt và chủ đầu tư cũng đã chốt được phương án thiết kế hoàn hảo nhất, đáp ứng được mọi yêu cầu của chủ đầu tư.
3. Lâu đài tân cổ điển 3 tầng - bề thế, hoành tráng
Nằm ngay trên tuyến đường Trường Chinh đắt giá, tòa lâu đài như một lời khẳng định về sự đẳng cấp của chủ đầu tư.
Nằm ngay giữa lòng Hà Nội nên ngôi nhà sở hữu diện tích xây dựng khoảng 120m2/sàn, khu vực còn lại được tận dụng để làm sân vườn, gara và tiểu cảnh.
Mặc dù diện tích không quá lớn so với các công trình Apollo Việt đã triển khai nhưng để sở hữu một công trình với quy mô như vậy tại trung tâm thủ đô thì lại vô cùng đắt giá.
Điểm đặc biệt của tòa lâu đài này đó chính là được ghép từ 5 lô đất khác nhau nên có một thế đất khó. Điều này cũng đặt ra một bài toán cho các KTS để làm sao có thể tối ưu không gian một cách tối đa mà vẫn đảm bảo về thẩm mỹ cho căn biệt thự.
Quan sát từ bên ngoài, quý vị có thể thấy thiết kế lâu đài tân cổ điển vô cùng vuông vắn và bề thế, khiến chúng ta không thể cảm nhận được các góc lệch của ngôi nhà. Điều này cũng cho thấy sự tài tình của các KTS.
Bao quanh ngôi nhà là hệ thống tường rào kết hợp giữa các trụ cột bê tông vững chắc kết hợp cùng sắt mỹ thuật đen tuyền tạo sự nhẹ nhàng, thông thoáng nhưng vững chắc.
Cấu trúc sảnh chính đăng đối với hệ thống 2 cặp trụ cột tròn thông tầng hết sức ấn tượng. Các hệ trụ cột đều được lấy cảm ứng từ thức cột Hy Lạp cổ đại đặc trưng. Các đường sọc thẳng chạy dọc thân cột kết hợp cùng những cuộn xoắn ốc trên đỉnh cột tạo sự bề thế và vô cùng diễm lệ cho khu vực tiền sảnh.
Cửa chính sử dụng gỗ gõ đỏ Pachy cao cấp hoành tráng đầy uy quyền. Liên thông lên tầng 2 là hệ cửa vòm bằng kính tinh tế và quý phái.
Hệ thống phào chỉ tinh xảo, cùng những họa tiết hoa văn độc đáo trải dài khắp các bức tường, đã kiến tạo nên một diện mạo quý phái, kiêu kỳ cho tòa lâu đài. Mỗi đường nét hoa văn, từ những mặt ngọc lấp lánh, những dây hoa uyển chuyển, hình ảnh thiên thần thanh cao cho đến những chiếc vương miện quyền quý, đều được các kiến trúc sư Apollo Việt tỉ mỉ thiết kế và sắp đặt. Những chi tiết trang trí này không chỉ là điểm nhấn thẩm mỹ mà còn là một tác phẩm nghệ thuật, góp phần tôn vinh vẻ đẹp sang trọng, đẳng cấp của toàn bộ công trình.
Toàn bộ hệ của sổ và cửa ban công đều sử dụng chất liệu kính cường lực 2 lớp cao cấp khung nhôm PMA. Thiết kế này vừa giúp kiến trúc ngôi nhà hiện đại hơn, vừa mang ánh sáng tự nhiên tràn ngập từng ngóc ngách.
Lan can cũng được sử dụng hệ lan can bằng sắt mỹ thuật màu đen tuyền vô cùng nổi bật trên nền tường trắng.
Vẫn là hệ mái Mansard quen thuộc nhưng quý vị có thể thấy một lối kiến trúc vô cùng mới lạ. Hệ mái Mansard được thiết kế bao xung quanh, chính giữa là mái chóp 2 tầng bề thế. Chính sự khác biệt này đã khiến tòa lâu đài có nét đẹp riêng, tạo được sự khác biệt độc đáo cho mẫu lâu đài 3 tầng 1 tum.
Thiết kế chóp cũng được sử dụng cho chòi nghỉ thưởng trà tại khu vực sân vườn. Nhưng khác với hệ chóp xanh đen vốn có, chóp chòi thưởng trà lại như một nét chấm phá độc lạ cho toàn bộ phối cảnh.
Khu vực cổng chính vào tiền sảnh và sảnh phụ vào khu vực để xe cũng được thiết kế thông minh, tận dụng được những khoảng thừa, thiếu của lô đất để tính toán hợp lý, mang đến một không gian sống vô cùng khoa học.
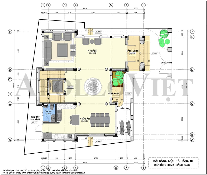
4. Công năng của lâu đài 3 tầng khoa học và tiện nghi
Bên cạnh ngoại thất hoành tráng, công năng cũng luôn được các KTS Apollo Việt chú trọng vì đây là không gian nghỉ ngơi, thư giãn chính cho các thành viên trong gia đình. Tất cả các không gian đều được tính toán hợp lý, chuẩn về phong thủy, phù hợp về công năng như sau:
- Tầng 1: Phòng khách 31.5m2, Phòng bếp & ăn 32.5m2, WC ngoài 4m2
- Tầng 2: Phòng SHC 21.5m2, Phòng ngủ Master 29.5m2, 2 Phòng ngủ 13.5m2 và 13m2, WC 4m2
- Tầng 3: Phòng SHC 20m2, 2 Phòng ngủ Master 29.5m2 và 31m2
- Tầng tum: Phòng giặt phơi 16.5m2, Phòng thờ 13m2, Phòng thể dục 21.5m2, Phòng làm việc 14m2, Phòng kho 11.5m2, WC 4m2
Từ sảnh chính bước vào, quý vị sẽ thấy khu vực tiền sảnh rộng rãi. Một tấm bình phong chắn ngay trước sảnh thang để vừa đảm bảo yếu tố về công năng, vừa chuẩn phong thủy.
Bên phải là phòng khách rộng 31.5m2 và bên trái là khu vực phòng bếp & ăn rộng 32.5m2. Không gian mở được tận dụng tối ưu khi các KTS đã không bố trí tường ngăn cách giữa 2 khu vực, giúp không gian rộng và thoáng hơn rất nhiều.
Tầng 2 và tầng 3 được bố trí 5 phòng ngủ. Tất cả các phòng đều được bố trí hợp lý để giúp không gian nghỉ ngơi được thoải mái và thư giãn nhất.
Tầng tum cao nhất cũng được tận dụng và bố trí những phòng công năng hợp lý gồm Phòng thờ 13m2, Phòng làm việc 14m2, Phòng thể dụng 21.5m2, Phòng giặt phơi 16.5m2, Phòng kho 11.5m2 và WC. Với các thiết kế lâu đài tân cổ điển với hệ mái Mansard, chủ đầu tư có thể bố trí 1 tầng tum với đầy đủ công năng và tiện ích như 1 tầng thường. Điều này vừa mang đến kiến trúc bắt mắt, sang trọng, vừa tối ưu công năng và diện tích sử dụng.
4. Nội thất biệt thự lâu đài phong cách tân cổ điển
Không gian nội thất tân cổ điển mang đẳng cấp hoàng gia cũng được thiết kế vô cùng tinh xảo .
Nổi bật giữa căn phòng khách là bộ sofa cao cấp được Apollo Việt thiết kế và sản xuất đồ nội thất, lấy tông màu be của da tự nhiên nhập khẩu Ý cao cấp, kết hợp với màu đỏ của gỗ tự nhiên gõ Pachy tạo nên sự sang trọng, lịch lãm.
Tone màu chính là màu vàng của gỗ tự nhiên, của hệ rèm cửa, nhằm tạo nên sự ấm cúng, hoàng gia rất lịch lãm. Đặc biệt nghệ nhân khéo léo điểm xuyến các chi tiết dát vàng tạo điểm nhấn và đồng thời tạo sự đẳng cấp cho nội thất biệt thự lâu đài đẹp.
Xin mời quý vị cùng tham khảo 1 số Không gian nội thất điển hình trong căn biệt thự lâu đài đẹp
Ngoài ra, lâu đài được trang bị đầy đủ các hệ thống tiện nghi như điện thông minh, camera an ninh, âm thanh, điều hòa không khí,... mang đến cuộc sống tiện nghi và sang trọng cho gia chủ.
Tóm lại, lâu đài phong cách tân cổ điển châu Âu là biểu tượng của sự sang trọng, tinh tế và nghệ thuật. Với thiết kế ngoại thất ấn tượng và nội thất xa hoa, đây là một lựa chọn lý tưởng cho những ai muốn tận hưởng cuộc sống thượng lưu.




















