Cập nhật tiến độ thi công Biệt thự tân cổ điển 2 tầng 1tum tại Tiền Hải, Thái Bình. Công trình là niềm tự hào và cũng là nơi nghỉ dưỡng, hưởng thụ cuộc sống của vợ chồng chú Thành và cả gia đình.
1. Thông tin công trình Biệt thự tân cổ điển
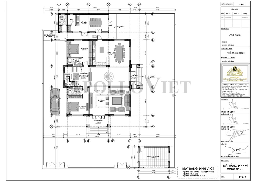
Tầng 1: Phòng khách 39m2, Bếp ăn 32m2, 2 phòng ngủ khép kín 20.7m2 và 22.6m2, bếp ăn phụ 17.4m2, Kho 3m2 và WC chung 3m2.
Tầng 2: Phòng Sinh hoạt tổng hợp 39m2, 3 phòng ngủ khép kín 20.7m2, 22.6m2 và 31.3m2.
Tầng tum: Phòng thờ 18m2, Phòng thể dục, Sân phơi, Phòng chức năng và WC chung.
2. Cập nhật tiến độ thi công Biệt thự 2 tầng phong cách châu Âu
Từ giai đoạn thiết kế đến xuyên suốt quá trình thi công, chú Thành đều tôn trọng và tuân thủ các quy trình và sự tham vấn của đội ngũ Kiến trúc sư, kĩ sư Apollo Việt nhằm tạo nên công trình hoàn hảo như ý.
Qúa trình thi công, chúng tôi đã áp dụng quy trình kiểm tra giám sát thi công chặt chẽ, nghiêm ngặt tại cả hiện trường và tại trụ sở công ty, cùng với đội ngũ KTS, KS chuyên môn cao, nhiều kinh nghiệm nhằm tạo nên công trình đẹp, chất lượng hàng đầu Việt Nam.
Toàn bộ quy trình thi công được giám sát chặt chẽ và kiểm sát chất lượng tỉ mỉ, nhằm tạo nên giá trị bền vững và thẩm mỹ cao cho công trình.
Mặc dù công trình đang trong quá trình hoàn thiện nhưng quý vị có thể thấy căn biệt thự Tân cổ điển 2 tầng 1 tum vô cùng hoành tráng và bề thế, xứng đáng là niềm tự hào của cô chú về mái ấm hoàn hảo của gia đình.
3. Phối cảnh Biệt thự đẹp khi hoàn thiện
Ngôi biệt thự khoác lên mình sắc trắng tinh khôi, với tone màu trắng mang lại sự sang trọng, trang nhã đồng thời có khả năng bắt sáng tốt giúp căn nhà nổi bật giữa không gian sống xung quanh.
Hệ mái Mansard màu đen của đá slate Lai Châu đặc trưng của kiến trúc tân cổ điển. Phần cổ mái tương đối cao tạo chiều cao ấn tượng được bố trí rất nhiều hệ cửa sổ xung quanh theo phong cách Rococo với hệ mái vòm uyển chuyển nhẹ nhàng, góp phần thể hiện phong cách tân cổ điển cho ngôi biệt thự.
Toàn bộ hệ thống cửa sổ của căn nhà sử dụng chất liệu kính dán an toàn 2 lớp khung nhôm PMI cao cấp. Với chất liệu kính có khả năng bắt sáng tốt, đồng thời còn giúp kết nối không gian bên trong và không gian bên ngoài, tạo sự thoải mái cho các thành viên khi ngắm cảnh.
4. Bố trí công năng Biệt thự 2 tầng 1 tum khoa học và hợp phong thủy
Bên cạnh kiến trúc độc đáo cuốn hút phần bố trí công năng cũng được tính toán tỉ mỉ, khoa học:
- Tầng 1: Phòng khách 39m2, Bếp ăn 32m2, 2 phòng ngủ khép kín 20.7m2 và 22.6m2, bếp ăn phụ 17.4m2, Kho 3m2 và WC chung 3m2.
- Tầng 2: Phòng Sinh hoạt tổng hợp 39m2, 3 phòng ngủ khép kín 20.7m2, 22.6m2 và 31.3m2.
- Tầng tum: Phòng thờ 18m2, Phòng thể dục, Sân phơi, Phòng chức năng và WC chung.
Hồ sơ gồm 289 trang với 3 hạng mục chính Kiến trúc, Kết cấu và Điện nước vô cùng đầy đủ, chi tiết và được bố trí vô cùng khoa học dễ đọc, dễ hiểu.
Để tìm hiểu sâu hơn về bộ hồ sơ thiết kế cũng như được tư vấn miễn phí, quý vị liên hệ Hotline 0962 368 892 hoặc 03345 111 35.
Apollo Việt cung cấp giải pháp Thiết kế thi công trọn gói nhằm mang đến không gian hoàn mỹ, sang trọng cho mọi gia đình Việt.




















