Chiêm ngưỡng biệt thự mái Nhật 2 tầng tại Ninh Bình, ta như lạc vào một không gian sống vừa hiện đại, vừa đậm chất Á Đông. Với thiết kế mái Nhật độc đáo, ngôi nhà không chỉ là nơi an cư lý tưởng mà còn là tác phẩm kiến trúc nghệ thuật, ghi dấu ấn riêng giữa đất trời Cố đô Ninh Bình.
Hãy cùng Apollo Việt tìm hiểu Thiết kế Biệt thự mái nhật 2 tầng được thiết kế dành cho gia đình Anh Độ tại Ninh Bình.
1. Thông tin dự án Biệt thự nhà vườn mái Nhật 2 tầng
- Tầng 1: Phòng khách 35,5m2, Phòng bếp ăn 28m2, Phòng ngủ 01 15,5m2, Phòng ngủ 02 11,5m2
- Khu bếp phụ tầng 1: Bếp phụ 12,7 m2, Phòng Wc 01 3 m2, Phòng Wc 02 3,5 m2.
- Tầng 2: Phòng ngủ 03 36,5m2, Phòng ngủ 04 11,5 m2, Phòng ngủ 05 20,5m2, Phòng sinh hoạt chung 24m2, Sân phơi 18m2, Phòng Wc 03 6,5 m2, Phòng Wc 04 3 m2, Phòng Wc 05 3,5 m2.
2. Kiến trúc biệt thự nhà vườn 2 tầng mái Nhật BT24128
Nhờ lời giới thiệu của những khách hàng đã từng trải nghiệm dịch vụ của Apollo Việt, anh Độ đã biết đến chúng tôi. Sự hài lòng của khách hàng về chất lượng công trình và sự chuyên nghiệp của đội ngũ kiến trúc sư đã giúp anh hoàn toàn yên tâm khi lựa chọn Apollo Việt là đơn vị đồng hành thực hiện mong muốn xây dựng một tổ ấm hiện đại và ấm cúng cho gia đình.
Sau quá trình khảo sát kỹ lưỡng và lắng nghe ý kiến của gia chủ, các KTS đã lên phương án thiết kế chi tiết kết hợp hài hòa giữa nét đẹp tinh tế của kiến trúc Tân cổ điển và nét đẹp truyền thống của kiến trúc mái Nhật.
Sở hữu một khu đất rộng rãi Anh Độ mong muốn sở hữu một biệt thự nhà vườn mái Nhật vừa mang vẻ đẹp hiện đại, sang trọng, vừa tạo cảm giác ấm cúng, gần gũi với thiên nhiên.
Ngôi nhà mang phong cách kiến trúc tân cổ điển nhẹ nhàng, kết hợp hài hòa giữa nét đẹp truyền thống và hiện đại. Dưới đây là một số đặc điểm nổi bật của không gian ngoại thất.
Thiết kế ngoại thất gây ấn tượng bởi hệ thống cột trụ được thiết kế theo phong cách tân cổ điển, tại nên vẻ đẹp thu hút và bề thế cho ngôi nhà. Với vòm cong mềm mại được thiết kế tỉ mỉ trong sảnh chính, không chỉ là điểm nhấn kiến trúc mà còn tạo cảm giác chào đón ấm cúng ngay từ những bước chân đầu tiên vào ngôi nhà.
Cửa chính gỗ tự nhiên màu nâu đỏ tạo điểm nhấn ấn tượng, kết hợp với các ô kính tạo cảm giác thông thoáng để lấy sáng cho ngôi nhà.
Hệ ban công tầng 2 và ban công cửa sổ được thiết kế cầu kỳ với lan can sắt mỹ thuật tinh xảo không chỉ là điểm nhấn kiến trúc mà còn tạo nên một không gian thư thái, mời gọi gia chủ tận hưởng những khoảnh khắc yên bình bên tách trà và cuốn sách.
Gia đình anh Độ là tín đồ Công giáo,để tôn vinh đức tin và tạo điểm nhấn cho không gian sống, gia đình anh Độ mong muốn đặt một bức tượng Thánh Giuse bằng đá trắng ngay trước ban công tầng 2 của ngôi nhà.Bức tượng không chỉ là một vật trang trí mà còn mang ý nghĩa tâm linh sâu sắc.
Hệ mái của biệt thự được thiết kế theo phong cách kiến trúc của Nhật bản, với độ dốc nhẹ, phủ ngói màu xanh đen không chỉ tạo nên vẻ đẹp cổ kính và thanh lịch mà còn hài hòa với tổng thể kiến trúc của biệt thự, mang đến một không gian sống thư thái và yên bình. Hệ mái được kiến trúc sư Apollo Việt tính toán thiết kế đảm bảo khả năng thoát nước hiệu quả, bảo vệ ngôi nhà trước mọi điều kiện thời tiết.
Màu sắc của ngôi nhà sử dụng gam màu trắng chủ đạo kết hợp với màu nâu của cửa gỗ và điểm thêm màu xanh đen của mái nhà tạo nên 1 tổng thể hài hòa, ngôi nhà không chỉ là một công trình kiến trúc mà còn là một tác phẩm nghệ thuật, mang đến trải nghiệm thị giác độc đáo và tinh tế.
Sự kết hợp màu sắc này càng trở nên nổi bật khi được tô điểm bởi những khung cửa sổ kính lớn, đón ánh sáng tự nhiên tràn ngập vào không gian sống.
Không gian xung quanh sân vườn được thiết kế nhẹ nhàng với những hàng cây xanh quanh nhà, tạo khoảng sân thoáng đãng và xanh mát. Hệ thống cổng, tường rào xây tường kết hợp hệ nhôm đúc nghệ thuật được thiết kế đồng bộ với kiến trúc của ngôi nhà tạo nên 1 tổng thể kiến trúc hoàn chỉnh.
Kiến trúc sư Apollo Việt đã thổi hồn vào không gian ngoại thất của biệt thự nhà vườn 2 tầng mái nhật vẻ đẹp sang trọng, tinh tế. Mỗi chi tiết, từ đường nét hoa văn đến cách bố trí tiểu cảnh, đều được chăm chút tỉ mỉ, thể hiện rõ gu thẩm mỹ và đẳng cấp của gia chủ.
Biệt thự 2 tầng mái nhật đảm bảo công năng sử dụng khoa học phù hợp với thói quen sử dụng của gia đình.
Tại buổi khảo sát hiện trạng đất và gặp gỡ trao đổi với Apollo Việt, Anh Độ đã chia sẻ rất cụ thể những mong muốn của gia đình với kiến trúc sư. Với sự tin tưởng vào chuyên môn của kiến trúc sư, anh đã trình bày chi tiết về nhu cầu sử dụng nhiều phòng ngủ để đáp ứng số lượng thành viên trong gia đình. Ngoài ra, anh cũng đề xuất ý tưởng về một khu bếp phụ riêng biệt phía sau tầng một, phù hợp với thói quen sinh hoạt lâu năm của gia đình.
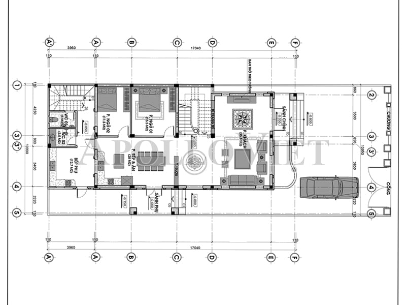
3. Mặt bằng công năng của mẫu biệt thự vườn mái nhật
- Tầng 1: Phòng khách 35,5m2, Phòng bếp ăn 28m2, Phòng ngủ 01 15,5m2, Phòng ngủ 02 11,5m2.
Khu bếp phụ tầng 1: Bếp phụ 12,7 m2, Phòng Wc 01 3 m2, Phòng Wc 02 3,5 m2.
- Tầng 2: Phòng ngủ 03 36,5m2, Phòng ngủ 04 11,5 m2, Phòng ngủ 05 20,5m2, Phòng sinh hoạt chung 24m2, Sân phơi 18m2, Phòng Wc 03 6,5 m2, Phòng Wc 04 3 m2, Phòng Wc 05 3,5 m2.
Bước vào căn nhà, ta như lạc vào một không gian sống vô cùng đẳng cấp với phòng khách rộng 35,5m2, bộ sofa lớn đặt tại trung tâm phòng, kết hợp cùng tủ trang trí sang trọng, tạo nên một không gian tiếp khách hoàn hảo, độc đáo và đầy ấn tượng. Tiếp nối không gian phòng khách, sảnh chờ rộng rãi và cầu thang bộ thoáng đãng tạo nên một hành lang giao thông thuận tiện. Bên trong, căn bếp ăn chính được thiết kế rộng rãi, cùng với tủ rượu sang trọng, tạo nên không gian sinh hoạt ấm cúng và tiện nghi.
Để tạo sự thuận tiện cho việc sinh hoạt hàng ngày, gia đình bố trí một sảnh phụ bên hông nhà. Cửa sảnh phụ này sẽ là lối đi lý tưởng cho các thành viên khi đi chợ về, giúp bảo đảm sự riêng tư và ngăn cách với không gian chính của ngôi nhà. Ở tầng một, 2 phòng ngủ với diện tích vừa phải sẽ được bố trí để đáp ứng nhu cầu nghỉ ngơi của các thành viên.
Để đáp ứng phù hợp thói quen sinh hoạt lâu năm của gia đình, anh Độ đã yêu cầu bố trí một khu bếp phụ tách biệt với khu vực chính của ngôi nhà. Việc tách riêng bếp phụ sẽ giúp tránh mùi dầu mỡ,mùi thức ăn ảnh hướng đến các không gian khác. Ngoài ra, một nhà vệ sinh và phòng tắm riêng biệt cũng được bố trí tại khu vực này, tạo điều kiện thuận lợi cho việc nấu nướng và vệ sinh cá nhân.
Tầng 2 được thiết kế với không gian sống tiện nghi và riêng tư. Phòng ngủ lớn rộng rãi, thoáng mát dành cho gia chủ, đảm bảo giấc ngủ sâu sau những giờ làm việc vất vả. Phòng sinh hoạt chung là nơi lý tưởng để cả gia đình quây quần xem phim, tiếp khách riêng hoặc thư giãn. 02 phòng ngủ con có diện tích vừa phải, tạo không gian riêng tư cho các bé. Hệ thống nhà vệ sinh được bố trí hợp lý, đáp ứng đầy đủ nhu cầu sinh hoạt của các thành viên. Sân phơi rộng rãi, thoáng mát, thuận tiện cho việc giặt giũ.
Với thiết kế khoa học, biệt thự 2 tầng mái Nhật của gia đình anh Độ đã đáp ứng hoàn hảo mọi nhu cầu sử dụng. Sự tỉ mỉ trong từng chi tiết của Apollo Việt đã mang đến một không gian sống lý tưởng, khiến gia đình anh vô cùng hài lòng.
Nếu quý vị cũng mong muốn sở hữu một ngôi nhà đẹp, tiện nghi và thẩm mỹ sang trọng, hãy liên hệ ngay với Apollo Việt qua số hotline: 0962 368 892 - 0865 799 688 - 0385.688.228 để được tư vấn chi tiết nhé!
















