Biệt thự mái Nhật là một trong những phong cách kiến trúc được ưa chuộng tại Việt Nam từ trước đến nay. Xuất phát từ Nhật Bản, kiểu biệt thự này mang đến sự kết hợp hài hòa giữa tính thẩm mỹ, công năng sử dụng và sự tối giản tinh tế.
Với thiết kế đậm chất Á Đông và công năng phù hợp với những gia đình nhỏ, đây vẫn là mẫu biệt thự đẹp được rất nhiều chủ đầu tư yêu thích và lựa chọn cho ngôi nhà của mình.
1. Thông tin dự án Biệt thự mái Nhật 2 tầng
- Tầng 1: Phòng khách 40.5m2, Phòng bếp & ăn 22.5m2, Phòng ngủ 15.5m2, WC 4.7m2, WC ngoài 3.6m2
- Tầng 2: Phòng SHC 23.5m2, Phòng ngủ 22.5m2, 21m2 & 16m2, Phòng thờ 17m2, WC 5m2
2. Chiêm ngưỡng Biệt thự vườn Mái Nhật thanh lịch
Biệt thự mái Nhật 2 tầng tại Hà Nam mang đến vẻ đẹp hài hòa giữa kiến trúc truyền thống Nhật Bản và phong cách hiện đại tinh tế. Ngôi biệt thự nổi bật với thiết kế mái Nhật có độ dốc nhẹ, tạo sự thanh thoát và mềm mại, đồng thời giúp thoát nước nhanh, phù hợp với điều kiện thời tiết Việt Nam.
Mặt tiền rộng 8.72m được thiết kế ấn tượng với hình khối vuông vức nhưng vẫn tạo cảm giác nhẹ nhàng nhờ các chi tiết trang trí tối giản. Kiến trúc sư đã đã bố trí kiến trúc theo lối sảnh lệch với sảnh chính ở bên trái đua ra tạo sự bề thế, ấn tượng ngay từ cái nhìn đầu tiên.
Tông màu chủ đạo là trắng và xanh đen, kết hợp với hệ thống cửa kính lớn giúp tối đa hóa ánh sáng tự nhiên, tạo sự thoáng đãng cho toàn bộ không gian.
Ban công mặc dù được thiết kế khá truyền thống, tuy nhiên cũng đã được điểm xuyết với chi tiết lan can bằng nhôm đúc mạ vàng vô cùng sang trọng.
Phần mái được thiết kế với độ dốc vừa phải, không chỉ mang tính thẩm mỹ cao mà còn giúp chống nóng hiệu quả vào mùa hè. Hệ mái Nhật có các lớp xếp chồng lên nhau, tạo nên một vẻ đẹp cân đối và bề thế cho công trình. Đặc biệt, chất liệu ngói cao cấp giúp tăng tuổi thọ của mái nhà, giữ cho công trình luôn bền đẹp theo thời gian.
Bậc tam cấp 5 bậc được thiết kế cao ráo, vừa tạo sự bề thế, vừa tuân thủ các yếu tố phong thủy, mang lại sự thịnh vượng cho gia chủ. Cột trụ vuông vững chãi kết hợp với hệ đèn treo tường giúp mặt tiền thêm phần sang trọng và thu hút ánh nhìn.
Không gian sân vườn được bố trí hợp lý với cây xanh và tiểu cảnh giúp ngôi nhà luôn gần gũi với thiên nhiên. Lối đi lát đá tự nhiên kết hợp với các bồn cây xanh tạo nên một không gian thư giãn lý tưởng. Hệ thống ban công tầng 2 sử dụng lan can kính cường lực vừa đảm bảo an toàn vừa giúp mở rộng tầm nhìn, mang đến không gian sống hiện đại và thoải mái.
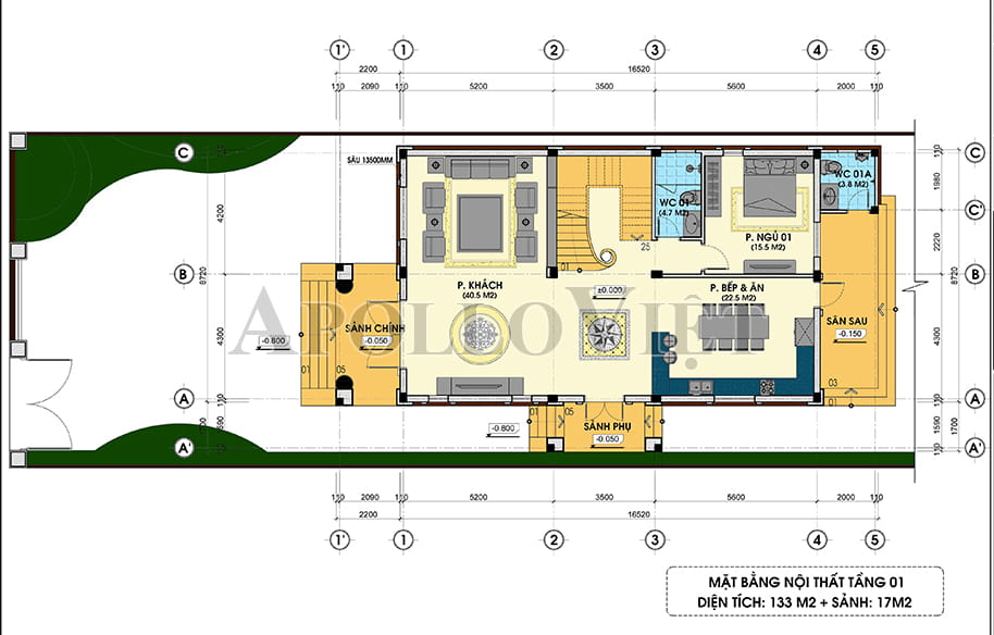
3. Mặt bằng công năng mẫu biệt thự 2 tầng mái nhật
Apollo Việt luôn chú trọng thiết kế công năng biệt thự một cách khoa học để đảm bảo sự tiện nghi và thông thoáng tối đa. Biệt thự mái Nhật 2 tầng này có cách bố trí không gian hợp lý, giúp tối ưu hóa diện tích sử dụng và tạo sự kết nối giữa các phòng như sau:
- Tầng 1: Phòng khách 40.5m2, Phòng bếp & ăn 22.5m2, Phòng ngủ 15.5m2, WC 4.7m2, WC ngoài 3.6m2
- Tầng 2: Phòng SHC 23.5m2, Phòng ngủ 22.5m2, 21m2 & 16m2, Phòng thờ 17m2, WC 5m2
Từ tiền sảnh bước vào là phòng khách rộng 40.5m2 là trung tâm của ngôi nhà, thiết kế mở, kết nối trực tiếp với khu vực bếp và phòng ăn, giúp gia chủ có không gian sinh hoạt chung rộng rãi và ấm cúng.
Khu vực bếp và ăn 22.5m2 được thiết kế hiện đại, hệ thống cửa kính lớn giúp không gian luôn tràn ngập ánh sáng tự nhiên và thông thoáng.
Phòng ngủ 15.5m2 nằm ở vị trí yên tĩnh, đảm bảo sự riêng tư cho gia chủ. Ngoài ra, tầng 1 còn có 2 WC tiện lợi, trong đó một WC bố trí ngoài trời để phục vụ nhu cầu sử dụng linh hoạt.
Tiếp đến, tầng 2 là không gian sinh hoạt riêng của các thành viên trong gia đình. Phòng sinh hoạt chung rộng 23.5m2 được thiết kế như một không gian thư giãn, nơi cả gia đình có thể trò chuyện, giải trí cùng nhau. Ba phòng ngủ với diện tích lần lượt là 22.5m2, 21m2 và 16m2, mỗi phòng đều có cửa sổ lớn để tận dụng ánh sáng và gió tự nhiên, tạo không gian nghỉ ngơi lý tưởng. Phòng thờ rộng 17m2 được bố trí ở vị trí trang trọng nhất của tầng 2, thể hiện sự tôn kính đối với tổ tiên.
Việc kết nối không gian trong biệt thự được thiết kế rất khéo léo. Hành lang rộng rãi, cửa sổ lớn giúp lưu thông không khí, tạo sự thoáng đãng trong toàn bộ ngôi nhà. Mỗi không gian đều được tối ưu để đảm bảo sự thoải mái cho gia chủ và các thành viên trong gia đình.
4. Apollo Việt – Đơn vị thiết kế và thi công uy tín
Với kinh nghiệm lâu năm trong lĩnh vực thiết kế và thi công biệt thự cao cấp, Apollo Việt cam kết mang đến cho khách hàng những công trình chất lượng, đáp ứng cả về thẩm mỹ và công năng sử dụng. Chúng tôi luôn đặt sự hài lòng của khách hàng lên hàng đầu, mang đến những không gian sống không chỉ đẹp mà còn chuẩn phong thủy, giúp gia chủ an cư lạc nghiệp.
Nếu quý khách đang tìm kiếm một mẫu biệt thự mái Nhật 2 tầng đẹp, tiện nghi và chuẩn phong thủy, hãy liên hệ ngay với Apollo Việt để được tư vấn chi tiết và nhận những phương án thiết kế tối ưu nhất!















