1. Biệt thự hiện đại tại Thái Bình – Dấu ấn kiến trúc sang trọng và tinh tế
Công năng:
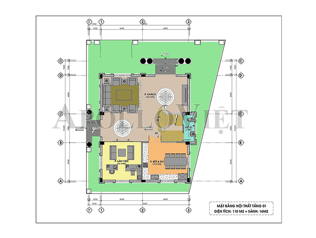
- Tầng 1: Phòng khách 33.5m2, Phòng bếp & ăn 18.5m2, Phòng làm việc 16.5m2, WC 3m2
- Tầng 2: Phòng SHC 27.5m2, Phòng ngủ Master 33.6m2 và 34.3m2
- Tầng 3: Phòng thờ 8.5m2, Phòng ngủ Master 33.6m2, Phòng ngủ 12m2, Sân chơi 15m2, WC 4.4m2
- Tầng tum: Phòng Karaoke 18m2, Phòng giặt & phơi 8.5m2, Phòng xông hơi
Công trình biệt thự hiện đại 3 tầng 1 tum tại Thái Bình của gia đình anh Biên là một trong những mẫu thiết kế tiêu biểu của Apollo Việt, thể hiện rõ tinh thần phóng khoáng và tinh tế của kiến trúc biệt thự hiện đại.
Ngôi nhà được xây dựng trên diện tích gần 520m², mặt tiền 9,32m và chiều sâu 11,22m, nổi bật với bố cục cân đối, hiện đại và tối ưu công năng cho cuộc sống tiện nghi của gia đình Việt.
Lấy cảm hứng từ phong cách hiện đại tối giản, biệt thự mang đến không gian sống mở, chan hòa ánh sáng tự nhiên, vừa sang trọng vừa gần gũi. Các kiến trúc sư đã khéo léo kết hợp đường nét hiện đại với chất Á Đông mềm mại, giúp tổng thể trở nên hài hòa, thanh thoát nhưng vẫn bề thế và mạnh mẽ.
2. Ngoại thất biệt thự hiện đại mái Nhật – Giao thoa giữa hiện đại và truyền thống
Điểm nhấn của biệt thự hiện đại mái Nhật 3 tầng nằm ở cách xử lý hình khối mạch lạc, mạnh mẽ và sang trọng. Hệ mái Nhật đổ bê tông dán ngói cao cấp vừa đảm bảo tính thẩm mỹ, vừa thích nghi tốt với khí hậu nhiệt đới ẩm của miền Bắc.
Toàn bộ mặt tiền sử dụng kính cường lực khung nhôm Xingfa, giúp không gian luôn tràn ngập ánh sáng và kết nối với thiên nhiên. Phần cổng và hàng rào ốp đá tự nhiên tạo sự vững chãi, đồng thời làm nổi bật gam màu trắng – xám – nâu gỗ thanh lịch của khối nhà chính.
Các ban công rộng thiết kế lệch tầng tạo nhịp điệu kiến trúc đẹp mắt, hỗ trợ thông gió, đón sáng tự nhiên. Sân vườn, tiểu cảnh và lối đi lát đá đồng bộ hoàn thiện tổng thể – mang đến vẻ đẹp hiện đại mà không mất đi sự ấm áp của một biệt thự hiện đại đẳng cấp.
3. Mặt bằng công năng – Khoa học và tiện nghi chuẩn biệt thự hiện đại 3 tầng
Không chỉ ấn tượng ở ngoại thất, công trình còn ghi điểm nhờ cách bố trí công năng thông minh, tối ưu từng không gian sống:
Tầng 1: Phòng khách 33,5m² liên thông phòng bếp & ăn 18,5m², tạo cảm giác mở rộng và kết nối; thêm phòng làm việc 16,5m² và WC chung 3m².
Tầng 2: Không gian sinh hoạt chung 27,5m² cùng hai phòng ngủ master (33,6m² – 34,3m²) thiết kế khép kín, tiện nghi như khu nghỉ dưỡng.
Tầng 3: Phòng thờ 8,5m², 2 phòng ngủ (33,6m² và 12m²) cùng sân chơi 15m² – không gian thư giãn lý tưởng.
Tầng tum: Gồm phòng karaoke, khu giặt phơi, phòng xông hơi, mang đến trải nghiệm sống hiện đại và trọn vẹn.
Tất cả không gian đều được Apollo Việt tính toán kỹ lưỡng về ánh sáng, thông gió và hướng di chuyển, đảm bảo sự tiện nghi – thoải mái – bền vững theo thời gian.
4. Biệt thự hiện đại đẳng cấp – Tinh tế trong từng chi tiết thiết kế
Từ ngoại thất đến nội thất, biệt thự 3 tầng hiện đại tại Thái Bình đều thể hiện phong cách sống sang trọng và tinh tế.
Sự phối hợp hoàn hảo giữa kính, đá, gỗ và kim loại giúp công trình vừa hiện đại, vừa bền bỉ. Tông trắng chủ đạo được điểm xuyết bằng màu xám và nâu gỗ mang lại cảm giác ấm áp, thanh lịch và đẳng cấp.
Dưới bàn tay của kiến trúc sư Apollo Việt, công trình không chỉ là ngôi nhà để ở mà còn là biểu tượng thẩm mỹ và phong cách sống hiện đại, phù hợp với gia đình trẻ yêu thích sự tiện nghi và phóng khoáng.
Mẫu biệt thự hiện đại tại Thái Bình của gia đình anh Biên là minh chứng rõ nét cho khả năng thiết kế sáng tạo và thi công chuẩn mực của Apollo Việt. Công trình hội tụ đủ các yếu tố: đẹp – bền – tiện nghi – đẳng cấp, khẳng định vị thế của dòng biệt thự hiện đại mái Nhật 3 tầng trong xu hướng kiến trúc nhà ở hiện nay.














