Apollo Việt hân hạnh giới thiệu tới quý vị mẫu biệt thự tân cổ điển 3 tầng 1 tum đẹp với diện tích gần 1000m² – một biểu tượng kiến trúc đầy uy nghi, kiêu hãnh giữa lòng Hà Nội. Đây là công trình hội tụ trọn vẹn tinh thần tân cổ điển sang trọng, được thể hiện qua tỷ lệ vàng chuẩn mực, sự đăng đối và những đường nét tinh tế không thể nhầm lẫn.
Công năng:
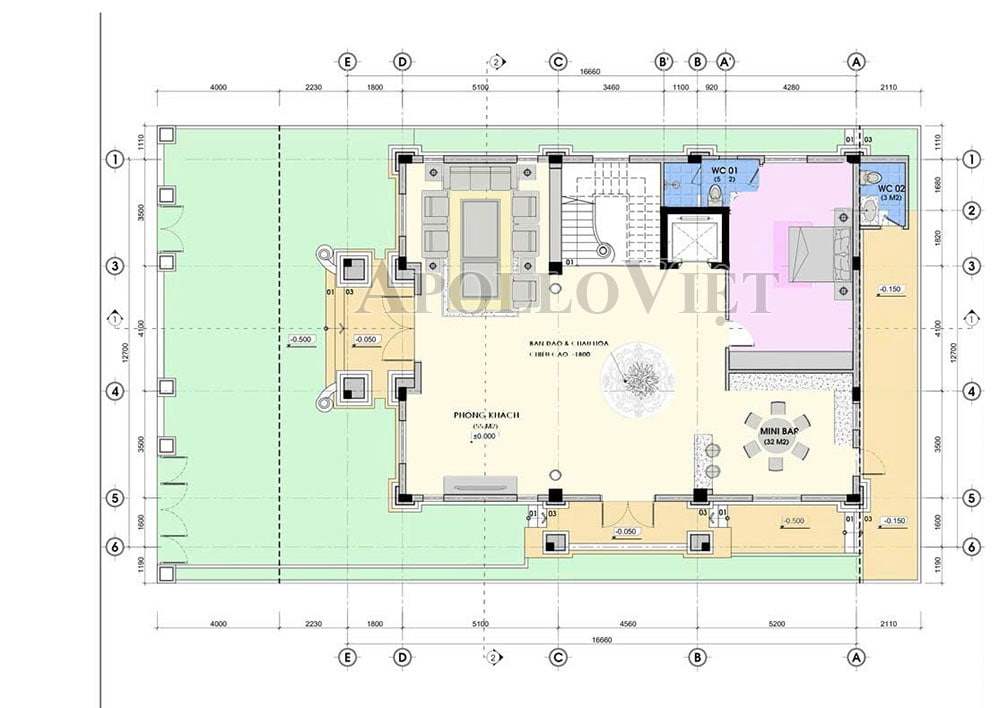
- Tầng 1: Phòng khách 55m2, Mini bar 32m2, Phòng ngủ 31m2
- Tầng 2: Thông tầng 50m2, Phòng SHC 32m2, 2 Phòng ngủ khép kín 28m2 và 29m2
- Tầng 3: Phòng SHC 32m2, Phòng ngủ Master 55m2, 2 Phòng ngủ khép kín 28m2 và 29m2
- Tầng tum: Phòng thờ 21m2, Phòng bếp & ăn 42m2, Phòng ngủ 15m2, Sân ướt 6.3m2, Giặt phơi 9.5m2, WC 4.7m2
1. Ngoại thất biệt thự tân cổ điển 3 tầng 1 tum: Bề thế – Tinh xảo – Đẳng cấp
1.1 Bố cục mặt tiền chuẩn mực
Sở hữu mặt tiền 12.7m và chiều sâu 16.66m, mẫu biệt thự 3 tầng 1 tum tân cổ điển của gia đình anh Tuấn dễ dàng thu hút ánh nhìn nhờ hình khối khỏe khoắn và bố cục đối xứng – một đặc trưng vàng của phong cách tân cổ điển.
1.2 Hệ sảnh chính – Tâm điểm của nghệ thuật kiến trúc
Điểm nhấn gây ấn tượng mạnh là hệ cột thông tầng cao lớn, chạy xuyên suốt mặt tiền.
Cột được ốp gỗ gõ đỏ tự nhiên tạo cảm giác sang trọng, kết hợp cùng kính hoa đồng nghệ thuật làm tăng chiều sâu ánh sáng và mang đến khí chất bề thế cho toàn bộ công trình.
1.3 Hệ cửa và mảng tường – Thông thoáng nhưng kiên cố
Toàn bộ biệt thự được bao phủ bởi hệ cửa sổ – cửa ban công khung nhôm đen bản lớn, giúp ngôi nhà luôn tràn ngập ánh sáng tự nhiên và mở rộng góc nhìn.
Các mảng tường vuông vức, chắc chắn, tạo nên sự bền vững mà nhiều mẫu biệt thự tân cổ điển 3 tầng đẹp hướng đến.
1.4 Ban công sắt mỹ thuật – Dấu ấn tinh tế
Ban công sắt nghệ thuật màu đen uốn cong nhịp nhàng là yếu tố tạo nên vẻ mềm mại, đậm chất châu Âu, nhưng vẫn tiết chế để không bị rối mắt – phù hợp xu hướng tân cổ điển hiện đại.
1.5 Mái Mansard – Biểu tượng quyền quý
Khối mái Mansard vuông vức được sử dụng như “vương miện” của công trình. Phào chỉ được xử lý tối giản để giữ nét sang trọng vừa phải, không phô trương, giúp biệt thự mang vẻ đẹp thanh lịch nhưng vẫn quyền uy – đúng tinh thần của biệt thự tân cổ điển 3 tầng 1 tum sang trọng.
1.6 Hàng rào – Cổng nhà
Hệ hàng rào bê tông kết hợp cổng nhôm nghệ thuật tạo nên lớp bảo vệ chắc chắn, đồng thời hoàn thiện vẻ ngoài uy nghi cho biệt thự. Đây là chi tiết không thể thiếu trong những biệt thự tân cổ điển diện tích lớn.
2. Công năng biệt thự tân cổ điển 3 tầng 1 tum: Rộng rãi – Khoa học – Tối ưu từng mét vuông
Bố trí công năng được KTS Apollo Việt tối ưu theo nhu cầu của gia đình 3 thế hệ, phù hợp công trình diện tích lớn gần 1000m².
- Tầng 1: Phòng khách 55m2, Mini bar 32m2, Phòng ngủ 31m2
- Tầng 2: Thông tầng 50m2, Phòng SHC 32m2, 2 Phòng ngủ khép kín 28m2 và 29m2
- Tầng 3: Phòng SHC 32m2, Phòng ngủ Master 55m2, 2 Phòng ngủ khép kín 28m2 và 29m2
- Tầng tum: Phòng thờ 21m2, Phòng bếp & ăn 42m2, Phòng ngủ 15m2, Sân ướt 6.3m2, Giặt phơi 9.5m2, WC 4.7m2
Không gian sinh hoạt – đón tiếp khách rộng mở, sang trọng, mang đúng tinh thần của một mẫu biệt thự tân cổ điển 3 tầng 1 tum đẳng cấp.
3. Kết luận – Mẫu biệt thự tân cổ điển 3 tầng 1 tum đáng sở hữu
Công trình của anh Tuấn là một trong những mẫu biệt thự tân cổ điển 3 tầng 1 tum đẹp nhất mà Apollo Việt thực hiện, hội tụ ba yếu tố cốt lõi:
Thẩm mỹ sang trọng, đúng tinh thần tân cổ điển. Công năng rộng rãi, bố trí hợp lý. Đậm dấu ấn và cá tính riêng của gia chủ. Đây không chỉ là nơi để ở, mà là không gian sống thể hiện phong cách – địa vị – gu thẩm mỹ tinh tế của chủ nhân

















