Trong bài viết này, Kientrucapollo.vn chia sẻ đến quý vị mẫu biệt thự 4 tầng hiện đại sang trọng tại Thành Phố Ninh Bình.
1. Thông tin chung Biệt thự hiện đại đẹp
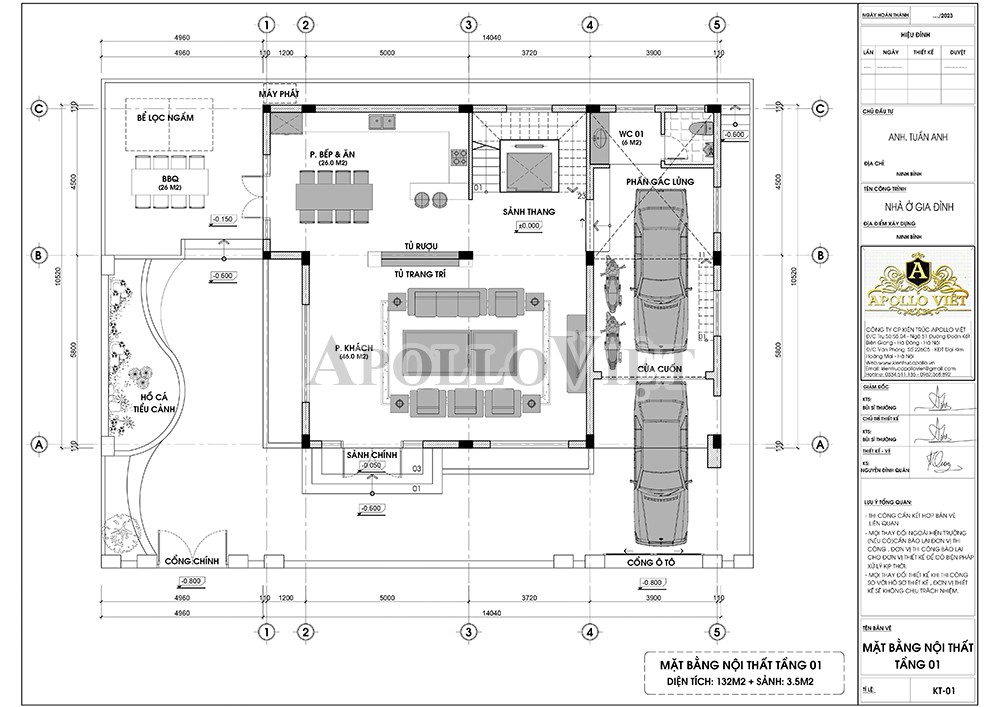
- Tầng 1: Phòng khách 46m2, Gara oto, Phòng bếp ăn 26m2, BBQ ngoài trời 26m2, WC chung 6m2
- Tầng 2: 2 Phòng ngủ master kết hợp phòng thay đồ, WC rộng rãi 41,8m2 và 38,9m2; 1 Phòng ngủ khép kín 25,82, cùng sân chơi cực chill.
- Tầng 3: Phòng làm việc 19m2, Phòng Sinh hoạt chung 20m2, Phòng ngủ master kết hợp phòng thay đồ, WC 37,5m2, Phòng ngủ đơn 21m2, WC chung 8m2
- Tầng 4: Phòng thờ 16m2, Sân chơi rộng thoáng, Khu tập thể dục, Sân phơi, Kho.
2. Phối cảnh 3D Thiết kế Biệt thự 4 tầng đẹp
Thiết kế kiến trúc hiện đại xanh là một trong những cuộc cách mạng cực lớn trong lĩnh vực kiến trúc - nội thất. Với mục đích giúp kết nối con người với thiên nhiên trong qua môi trường sống và làm việc, đây là giải pháp hiệu quả giúp làm giảm đi nét thô cứng của các bức tường bê tông, mang đến một tổng thể hài hoà hơn.
Ngôi biệt thự đẹp đầy quyến rũ của gia đình anh Tuấn Anh với mặt tiền 15 m và chiều sâu nhà 10,3m.
Ngôi biệt thự hiện đại gây ấn tượng ngay ánh nhìn đầu tiên bởi thiết kế độc đáo, khỏe khoắn và đầy phá cách. Các khối hộp với kích thước đa dạng được xếp lệch chồng lên nhau vô cùng đột phá, mang đến khoảng mở thoáng đãng cho không gian sinh sống của gia đình gia chủ.
Không chỉ vậy, các đường nét kiến trúc cũng dứt khoát, mạch lạc, không một chi tiết dư thừa càng làm tôn lên vẻ đẹp sang trọng từ sự đơn giản mà tinh tế.
Với mong muốn mang đến một không gian sống hoà hợp với thiên nhiên, công trình sử dụng tối đa chất liệu kính cường lực nhằm tạo cảm giác thông thoáng, đầy hiện đại Hệ thống cửa sổ, lan can ban công làm bằng chất liệu kính được thiết kế hài hoà, không sử dụng quá nhiều vô tình phản tác dụng.
Để có thể giảm bớt những tác động của bức xạ nhiệt lên trên những tấm kính cường lực, KTS đã khéo léo kết hợp nhịp nhàng các hình khối hộp kiến trúc với những khoảng giật cấp để tạo nên các mái hiên rộng chìa ra ban công mỗi tầng.
Điều này đã giúp tạo nên những khoảng ban công rộng rãi để gia chủ có thể ngắm nhìn trọn vẹn toàn cảnh từ trên cao. Gia chủ có thể sử dụng phần không gian này như khu vực nghỉ ngơi cùng gia đình, bố trí thêm bàn uống trà, ghế thư giãn đều vô cùng hợp lý.
Để mang đến sự sang trọng, hiện đại đi đôi với xu hướng trường tồn cùng thời gian, mẫu nhà biệt thự 4 tầng hiện đại nổi bật nhờ nghệ thuật sử dụng màu sắc vô cùng tinh tế. Màu sắc tối giản nhưng vẫn đủ nhấn nhá cho không gian gian. KTS đã kết hợp những gam màu trung tính bắt mắt hợp xu thế bằng viết sử dụng nhiều loại chất liệu khác nhau.
Bên cạnh tạo được tính thẩm mỹ cho công trình, các vật liệu ốp tường một mặt giúp tăng sự độc lạ cho ngôi nhà, một mặt góp phần chống tác động từ môi trường bên ngoài, mang đến vẻ trường tồn theo thời gian cho công trình biệt thự 4 tầng.
Để tạo thêm sự bắt mắt cho công trình, tại mỗi mái hiên các tầng đều được bố trí hệ thống đèn trần giúp căn biệt thự càng thêm lung linh, khoe trọn đường nét kiến trúc sáng tạo của mình ngay cả khi màn đêm buông xuống.
Với công trình biệt thự hiện đại này, KTS Apollo đã tận dụng tối đa thiết kế vừa “đóng” vừa “mở”, kết hợp cùng với cây xanh với mục đích mang đến không gian thoáng mát, nghỉ dưỡng thư thái nhất.
Biệt thự với đặc điểm bố trí hệ thống cây cỏ phủ quanh công trình không chỉ tô điểm thêm cho vẻ đẹp đầy hiện đại của công trình mà còn tạo nên một lớp lá chắn thanh lọc không khí đầy hiệu quả.
Thiên nhiên xanh tươi được lồng ghép tinh tế vào trong mỗi chi tiết của không gian ngôi biệt thự hiện địa. Không cần quá phô trương với nhiều loại cây cảnh đa dạng, KTS Apollo sử dụng những thảm cỏ xanh bát ngát trên trên sân thượng lộng gió, những khóm cây cảnh sinh độ được bố trí hài hoà giữa các lối đi nhỏ, cửa sổ, ban công, mang đến bầu không khí trong lành, gần gũi với thiên nhiên, tràn đầy sức sống cho công trình biệt thự 4 tầng hiện đại này.
3. Bố trí công năng Biệt thự hiện đại khoa học
Mặt tiền hoành tráng 15m và chiều sâu nhà 10,3m. Bố trí công năng được tính toán tỉ mỉ và khoa học, cụ thể:
Tầng 1: Phòng khách 46m2, Gara oto, Phòng bếp ăn 26m2, BBQ ngoài trời 26m2, WC chung 6m2
Tầng 2: 2 Phòng ngủ master kết hợp phòng thay đồ, WC rộng rãi 41,8m2 và 38,9m2; 1 Phòng ngủ khép kín 25,82, cùng sân chơi cực chill.
Tầng 3: Phòng làm việc 19m2, Phòng Sinh hoạt chung 20m2, Phòng ngủ master kết hợp phòng thay đồ, WC 37,5m2, Phòng ngủ đơn 21m2, WC chung 8m2
Tầng 4: Phòng thờ 16m2, Sân chơi rộng thoáng, Khu tập thể dục, Sân phơi, Kho.
Không gian sống cực lý tưởng cho mọi gia đình yêu thích cuộc sống phóng khoáng, tự do và gần gũi thiên nhiên xanh mát.
Chúng tôi đã chia sẻ đến quý bạn đọc mẫu biệt thự hiện đại 4 tầng - phong cách kiến trúc xanh đầy sự phá cách.
Nếu quý bạn đọc mong muốn sở hữu một mẫu thiết kế đẹp như vậy, Liên hệ ngay Hotline 0962 368 892 hoặc 0334 511 135 để được tư vấn MIỄN PHÍ ngay nhé!




















