Trong bài viết ngày hôm nay, Kientrucapollo.vn bật mí tới quý vị Mẫu lâu đài sang trọng đẳng cấp theo phong cách Tân cổ điển tại Nam Định.
1. Thông tin công trình lâu đài 2 tầng 1 tum đẹp BT23138
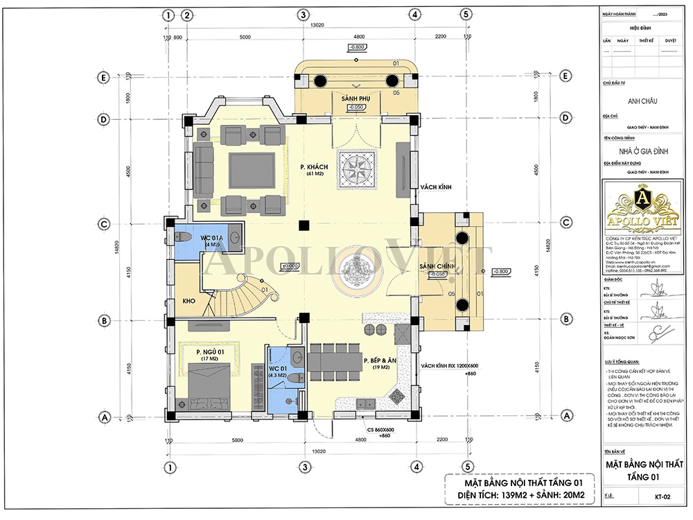
- Tầng 1: Phòng Khách 41m2, Phòng bếp ăn 19m2, Phòng ngủ 21.3m2, WC chung, Kho, Gara oto
- Tầng 2: Phòng ngủ master kết hợp phòng thay đồ 38.5m2, Phòng SHC 26.5m2, 2 Phòng ngủ đơn 15.2-17m2, WC chung 4.3m2.
- Tầng 3: Phòng thờ 19.5m2, Phòng tập 26.5m2, Phòng ngủ 17m2, Phòng xông sục 20.5m2, Sân phơi, WC chung
2. Phối cảnh 3D Kiến trúc biệt thự lâu đài hoành tráng tại Nam Định BT23138
Ngôi biệt thự lâu đài đẹp của gia đình anh Châu với mặt tiền 14.8m và chiều sâu 10.8m, Diện tích xây dựng mỗi sàn 160m2. Đây là một trong những công trình tiêu biểu đầu năm 2024, thể hiện sự hoành tráng, bề thế và nâng tầm đẳng cấp của chủ đầu tư.
Thiết kế lâu đài gây ấn tượng mạnh mẽ ngay từ lần đầu nhìn thấy nhờ vẻ đẹp kiêu sa, hoài cổ của kiến trúc tân cổ điển nhưng không kém phần độc đáo bởi sự pha trộn nét phóng khoáng, tiện nghi, thoáng đãng của phong cách hiện đại.
Kiến trúc công trình này được chia thành 3 phân vị, lấy trục chính làm trung tâm chia lâu đài thành hai phần đăng đối. Khối trung tâm được KTS đặt nhiều tâm huyết, nổi bật với sảnh vòm được thiết kế tỉ mỉ, sa hoa tựa chiếc vương miện hoàng gia từ tầng 1 lên đến tầng 3.
Hai bên toà phụ được xây dựng tương đồng tạo hình ảnh phản chiếu vô cùng thú vị. Đây vốn là đặc trưng thiết kế, là linh hồn của kiến trúc tân cổ điển.
Nhắc đến những công trình kiến trúc tân cổ điển thì không thể không nhắc đến yếu tố hoa văn trang trí như phào chỉ, phù điêu, chi tiết hoa dây, những đường cong uốn lượn mềm mại đã góp phần giúp kiến trúc lâu đài vươn đến tầm vĩ mô.
Từng mảnh khối kiến trúc đều được kết nối với nhau một cách liền mạch. Từ hệ trụ cột đến các ô văng cửa sổ đều được chạm khắc một cách tinh tế. Đặc biệt, phần sảnh chính của công trình càng trở nên nổi bật với hệ trụ cột Corinthian giúp làm nổi bật phong cách kiến trúc tân cổ điển Pháp của lâu đài.
Thêm vào đó, hệ cửa gỗ cũng là điểm sáng của công trình kiến trúc tân cổ điển này. Nước sơn tone màu nâu trầm truyền thống cũng là loại cao cấp. Từ đó giúp chống thấm, chống phai màu hiệu quả, mang đến độ bóng cao và cực dễ dàng lau chùi, vệ sinh. Kết hợp cùng chiếc đèn chùm pha lê đặc sắc, chỉ nhìn thoáng qua cũng tựa như một công trình lâu đài cổ xưa của hoàng gia Pháp.
Bên cạnh cửa chính được làm từ chất liệu gỗ tự nhiên thì toàn bộ hệ thống cửa sổ của công trình cũng được làm từ nhôm kính xingfa. Đây chính là “hơi thở” của phong cách hiện đại mà Apollo Việt muốn thổi vào trong mẫu công trình này.
Hệ cửa sổ được sắp xếp hài hòa giúp tận dụng tối đa không gian mở, mang đến ánh sáng tự nhiên len lỏi vào từng ngóc ngách của biệt thự. Không chỉ vậy, khoảng ban công các tầng với thiết kế lan can sắt mạ vàng cũng giúp tô điểm thêm cho lâu đài.
Thiết kế mái chóp mang biểu tượng của các mẫu lâu đài sang trọng cũng được KTS khéo léo đưa vào công trình có tác dụng giúp ngôi nhà thêm phần tráng lệ, nguy nga, đồng thời tôn lên được vị thế của gia chủ. Bên cạnh mái chóp, nhằm tăng thêm chiều cao cho lâu đài, Kiến trúc Apollo Việt đã kết hợp cùng hệ thống mái Mansard giúp tổng thể trở nên hoàn hảo hơn.
Sự hòa quyện màu sắc giữa màu xanh của mái, màu nâu gỗ trần ấm áp, màu trắng chủ đạo cùng ánh sáng vàng từ đèn chùm pha lê sảnh chính đã khiến tổng thể trở nên vô cùng hài hoà, mang đặc trưng riêng biệt của mẫu kiến trúc tân cổ điển.
3. Bố trí công năng lâu đài đẹp
Bên cạnh kiến trúc sang trọng và lộng lẫy, công năng nội thất được tính toán tỉ mỉ và khoa học, cụ thể:
- Tầng 1: Phòng Khách 41m2, Phòng bếp ăn 19m2, Phòng ngủ 21.3m2, WC chung, Kho, Gara oto
- Tầng 2: Phòng ngủ master kết hợp phòng thay đồ 38.5m2, Phòng SHC 26.5m2, 2 Phòng ngủ đơn 15.2-17m2, WC chung 4.3m2.
- Tầng 3: Phòng thờ 19.5m2, Phòng tập 26.5m2, Phòng ngủ 17m2, Phòng xông sục 20.5m2, Sân phơi, WC chung
Ngôi nhà đẹp không chỉ là nơi để ở mà còn là không gian kinh doanh, là thương hiệu cá nhân của chủ đầu tư.
Nếu quý vị mong muốn sở hữu một ngôi nhà đẹp ấn tượng như vậy, Liên hệ ngay Hotline 0962 368 892 hoặc 0334 511 135 để được tư vấn MIỄN PHÍ ngay nhé!






















