Công trình biệt thự tân cổ điển nguy nga, tráng lệ 4 tầng 1 tum được thực hiện bởi Apollo Việt khiến ai cũng phải choáng ngợp. Với 9 phòng ngủ, 1 phòng bếp, 1 phòng bếp & ăn cùng nhiều phòng chức năng được sắp xếp phù hợp. Mang đến không gian sống tiện nghi, hiện đại vô cùng đẳng cấp cho gia chủ.
Lâu đài khoác lên mình kiến trúc tân cổ điển đậm chất châu Âu mang hơi thở quý phái đầy dụ hoặc. Với kinh nghiệm đã triển khai rất nhiều mẫu lâu đài mini, biệt thự lâu đài đẹp,... Apollo Việt đang từng bước thi công hoàn thiện tòa lâu đài tân cổ điển kiều diễm tại Nghệ An.
1. Thông tin dự án lâu đài đẹp BT24112
- Tầng bán hầm: Gara ô tô, 2 Kho, Bể nước
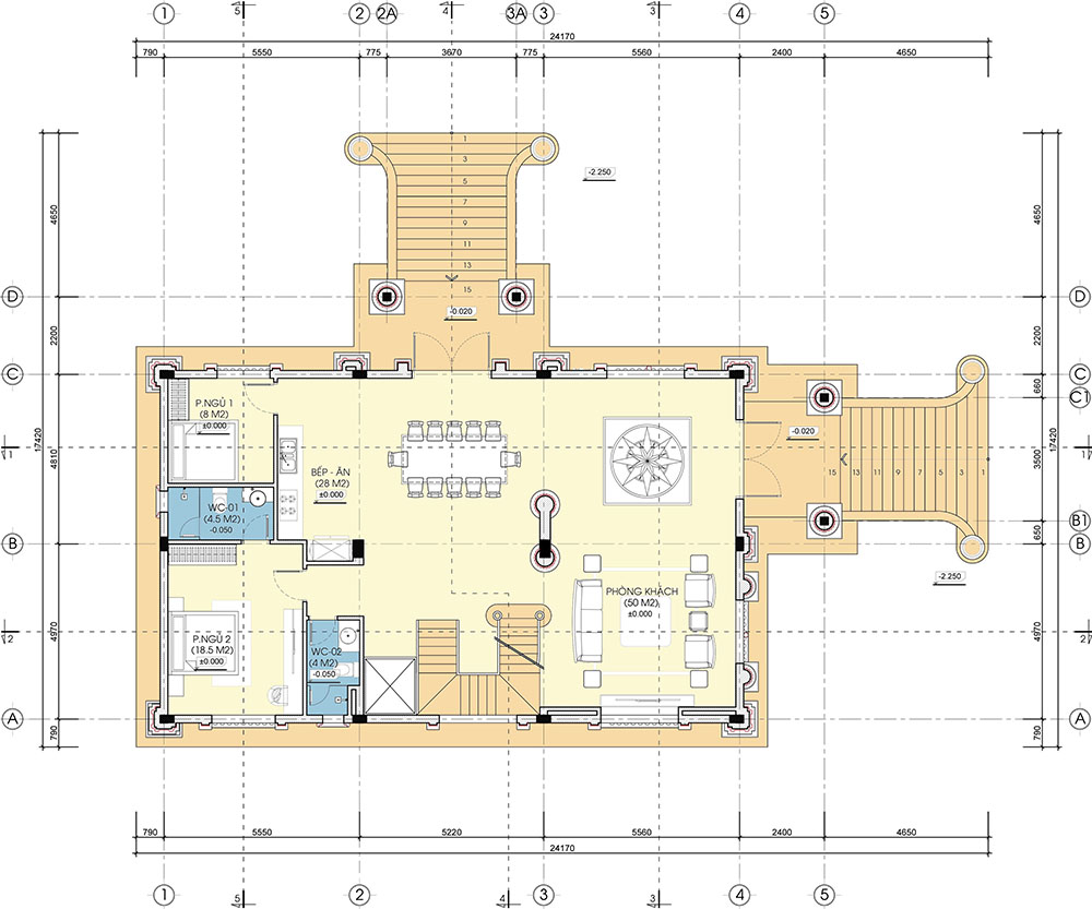
- Tầng 1: Phòng khách 50m2, Phòng bếp - ăn 28m2, Phòng ngủ đơn 8m2, Phòng ngủ khép kín 13m2, WC 4m2
- Tầng 2: 2 Phòng ngủ khép kín 21.7m2 và 1 Phòng ngủ khép kín 22.2m2. Phòng SHC 22m2
- Tầng 3: 2 Phòng ngủ khép kín 21.7m2 và 1 Phòng ngủ khép kín 22.2m2. Phòng SHC 22m2, Sân chơi
- Tầng tum: Phòng ngủ khép kín 23.3m2, Phòng Karaoke 30m2, Phòng xông hơi, Bể bơ
2. Lâu đài tân cổ điển diễm lệ, sang trọng đầy mê hoặc
Sau nhiều năm gây dựng và nỗ lực làm việc, anh Đức đã trở thành một doanh nhân thành đạt nhận được sự ngưỡng mộ của mọi người. Anh đã quyết định xây tòa biệt thự lâu đài đẳng cấp này như một món quà tự thưởng cho bản thân.
Đặt hết tâm huyết cho công trình này nên anh Đức đã tìm hiểu rất nhiều đơn vị thiết kế và thi công để chọn ra “ứng cử viên sáng giá” để trao trọn niềm tin. Sau cùng, anh đã chọn Apollo Việt để thực hiện tòa biệt thự thế kỷ này!
2.1. Vẻ đẹp ngoại thất thanh cao nhưng đầy quyến rũ
Biệt thự tân cổ điển 4 tầng 1 tum của gia đình anh Đức có 2 mặt tiền 16.3m và 9.9m. Với diện tích xây dựng mỗi sàn khoảng 160m2, KTS Apollo Việt đã kiến tạo một không gian sống tiện nghi, hoàn hảo và đẳng cấp cho chủ đầu tư.
Tổng thể căn biệt thự hiện lên vô cùng bề thế, Thiết kế 2 sảnh ấn tượng được tôn cao kết hợp cùng hệ bậc tam cấp 15 bậc hoành tráng vừa để thiết kế thêm 1 tầng bán hầm làm gara để xe, vừa giúp thể hiện đẳng cấp và vị thế của gia chủ.
Nếu sảnh chính sử dụng thức cột Corinthian hoa lệ nâng đỡ bức chương sảnh trang trí hoa dây bắt mắt. Thì sảnh phụ sử dụng hệ cột thông tầng cao lớn, kết hợp hệ cửa vòm kính hoa đồng bên trên mang đến sự cao lớn vô cùng bắt mắt.
Sự vận dụng tài tình của KTS Apollo Việt trong việc sáng tạo thêm những đường thẳng chạy dọc thân cột hay những cơn sóng uốn lượn phần đầu cột. Kết hợp với khối đế vuông đơn giản nhưng mạnh mẽ giúp không gian sảnh của căn biệt thự mang nét đẹp vừa nhẹ nhàng, kiều diễm cũng vừa khỏe khoắn và rắn rỏi.
Bức chương sảnh được nâng đỡ bởi các trụ cột được trang trí đơn giản, không cầu kỳ nhưng vẫn toát lên sự sang chảnh nổi bật. Từng đường hoa dây uốn lượn, uyển chuyển như từng cơn sóng nhẹ nhàng ôm lấy bông hoa trung tâm như đang ôm lấy mặt trời nhỏ bé.
Cửa chính được làm từ gỗ gõ đỏ Pachy cao cấp cùng chùm đèn pha lê ấn tượng mang nét đẹp diễm lệ khiến ai cũng phải trầm trồ.
Chòi thưởng trà được thiết kế mái chóp lộng lẫy và nâng đỡ bằng 6 cột tròn La Mã cổ đại nhẹ nhàng, tinh tế. Với thiết kế vòm tựa như những ô cửa càng làm tăng thêm vẻ đẹp mỹ lệ của tòa biệt thự.
Điểm nổi bật và cũng là tâm điểm của tòa biệt thự chính là hệ mái chóp quý tộc kết hợp mái Mansard cong nhẹ. Mái Mansard đặc trưng nâng đỡ phần mái chóp được trang trí hoa dây mạ vàng đắt giá tôn lên sự sang trọng, quý phái của lâu đài, thể hiện được vị thế và đẳng cấp chủ đầu tư.
Khoác lên mình màu sơn trắng ngà quý phái, từng đường phào chỉ, hoa văn trên các diện tường càng thêm nổi bật và rõ nét hơn. Màu sơn trắng ngà đã mang đến cho tòa biệt thự nét đẹp sang trọng, đẳng cấp nhưng vô cùng tinh tế, thanh lịch và nhẹ nhàng.
Nét đẹp độc đáo, thời thượng từ từng chi tiết thiết kế tinh xảo, được sắp xếp có chủ ý của KTS Apollo Việt khiến bất cứ ai đi qua cũng phải xuýt xoa và trầm trồ thán phục.
2.2. Công năng tiện nghi, khoa học của biệt thự lâu đài Nghệ An
Với công năng 4 tầng 1 tum, biệt thự lâu đài được cân nhắc, sắp xếp các phòng chức năng hợp lý, phù hợp với yêu cầu của gia chủ:
- Tầng bán hầm: gồm Gara ô tô, 2 Kho, Bể nước
- Tầng 1: gồm Phòng khách, Phòng bếp - ăn, Phòng ngủ đơn, Phòng ngủ khép kín, WC
- Tầng 2: gồm 3 Phòng ngủ khép kín, Phòng SHC
- Tầng 3: gồm 3 Phòng ngủ khép kín, Phòng SHC, Sân chơi
- Tầng tum: Phòng ngủ khép kín, Phòng Karaoke, Phòng xông hơi, Bể bơi
Khám phá mặt bằng công năng, quý vị có thể thấy tòa lâu đài sở hữu 9 phòng ngủ, 1 phòng bếp, 1 phòng bếp & ăn, 2 phòng SHC, phòng karaoke, phòng xông hơi và bể bơi.
Từ sảnh chính bước vào là không gian phòng khách rộng thoáng lên tới 50m2, đi sâu vào bên trong thông qua sảnh thang là Phòng bếp ăn 28m2. Không gian kết nối mở, tạo nên tổng thể vô cùng rộng rãi, thông thoáng.
Phòng khách được bố trí 1 bộ bàn ghế hoàng gia 12 món hoành tráng và bề thế để phù hợp với không gian phòng khách rộng lớn lên tới 54,4m2.
Bên cạnh đó, KTS Apollo Việt còn bố trí thêm 2 phòng ngủ với 1 phòng ngủ khép kín 23m2 và 1 Phòng ngủ đơn 8m2 tại tầng 1 để ông bà có thể nghỉ ngơi thuận tiện hơn.
Nhà vệ sinh chung cũng được bố trí khoa học và tiện nghi cho gia đình cũng như khách đến chơi sử dụng.
Tầng 2 và tầng 3 được bố trí 6 phòng ngủ khép kín tiện nghi. Điều này giúp cho mỗi thành viên đều có thể thoải mái nghỉ ngơi, tận hưởng không gian nghỉ ngơi riêng tư thư thái và dễ chịu nhất. Đồng thời cũng có đủ không gian để tiếp đón những vị khách xa chu đáo nhất.
Tầng tum cũng được bố trí thêm 1 phòng ngủ khách kèm theo các phòng giải trí, thư giãn theo sở thích của gia chủ.
Mẫu lâu đài đẹp vừa có không gian riêng thoải mái, riêng tư, cũng vừa có không gian chung ấm áp và nhiều khu vực chức năng giải trí ấn tượng. Căn biệt thự chắc chắn sẽ mang đến sự thoải mái và thư thái cho mọi thành viên.
3. Apollo Việt thi công hoàn thiện biệt thự lâu đài tân cổ điển
Để điêu khắc phần hồn cho lâu đài tân cổ điển đòi hỏi những đơn vị phải thật sự am hiểu và quen thuộc với lối kiến trúc đẳng cấp này. Vinh dự được anh Đức đặt trọn niềm tin, Apollo Việt đã và đang tiến hành thi công đúng tiến độ.
Bất cứ chủ đầu tư nào khi hợp tác thi công cùng Apollo Việt đều vô cùng hài lòng bởi sự chắc chắn, kỷ luật và nghiêm túc. Bên cạnh 1 kỹ sư hiện trường túc trực 24/7, tiến độ thi cũng được báo cáo chuẩn theo từng ngày và được các kỹ sư và kiến trúc sư tại văn phòng kiểm tra, giám sát để đảm bảo đẹp, đúng và chuẩn kỹ thuật.
Tại công trình, Apollo Việt còn lắp đặt camera giám sát 24/7 vừa để giám sát kỹ lưỡng hơn, vừa giúp chủ nhà an tâm theo dõi tiến độ thi công từ xa.
Được khởi công xây dựng từ đầu tháng 3 năm 2024, đến nay, công trình biệt thự lâu đài tân cổ điển của anh Đức vẫn đang được tiến hành đúng tiến độ. Hiện tại, công trình đã hoàn thành công đoạn đổ móng và đang tiến hành công tác lắp dựng ván khuôn cột và vách. Dự kiến, biệt thự tân cổ điển diễm lệ này sẽ được hoàn thành vào tháng 3 năm 2025.
Với sự giám sát nhiều lớp, kỹ lưỡng và chặt chẽ của Apollo Việt, anh Đức đã bày tỏ sự hài lòng và vô cùng hy vọng ngày hoàn thiện tòa lâu đài đẳng cấp này.
Nếu quý vị cũng quan tâm và muốn xem nhiều mẫu thiết kế biệt thự lâu đài tân cổ điển thời thượng, quý phái, đừng quên theo dõi Apollo Việt để cập nhật các công trình ấn tượng trên khắp mọi miền tổ quốc nhé. Liên hệ số hotline: 03345 111 35 hoặc 0962 368 892 để được KTS nhiều kinh nghiệm trực tiếp tư vấn nhé!

















