Trong bài viết này, Kientrucapollo.vn chia sẻ đến quý vị ngôi biệt thự 3 tầng nhỏ xinh và hiện đại nằm tại Nam Định.
1. Thông tin dự án Biệt thự hiện đại chữ L tại Nam Định
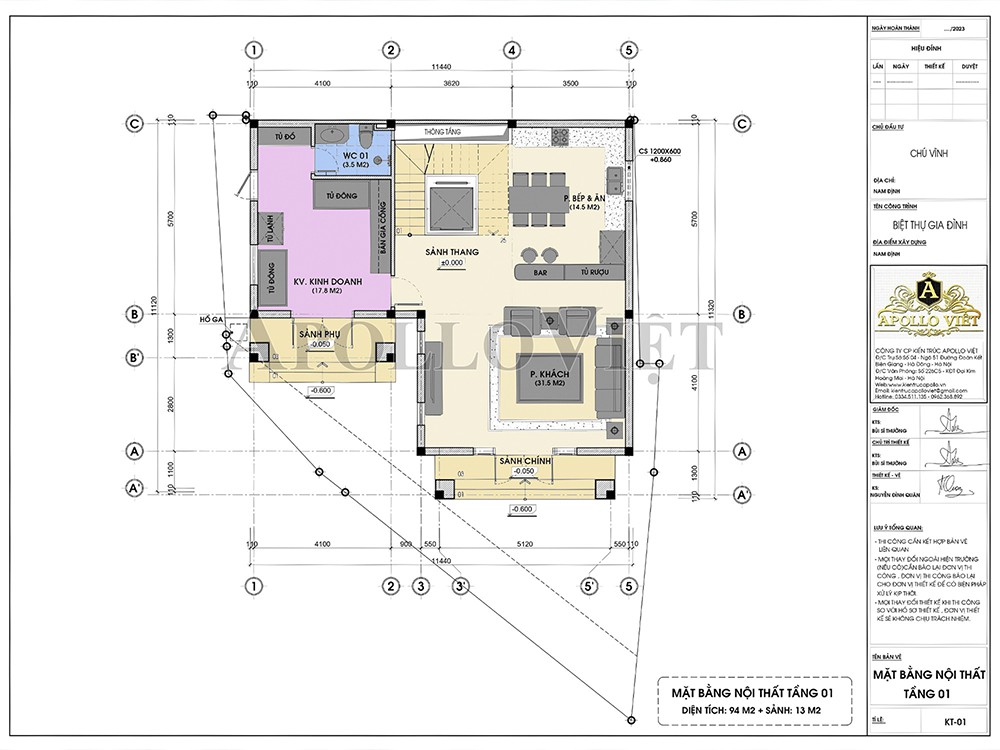
Tầng 1: Phòng khách 31.5m2, Phòng bếp ăn 14.5m2, Khu vực kinh doanh 17.8m2, WC chung
Tầng 2: Phòng ngủ khép kín 27.3m2, 2 Phòng ngủ đơn 14.8 và 16.2m2.
Tầng 3: Phòng thờ 10.7m2, Phòng ngủ đơn 21m2, WC chung, Phòng thư giãn.
Mái: Sân chơi
2.Ngoại thất Biệt thự đẹp 3 tầng phong cách hiện đại
Ngôi nhà đẹp này là của gia đình chú Vĩnh tại Nam Định với mặt tiền 11,4m và chiều sâu nhà 11.3m. Diện tích xây dựng mỗi sàn khoảng 100m2.
Sở hữu khuôn đất hạn chế, nên KTS đã tư vấn và lên phương án với biệt thự theo hình chữ L, để phía trước nhà dành cho sân vườn, gara để xe.
Công trình biệt thự được thiết kế theo phong cách hiện đại đa dạng từ bố cục cho đến chi tiết lạ mắt, độc đáo, góp phần tạo nên sự khác biệt, mới mẻ và trẻ trung.
Không quá chú trọng đến yếu tố tỉ lệ như công trình kiến trúc cổ điển hay tân cổ điển, biệt thự phong cách hiện đại vẫn ghi điểm tuyệt đối nhờ vẻ đẹp khỏe khoắn và phá cách.
Các khối hộp đa dạng được xếp chồng khéo léo lên nhau vô cùng nghệ thuật, mang đến vẻ đẹp độc đáo, tạo nhiều khoảng mở thoáng đãng cũng như tối ưu không gian sử dụng cho gia chủ. Các đường nét thiết kế dứt khoát, mạch lạc, không một chi tiết thừa thãi giúp tôn lên vẻ đẹp tuy đơn giản nhưng vô cùng tinh tế.
Các mảng tường được phân chia thành từng khoảng diện tích khác nhau với tông màu chủ đạo là gam màu trắng được sử dụng xen kẽ với các mảng tường ốp đá, gạch thẻ bổ trợ vô cùng tinh tế. Công trình gây ấn tượng mạnh mẽ bởi sự pha trộn màu sắc và hình khối hài hòa, thể hiện cá tính mạnh mẽ, năng động của gia chủ.
Tầng 1 và tầng 2 là sự kết hợp không thể tuyệt vời hơn của đá rối tự nhiên, đá granite và đá vân mây. Sự phối hợp tinh tế các vật liệu không chỉ giúp mang đến vẻ đẹp thẩm mỹ cho công trình mà nó còn đóng vai trò như một lá chắn bảo vệ căn biệt thự khỏi những tác động của môi trường khắc nghiệt. Từ đó giúp công trình duy trì được nét đẹp qua năm tháng, tạo nên sự trường tồn theo thời gian.
Không chỉ vậy, thiết kế tầng 2 còn gây ấn tượng mạnh mẽ với khối hộp nhô hẳn ra ngoài tạo không gian logia thoáng đãng, rộng rãi với phần lan can kính cường lực thanh thoát cùng hệ thống đèn âm tường lung linh. Thiết kế này không chỉ tạo được điểm nhấn độc đáo cho công trình mà giúp che mưa, chắn nắng cho không gian sinh hoạt bên trong.
Phối cảnh từ trên cao cho phép chiêm ngưỡng trọn vẻ đẹp trong thiết kế độc đáo của công trình kiến trúc biệt thự hiện đại. Phần mái được thiết kế khác biệt với 3 lớp vuông vắn, toát lên vẻ đẹp khỏe khoắn, vững chắc. Thiết kế có phần đơn giản với kết cấu bê tông không chỉ giúp tiết kiệm tối đa thời gian thi công, chi phí đầu tư xây dựng mà còn vô cùng vững chắc, kiêm cố, giúp bảo vệ công trình trước mọi điều kiện thời tiết khắc nghiệt.
Đặc biệt, thiết kế mẫu biệt thự hiện đại còn được tô điểm bằng hệ thống cửa kính được bố trí khéo léo khắp các diện tường. Nhờ những ô cửa sổ này mà ánh sáng tự nhiên có thể dễ dàng tràn ngập khắp không gian bên trong ngôi nhà, mang đến sự độc đáo cho lối kiến trúc phong cách hiện đại. Đồng thời, hệ thống cửa sổ nhôm kính với khung cửa rộng rãi còn giúp tạo nên cảm giác thoáng đãng, mở rộng về không gian cho mẫu biệt thự.
3. Bố trí công năng Mẫu nhà 3 tầng hiện đại, khoa học
Để bố trí công năng cho ngôi nhà hình chữ L tương đối phức tạp, yêu cầu phải tính toán tỉ mỉ và kỹ lưỡng. Cụ thể:
- Tầng 1: Phòng khách 31.5m2, Phòng bếp ăn 14.5m2, Khu vực kinh doanh 17.8m2, WC chung
- Tầng 2: Phòng ngủ khép kín 27.3m2, 2 Phòng ngủ đơn 14.8 và 16.2m2.
- Tầng 3: Phòng thờ 10.7m2, Phòng ngủ đơn 21m2, WC chung, Phòng thư giãn.
- Mái: Sân chơi
Ngôi biệt thự xinh đẹp tại Nam Định chắc chắn sẽ vô cùng nổi bật, thu hút bởi vẻ đẹp trẻ trung, hiện đại và ko kém phần sang trọng.
Apollo Việt cung cấp giải pháp Thiết kế thi công trọn gói nhằm mang đến không gian hoàn mỹ, sang trọng cho mọi gia đình Việt.
Nếu quý vị mong muốn sở hữu một ngôi nhà đẹp ấn tượng như vậy, Liên hệ ngay Hotline 0962 368 892 hoặc 0334 511 135 để được tư vấn MIỄN PHÍ ngay nhé!














