Trong bài viết này, Nhà đẹp Apollo Việt nhật tiến độ công trình Biệt thự Tân cổ điển ấn tượng, thu hút nhất tại huyện Mê Linh, Hà Nội của gia đình anh Hưng.
1. Thông tin Biệt thự tân cổ điển đẹp
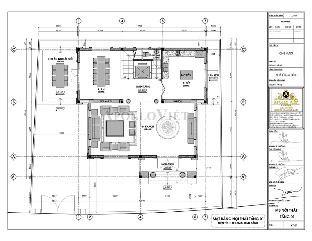
- Tầng 1: Phòng khách, phòng bếp + ăn, wc chung, khu ăn ngoài trời.
- Tầng 2: Phòng SHC, 1 phòng ngủ thường, 1 phòng ngủ khép kín, phòng thay đồ.
- Tầng 3: 2 phòng ngủ thường, 1 phòng ngủ khép kín, phòng thay đồ.
- Tầng tum: Phòng thờ, phòng chức năng, phòng giặt và phơi, sân chơi.
2. Hình ảnh Thi công Biệt thự 3 tầng phong cách tân cổ điển châu Âu
Ngôi biệt thự vô cùng ấn tượng và cuốn hút với diện tích xây dựng mỗi sàn là 130m2, Mặt tiền 12,5m và chiều sâu nhà 12,8m. Hình khối kiến trúc đa dạng, ấn tượng.
Trong suốt quá trình thi công, chúng tôi đã áp dụng quy trình kiểm tra giám sát thi công chặt chẽ, nghiêm ngặt tại cả hiện trường và tại trụ sở công ty thông qua cùng với đội ngũ KTS, KS chuyên môn cao, nhiều kinh nghiệm nhằm tạo nên công trình đẹp, chất lượng cao.
Một số giai đoạn thi công quan trọng:
- Khảo sát thực trạng
- Giai đoạn thi công sàn tầng 2
- Giai đoạn chát
- Giai đoạn hoàn thiện thô.
Mặc dù công trình mới chỉ hoàn thiện cơ bản phần thô nhưng quý vị có thể thấy căn biệt thự Tân cổ điển 3 tầng 1 tum vô cùng khỏe khoắn, bề thế, vững chãi.
3. Biệt thự đẹp hoành tráng khi hoàn thiện
Thưa quý vị, nằm gọn trong không gian xanh và xung quanh đều là những công trình nhà ở hiện đại, biệt thự 3 tầng 1 tum tân cổ điển của gia đình anh Hưng hiện lên với tổng thể vô cùng hoành tráng và lộng lẫy. Nét đẹp đó được thể hiện rõ hơn qua những chi tiết hoa văn cầu kỳ, đồ sộ, giúp mẫu biệt thự trở nên đẹp hơn trong mắt người nhìn.
Ngôi nhà được chia chính phụ rõ ràng. Khối chính được thiết kế hoành tráng, vương mạnh mẽ hơn, còn phối phụ nhẹ nhàng, giúp tôn vinh khối chính.
Tại sảnh chính, bức chương lớn cầu kỳ, với đôi thiên thần bay bổng mang đậm nét đẹp kiến trúc Châu Âu. Hai cặp trụ cột vuông tròn bên dưới càng làm tăng thêm vẻ đẹp mĩ lệ cho khu vực sảnh chính.
Ngước nhìn lên tầng 2, quý vị có thể thấy các hệ cột tròn, vuông ốp sát tường, khéo dài từ tầng 2 lên tới tẩng tum, tạo sự thanh thoát và bề thế cho công trình.
Màu trắng được lựa chọn đem đến hiệu ứng rất tốt cho thị giác người nhìn, giúp tầm nhìn rộng và thoáng hơn. Hệ mái đen Slate Lai Châu một lần nữa trở nên vô cùng nổi bật trên tone màu trắng sáng chủ đạo của căn nhà.
Thêm vào đó nhấn nhá bởi sắc đen huyền bí và uyển chuyển của hệ thống lan can ban công bằng sắt nghệ thuật, điểm sơn nhũ vàng sang trọng.
4. Mặt bằng công năng biệt thự tân cổ điển đẹp
Tiếp theo, mời quý vị cùng khám phá công năng của biệt thự đẹp: Công năng ngôi nhà được tính toán tỉ mỉ, khoa học. Nhà được thiết kế nở hậu, vừa mang lại may mắn về phong thủy, vừa giải quyết bài toán về chiều sâu nhà hạn chế.
Tầng 1: Phòng khách, phòng bếp + ăn, wc chung, khu ăn ngoài trời.
Tầng 2: Phòng SHC, 1 phòng ngủ thường, 1 phòng ngủ khép kín, phòng thay đồ.
Tầng 3: 2 phòng ngủ thường, 1 phòng ngủ khép kín, phòng thay đồ.
Tầng tum: Phòng thờ, phòng chức năng, phòng giặt và phơi, sân chơi.
Bước chân vào không gian phòng khách hoành tráng rộng 53m2, hệ thống cửa sổ được bố trí khoa học, tạo nên sự thông thoáng, đồng thời lấy sáng cho toàn bộ không gian nội thất.
Tiếp nối Phòng khách là phòng bếp và phòng ăn, được kết nối thông qua sảnh thang máy và thang bộ, vừa có sự riêng tư nhưng lai kết nối mật thiết với nhau.
Thiết kế này tạo nên sự cân đối cho ngôi nhà, giúp ngôi nhà không bị bí bách hay chật chội. Phòng ăn được nối liền ra khu ăn ngoài trời bằng cửa phụ vô cùng tiện lợi cho những bữa tiệc nướng ngoài trời của gia đình. Không gian thoáng đãng, gần gũi thiên nhiên và cũng vô cùng ấm cúng.
Quý vị vừa được cập nhật tiến độ thi công công trình Biệt thự tân cổ điển 3 tầng 1 tum tại Mê Linh . Đây là thiết kế biệt thự đơn lập phong cách tân cổ điển vô cùng phù hợp cho các gia đình nằm trong các khu đô thị mong muốn sở hữu 1 ngôi biệt thự ấn tượng, mang nét đẹp đặc biệt.



















