Với kinh nghiệm dày dặn và sự sáng tạo không ngừng, Kiến trúc Apollo Việt đã tạo nên những Biệt thự lâu đài độc đáo mang đến không gian sống đẳng cấp, thể hiện cá tính và khẳng định vị thế của gia chủ.
Mẫu lâu đài của gia đình ông Nam tại Long An, do Apollo Việt thiết kế sẽ khiến bạn phải ngạc nhiên trước sự tinh tế và độc đáo của kiến trúc. Hãy cùng chúng tôi khám phá một không gian sống đẳng cấp và sang trọng nhé!
1. Thông tin dự án Biệt thự lâu đài 3 tầng 1 tum đẹp
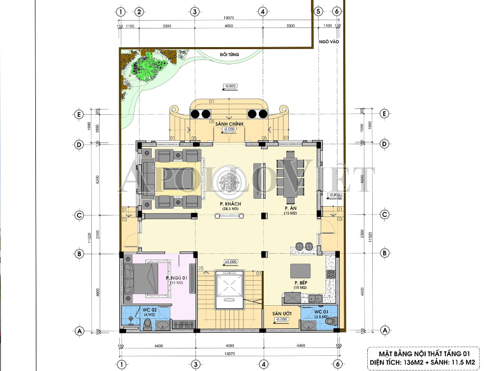
- Tầng 1: Phòng khách 28,5m2, Phòng bếp 15m2, Phòng ăn 15m2, Phòng ngủ master 01 19m2,Khu sân ướt và phòng wc.
- Tầng 2: Phòng ngủ master 02 59,7m2, Phòng ngủ khép kín 03 22m2
- Tầng 3: Phòng ngủ master 04 22m2, Phòng ngủ master 59,7m2, Phòng ngủ master 06 29,2m2.
- Tầng tum: Phòng thờ 30m2, Phòng dự phòng 13,5 m2, Phòng giặt phơi 8,5m2, Phòng wc 4,2m2, sảnh chờ.
2. Khám phá vẻ đẹp tráng lệ của biệt thự lâu đài tân cổ điển
Với lô đất vị trí vàng tại Long An, gia đình ông Nam ấp ủ giấc mơ sở hữu một không gian sống vừa sang trọng, vừa mang đậm dấu ấn cổ điển. Mong muốn kiến tạo nên một tổ ấm đẳng cấp, ông Nam đã dành nhiều thời gian tìm kiếm đơn vị thiết kế thi công uy tín.
Sau khi trải qua quá trình tìm hiểu kỹ lưỡng, ông Nam đã quyết định gửi gắm niềm tin vào Apollo Việt. Với sự tư vấn tận tâm và bản thiết kế 3D sống động, chúng tôi đã cùng ông Nam hiện thực hóa ý tưởng về một không gian sống hoàn hảo. Sự hài lòng của ông Nam khi nhận được bản thiết kế chính là động lực lớn nhất để đội ngũ kiến trúc sư Apollo Việt không ngừng sáng tạo và hoàn thiện những công trình đẳng cấp.
Với diện tích mặt tiền 13,1m ấn tượng, biệt thự lâu đài như một tác phẩm nghệ thuật giữa lòng thành phố. Kiến trúc độc đáo, kết hợp hài hòa giữa nét cổ điển và hiện đại, tạo nên một không gian sống vừa sang trọng, vừa ấm cúng. Mỗi chi tiết trong lâu đài đều được chăm chút tỉ mỉ, mang đến một trải nghiệm sống đẳng cấp khác biệt.
Việc bố trí không gian, lựa chọn màu sắc và vật liệu đều được tính toán kỹ lưỡng theo nguyên tắc phong thủy, nhằm mang lại tài lộc và may mắn cho gia chủ. Hãy đến và khám phá một thế giới hoàn toàn mới tại Biệt thự lâu đài siêu đẹp.
Ngay từ cái nhìn đầu tiên, quý vị sẽ bị cuốn hút bởi vẻ đẹp tráng lệ, hoành tráng của căn biệt thự lâu đài. Những đường nét hoa văn tinh xảo như một bản giao hưởng thị giác, hòa quyện cùng sắc trắng ngà tạo nên một tổng thể kiến trúc vừa sang trọng, vừa thanh lịch, khiến bất cứ ai cũng phải trầm trồ.
Mái Mansard như một chiếc vương miện bằng đá đen bao bọc lấy toàn bộ ngôi nhà, trong khi đó hệ thống mái chóp với những đường nét hoa văn tinh xảo như những viên ngọc quý, tỏa sáng rực rỡ dưới ánh nắng mặt trời tạo nên điểm nhấn ấn tượng.
Tiếp theo mời quý vị cùng khám phá không gian sảnh chính thông tầng tráng lệ, nơi sự xa hoa và nghệ thuật kiến trúc hòa quyện.Với sự kết hợp hài hòa giữa các trụ cột vuông vững chắc và trụ cột tròn uyển chuyển theo phong cách cổ điển, không gian sảnh vừa mang đến cảm giác bề thế, vừa tràn đầy sự tinh tế, sang trọng.
Những đường nét hoa văn mềm mại trên các trụ cột vuông như những nét vẽ tinh xảo, tô điểm thêm vẻ đẹp cổ điển cho không gian.
Hệ thống cột trụ vững chãi như những người lính canh, nâng đỡ những bức chương hoa văn tinh xảo, tạo nên một không gian ngoại thất vừa bề thế, vừa uy nghi.
Cửa chính gỗ gõ đỏ kết hợp khuôn kính cùng hệ thống cửa sổ kính an toàn đã tạo nên một bức tranh hài hòa, sang trọng. Điểm nhấn là hệ thống trang trí ban công bằng lan can nhôm đúc mỹ thuật với đường hoa văn tinh xảo, tô điểm thêm vẻ đẹp kiêu sa, quý phái cho toàn bộ ngôi nhà.
3.Công năng mẫu biệt thự lâu đài Pháp khoa học, chuẩn phong thủy
Không những sở hữu không gian ngoại thất đẹp xuất sắc, biệt thự lâu đài còn được Kiến trúc sư Apollo Việt bố trí công năng sử dụng, khoa học chuẩn phong thủy. Sau đây mời quý vị tham khảo công năng của căn nhà:
Tầng 1: Phòng khách 28,5m2, Phòng bếp 15m2, Phòng ăn 15m2, Phòng ngủ master 01 19m2,Khu sân ướt và phòng wc.
Tầng 2: Phòng ngủ master 02 59,7m2, Phòng ngủ khép kín 03 22m2
Tầng 3: Phòng ngủ master 04 22m2, Phòng ngủ master 59,7m2, Phòng ngủ master 06 29,2m2.
Tầng tum: Phòng thờ 30m2, Phòng dự phòng 13,5 m2, Phòng giặt phơi 8,5m2, Phòng wc 4,2m2, sảnh chờ.
Bước vào tầng một, quý vị sẽ bị cuốn hút bởi không gian sống đầy ấn tượng. Phòng khách với diện tích vừa phải gần 30m2, đặc biệt phần Không gian thông tầng rộng lớn kết nối hai tầng nhà, tạo nên một tầm nhìn bao quát, mang đến cảm giác thoáng đãng, thư thái tạo nên 1 tác phẩm kiến trúc hoàn hảo.
Kiến trúc sư Apollo Việt đã rất khéo léo khi thiết kế không gian phòng khách liền kề bếp ăn cho gia đình ông Nam. Việc kết nối hai không gian này không chỉ tạo nên sự thông thoáng mà còn đảm bảo yếu tố phong thủy mà gia chủ vô cùng quan tâm. Mọi vị trí quan trọng đều được tính toán kỹ lưỡng để mang đến một không gian sống hoàn hảo và thoải mái cho gia chủ.
Ở tầng 1 này Phòng ngủ master giành cho bố mẹ, tách biệt hoàn toàn, mang đến sự riêng tư tuyệt đối cho thành viên trong gia đình sử dụng.
Với mong muốn sở hữu một ngôi nhà với công năng hiện đại, đáp ứng mọi nhu cầu sinh hoạt, anh Nam đã đề nghị kiến trúc sư thiết kế thêm thang máy, giúp việc di chuyển giữa các tầng trở nên dễ dàng và thuận tiện hơn, đặc biệt là khi tuổi cao.
Qua quá trình làm việc chuyên nghiệp và tận tâm của kiến trúc sư, căn nhà của ông Nam đã trở thành hiện thực một cách hoàn hảo. Với thiết kế thông minh và hợp lý, ngôi nhà không chỉ đáp ứng đầy đủ các yêu cầu về công năng, phong thủy mà còn mang đến một không gian sống hài hòa.
Như vậy, Quý vị đã vừa khám phá toàn bộ không gian kiến trúc lộng lẫy của biệt thự lâu đài tân cổ điển 3 tầng 1 tum tại Hà Hội. Chúng tôi tin rằng đây sẽ là nguồn cảm hứng bất tận cho không gian sống của bạn.Hãy liên hệ ngay cho Apollo Việt qua số hotline: 0962 368 892 - 0865 799 688 - 0385.688.228 . Chúng tôi sẽ tư vấn và hỗ trợ bạn tạo nên một không gian sống đẳng cấp!






















